
Rietmaat 13
Roden
Een paradijs voor de natuurliefhebber!
Hoogwaardig afgewerkte en onder architectuur gebouwde vrijstaande woning op een unieke locatie met uitzicht over natuurgebied ‘Allemansgoed Terheijl’
Deze fraai gelegen vrijstaande woning (bouwjaar 1994) is uitermate goed onderhouden en staat op een royaal perceel van 757 m² met heerlijk veel privacy dankzij de gunstige ligging op een hoek, grenzend aan een brede groenstrook. De onder architectuur aangelegde tuin is werkelijk een plaatje! Een gunstige zonligging, de ruime opzet, meerdere terrassen, een vijverpartij, een grote diversiteit aan bloemen en planten en doordachte doorkijkjes, geven volop mogelijkheden om optimaal te genieten van het buitenleven.
Door de grote raampartijen in de woonkamer en de slaapkamer kan er ook van binnenuit worden genoten van het ruime en groene uitzicht. Onder andere Schotse hooglanders, spechten en reeën worden hier met grote regelmaat waargenomen.
Zowel in het ontwerp van de woning als in het ontwerp van de tuin is rekening gehouden met optimale privacy. Dit, in combinatie met de ligging aan een autoluwe straat, zorgt voor een fijne en rustige woonbeleving.
De voorzieningen van het sfeervolle brinkdorp Roden zijn binnen handbereik. Het dorp biedt een uitgebreid aanbod van winkels, supermarkten, scholen en sportfaciliteiten. Daarnaast is er in de directe omgeving voldoende gelegenheid om te genieten van de natuur en recreatie.
Indeling
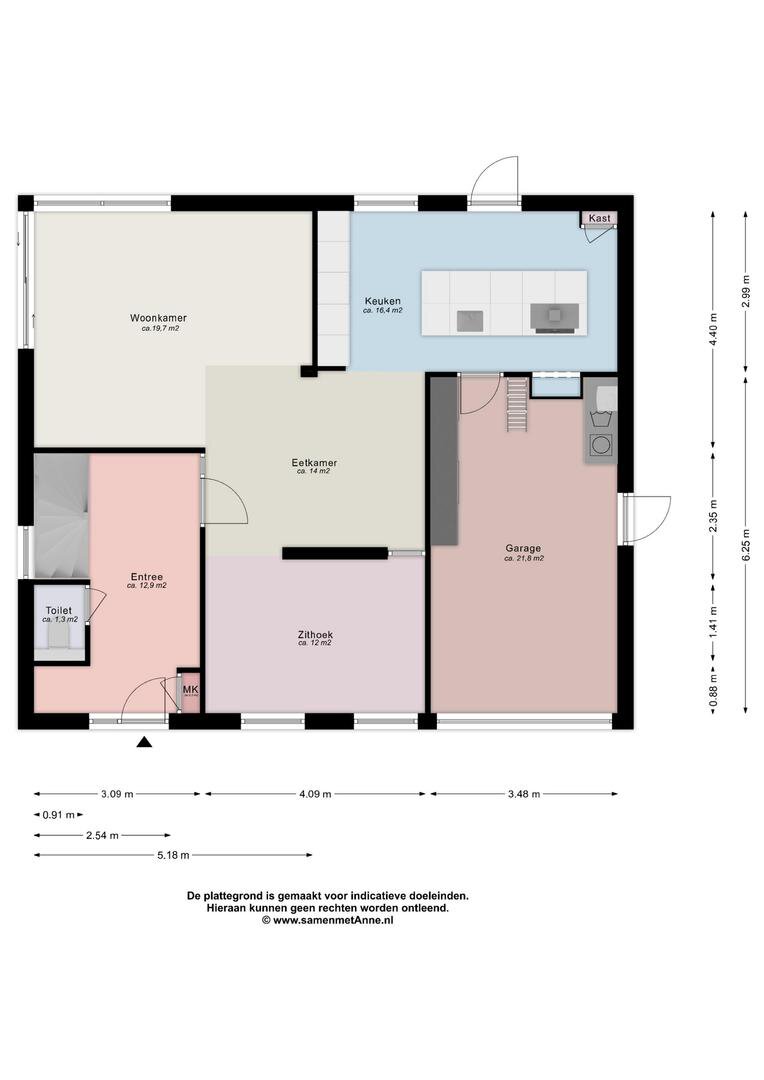
Begane grond: Hal/entree met garderobe nis, meterkast en toilet; living van in totaal zo'n 62 m² verdeeld in 4 segmenten elk met hun eigen functie. Een straatgerichte tv-hoek, een tuingerichte woonkamer met schuifpui naar de tuin en tuingerichte keuken met deur naar de tuin, gecompleteerd door een centraal gelegen 'eetkamer' de die verschillende ruimtes met elkaar verbindt. Door deze speelse doch open indeling heeft elke ruimte een eigen karakter maar staan alle ruimtes met elkaar in verbinding waardoor je altijd samen bent.
De luxueus uitgevoerde (Bulthaup)keuken is voorzien van een riant kook-/spoeleiland met o.a. 5-pits gaskookplaat, een Quooker en vaatwasser. En een wandmeubel met ovens, koelkast, vriezer en veel bergruimte.
De aangrenzende bijkeuken/garage (ca. 22 m²) is volledig geïsoleerd en verwarmd waardoor deze multifunctioneel inzetbaar is. Thans doet deze ruimte dienst als bijkeuken, berging, hobbyruimte en stallingsruimte voor de fiets. Tevens is hier een spoelblok aanwezig en biedt een vouwtrap toegang tot de bergzolder.
Uiteraard is het ook mogelijk om de auto binnen te zetten, de voorzijde is voorzien van een elektrisch bedienbare en geïsoleerde sectionaaldeur.
Eerste verdieping: Overloop met daglicht, werk-kantoorruimte en bergkast; 2 slaapkamers (resp. 12 en 20 m²) waarvan de grootste is voorzien van een grote raampartij en schuifpui met uitzicht op de natuur en een royale schuifwandkast; badkamer voorzien van ligbad, toilet, wastafel en inloopdouche.
Bijzonderheden:
* Perceeloppervlakte: 757 m²
* Woonoppervlakte: 147 m² + 22 m²
* Verwarming middels CV-ketel (Remeha Hr, 2015) in combinat9ie met hybride warmtepomp (Remeha, 2023);
* Vloerverwarming begane grond;
* Voorzien van zonnepaneleninstallatie met 18 panelen (2019);
* Energielabel A;
* Waterontharder aanwezig;
* Voorzien van centraal stofzuigersysteem;
* Gevels gereinigd en geïmpregneerd in 2024;
* Tuin voorzien van bewateringssysteem.
Bent u benieuwd naar deze fraaie woning? Neem dan contact op met Bruining en De Reus om een bezichtiging te plannen.
Wij laten u graag alles zien wat deze woning en de omgeving te bieden hebben!
Hoogwaardig afgewerkte en onder architectuur gebouwde vrijstaande woning op een unieke locatie met uitzicht over natuurgebied ‘Allemansgoed Terheijl’
Deze fraai gelegen vrijstaande woning (bouwjaar 1994) is uitermate goed onderhouden en staat op een royaal perceel van 757 m² met heerlijk veel privacy dankzij de gunstige ligging op een hoek, grenzend aan een brede groenstrook. De onder architectuur aangelegde tuin is werkelijk een plaatje! Een gunstige zonligging, de ruime opzet, meerdere terrassen, een vijverpartij, een grote diversiteit aan bloemen en planten en doordachte doorkijkjes, geven volop mogelijkheden om optimaal te genieten van het buitenleven.
Door de grote raampartijen in de woonkamer en de slaapkamer kan er ook van binnenuit worden genoten van het ruime en groene uitzicht. Onder andere Schotse hooglanders, spechten en reeën worden hier met grote regelmaat waargenomen.
Zowel in het ontwerp van de woning als in het ontwerp van de tuin is rekening gehouden met optimale privacy. Dit, in combinatie met de ligging aan een autoluwe straat, zorgt voor een fijne en rustige woonbeleving.
De voorzieningen van het sfeervolle brinkdorp Roden zijn binnen handbereik. Het dorp biedt een uitgebreid aanbod van winkels, supermarkten, scholen en sportfaciliteiten. Daarnaast is er in de directe omgeving voldoende gelegenheid om te genieten van de natuur en recreatie.
Indeling
Begane grond: Hal/entree met garderobe nis, meterkast en toilet; living van in totaal zo'n 62 m² verdeeld in 4 segmenten elk met hun eigen functie. Een straatgerichte tv-hoek, een tuingerichte woonkamer met schuifpui naar de tuin en tuingerichte keuken met deur naar de tuin, gecompleteerd door een centraal gelegen 'eetkamer' de die verschillende ruimtes met elkaar verbindt. Door deze speelse doch open indeling heeft elke ruimte een eigen karakter maar staan alle ruimtes met elkaar in verbinding waardoor je altijd samen bent.
De luxueus uitgevoerde (Bulthaup)keuken is voorzien van een riant kook-/spoeleiland met o.a. 5-pits gaskookplaat, een Quooker en vaatwasser. En een wandmeubel met ovens, koelkast, vriezer en veel bergruimte.
De aangrenzende bijkeuken/garage (ca. 22 m²) is volledig geïsoleerd en verwarmd waardoor deze multifunctioneel inzetbaar is. Thans doet deze ruimte dienst als bijkeuken, berging, hobbyruimte en stallingsruimte voor de fiets. Tevens is hier een spoelblok aanwezig en biedt een vouwtrap toegang tot de bergzolder.
Uiteraard is het ook mogelijk om de auto binnen te zetten, de voorzijde is voorzien van een elektrisch bedienbare en geïsoleerde sectionaaldeur.
Eerste verdieping: Overloop met daglicht, werk-kantoorruimte en bergkast; 2 slaapkamers (resp. 12 en 20 m²) waarvan de grootste is voorzien van een grote raampartij en schuifpui met uitzicht op de natuur en een royale schuifwandkast; badkamer voorzien van ligbad, toilet, wastafel en inloopdouche.
Bijzonderheden:
* Perceeloppervlakte: 757 m²
* Woonoppervlakte: 147 m² + 22 m²
* Verwarming middels CV-ketel (Remeha Hr, 2015) in combinat9ie met hybride warmtepomp (Remeha, 2023);
* Vloerverwarming begane grond;
* Voorzien van zonnepaneleninstallatie met 18 panelen (2019);
* Energielabel A;
* Waterontharder aanwezig;
* Voorzien van centraal stofzuigersysteem;
* Gevels gereinigd en geïmpregneerd in 2024;
* Tuin voorzien van bewateringssysteem.
Bent u benieuwd naar deze fraaie woning? Neem dan contact op met Bruining en De Reus om een bezichtiging te plannen.
Wij laten u graag alles zien wat deze woning en de omgeving te bieden hebben!
Over dit object
Overdracht
| Status | verkocht |
|---|---|
| Prijs | € 625.000 k.k. |
Bouw
| Bouwjaar | 1994 |
|---|---|
| Bouwvorm | bestaande bouw |
| Type Object | Woonhuis |
| Hoofdfunctie | Woonruimte |
Indeling
| Woonoppervlakte | 169 m² |
|---|---|
| Perceeloppervlakte | 757 m² |
| Woning Inhoud | 682 m³ |
| Kamers | 4 (2 slaapkamers) |
Energie
| Energielabel | A |
|---|
































































































































