
De Klap 14
Leek
Aan een rustige straat in Leek staat deze knusse en praktische twee-onder-een-kapwoning met een woonoppervlakte van ca. 85 m². De woning heeft een verzorgde basis, een logische indeling met bijkeuken, maar biedt ook ruimte voor persoonlijke afwerking en moderne upgrades. Met in totaal 3 slaapkamers, een zonnige achtertuin op het zuiden en diverse energiebewuste voorzieningen is dit een aantrekkelijke woonplek voor starters of jonge gezinnen.
Indeling
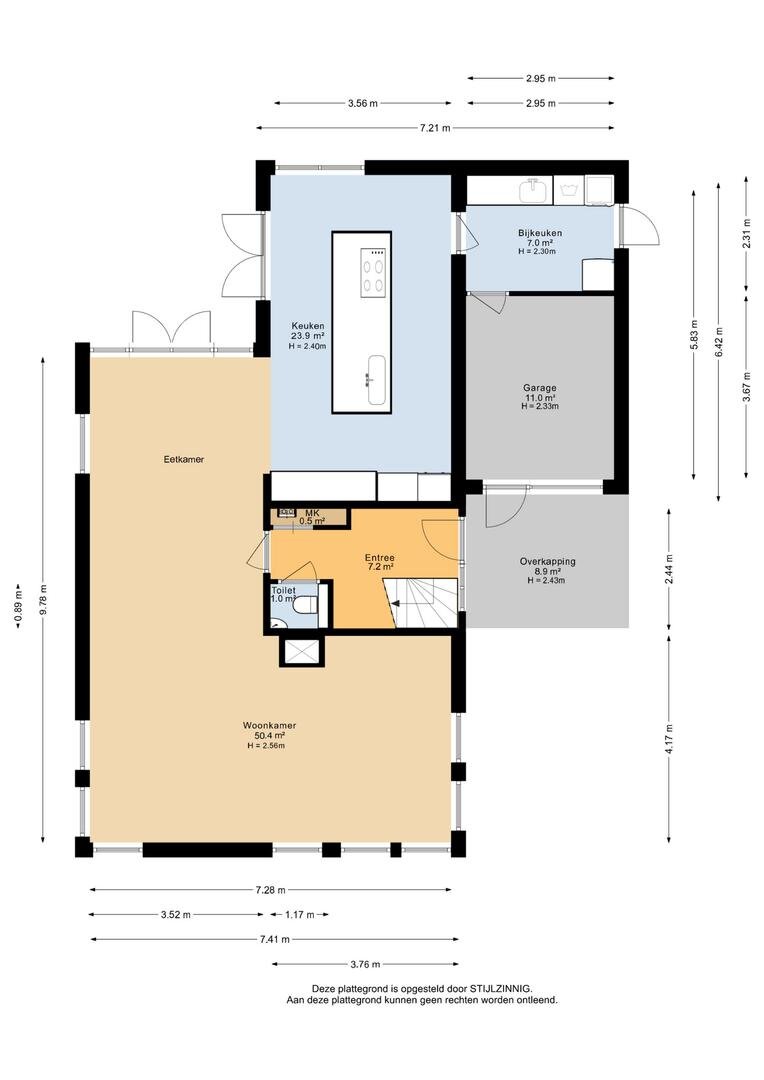
Begane grond: Entree/hal met toilet en trapopgang; lichte woonkamer (type doorzon) met zithoek aan de straatzijde en een eethoek aan de tuinzijde (totaal ca. 30 m²), aansluitend de half open keuken met een rechte opstelling in een neutrale kleurstelling. Vanuit de keuken is er toegang tot de bijkeuken waar je extra apparatuur kwijt kunt. Via de bijkeuken loop je zo de zonnige tuin in.
Eerste verdieping: Overloop met inbouwkast en toilet; twee slaapkamers (10 en 12 m²) met vaste kastruimte en een badkamer met daglicht en voorzien van een ligbad, douche en wastafel.
Tweede verdieping: Met een vaste trap bereik je de overloop met veel bergruimte aan beide zijden. De derde (slaap)kamer van circa 11 m² is voorzien van een kunststof dakkapel waardoor extra ruimte en daglicht. Achter de knieschotten is bergruimte aanwezig.
Buitenruimte
De woning ligt op een perceel van 270 m² met een oprit voor meerdere auto’s. De achtertuin is gunstig gelegen op het zuiden, waardoor je optimaal van de zon kunt genieten. Naast een stenen berging is er een houten tuinhuis met extra berging aanwezig– volop ruimte voor opslag en/of hobby dus! De tuin is onderhoudsvriendelijk en biedt volop ruimte om te ontspannen of te spelen.
Bijzonderheden
– Voorzien van 14 zonnepanelen (2022), HR++ glas, muurisolatie en pelletkachel;
– Energielabel C (een gemiddelde score – geen luxelabel, maar een goede basis);
– Verwarming en warm water via CV-ketel Intergas (2003);
– Woonkamer eveneens voorzien van pelletkachel (kan worden overgenomen);
– Laadpaal aanwezig (ter overname);
– Grotendeels kunststof kozijnen
Omgeving
De Klap is een rustige woonstraat op korte afstand van voorzieningen als scholen, winkels en sportfaciliteiten. Uitvalswegen richting Groningen en Drachten zijn eenvoudig bereikbaar. Leek staat bekend om zijn groene omgeving, met onder andere het Leekstermeer nabij.
Ben je benieuwd hoe deze woning aanvoelt? Neem contact op met Bruining en De Reus makelaars voor het maken van een afspraak.
Indeling
Begane grond: Entree/hal met toilet en trapopgang; lichte woonkamer (type doorzon) met zithoek aan de straatzijde en een eethoek aan de tuinzijde (totaal ca. 30 m²), aansluitend de half open keuken met een rechte opstelling in een neutrale kleurstelling. Vanuit de keuken is er toegang tot de bijkeuken waar je extra apparatuur kwijt kunt. Via de bijkeuken loop je zo de zonnige tuin in.
Eerste verdieping: Overloop met inbouwkast en toilet; twee slaapkamers (10 en 12 m²) met vaste kastruimte en een badkamer met daglicht en voorzien van een ligbad, douche en wastafel.
Tweede verdieping: Met een vaste trap bereik je de overloop met veel bergruimte aan beide zijden. De derde (slaap)kamer van circa 11 m² is voorzien van een kunststof dakkapel waardoor extra ruimte en daglicht. Achter de knieschotten is bergruimte aanwezig.
Buitenruimte
De woning ligt op een perceel van 270 m² met een oprit voor meerdere auto’s. De achtertuin is gunstig gelegen op het zuiden, waardoor je optimaal van de zon kunt genieten. Naast een stenen berging is er een houten tuinhuis met extra berging aanwezig– volop ruimte voor opslag en/of hobby dus! De tuin is onderhoudsvriendelijk en biedt volop ruimte om te ontspannen of te spelen.
Bijzonderheden
– Voorzien van 14 zonnepanelen (2022), HR++ glas, muurisolatie en pelletkachel;
– Energielabel C (een gemiddelde score – geen luxelabel, maar een goede basis);
– Verwarming en warm water via CV-ketel Intergas (2003);
– Woonkamer eveneens voorzien van pelletkachel (kan worden overgenomen);
– Laadpaal aanwezig (ter overname);
– Grotendeels kunststof kozijnen
Omgeving
De Klap is een rustige woonstraat op korte afstand van voorzieningen als scholen, winkels en sportfaciliteiten. Uitvalswegen richting Groningen en Drachten zijn eenvoudig bereikbaar. Leek staat bekend om zijn groene omgeving, met onder andere het Leekstermeer nabij.
Ben je benieuwd hoe deze woning aanvoelt? Neem contact op met Bruining en De Reus makelaars voor het maken van een afspraak.
Over dit object
Overdracht
| Status | beschikbaar |
|---|---|
| Prijs | € 275.000 k.k. |
Bouw
| Bouwjaar | 1968 |
|---|---|
| Bouwvorm | bestaande bouw |
| Type Object | Woonhuis |
| Hoofdfunctie | Woonruimte |
Indeling
| Woonoppervlakte | 85 m² |
|---|---|
| Perceeloppervlakte | 270 m² |
| Woning Inhoud | 342 m³ |
| Kamers | 4 (3 slaapkamers) |
Energie
| Energielabel | C |
|---|







































































