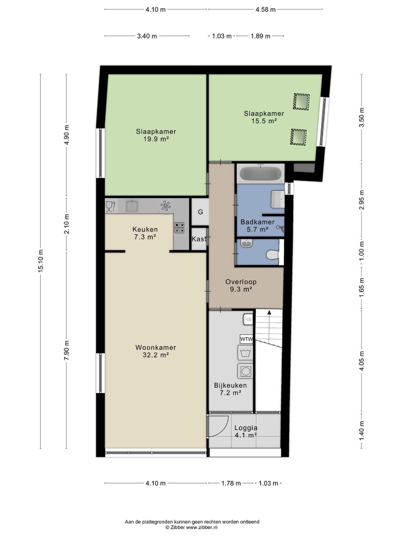
Te huur: royaal appartement in het centrum!Midden in het centrum, fraai aan De Dam gelegen, royaal appartement met veel daglicht en zicht over het centrum van Leek. Dit goed geïsoleerde appartement heeft bergruimte op de begane grond en een balkon/loggia (4 m²) aan de straatzijde.Indeling: ruime entree met bergruimte en trapopgang naar de verdieping alwaar er een hal (9 m²) toegang geeft naar een toilet, ruime lichte woonkamer (32 m²) met loggia (4 m²) en uitzicht over het centrum, open keuken (7 m²) in hoekopstelling voorzien van diverse inbouwapparatuur, bijkeuken/hobbyruimte (7 m²), badkamer met ligbad, separate douche, toilet en dubbele wastafel, 2 slaapkamers (20 en 15 m²).Bijzonderheden: volledig geïsoleerd, bouwjaar 2013, woonoppervlakte 105 m².Huurprijs: € 995,-- per maand excl. GWE voor de eerste 6 maanden, daarna € 1.100,-- per maand.Aanvaarding: per directGoed om te weten:- woonoppervlakte ca. 105 m²;- 2 slaapkamers;- bergruimte op de begane grond;- geen servicekosten;- gebruik stoeltjeslift mogelijk;- minimale huurtermijn 18 maanden;- waarborgsom 2 maanden huur van toepassing;- om voor deze woning in aanmerking te komen dient rekening gehouden te worden met een inkomenstoets;- huurkandidaten worden gescreend.Interesse in deze woning? Neem geheel vrijblijvend contact op met Bruining en De Reus Makelaars om deze woning te bezichtigen!
Over dit object
Overdracht
| Status | verhuurd |
|---|
| Prijs | € 995,00 p.m |
|---|
Bouw
| Bouwvorm | bestaande bouw |
|---|
| Type Object | Appartement |
|---|
Indeling
| Woonoppervlakte | 105 m² |
|---|
| Perceeloppervlakte | 105 m² |
|---|
| Woning Inhoud | 365 m³ |
|---|