
de Gorn 20
Tolbert
Goed onderhouden woonhuis | energielabel A | zonnige tuin
Op een prachtige locatie, achterzijde aan het water, staat deze goed onderhouden tussenwoning met berging. Deze woning is voorzien van een nette keuken en een complete badkamer. De buurt is kindvriendelijk, met scholen, speelveldjes en diverse voorzieningen op korte afstand. De diepe achtertuin ligt op het zonnige zuiden wat zorgt voor een heerlijke buitenbeleving.
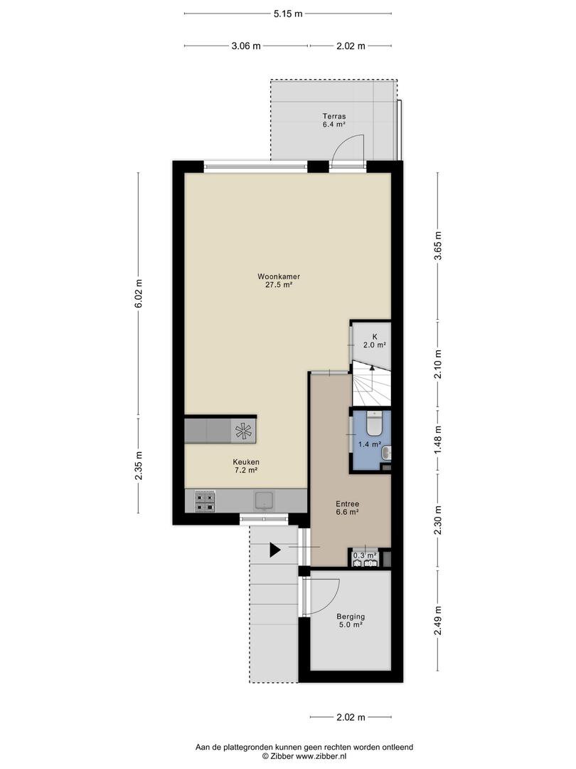
Indeling: entree/hal en toegang tot de berging. De tuingerichte woonkamer heeft een vaste kast en een deur naar de tuin. De keuken, aan de voorzijde van de woning, is voorzien van diverse inbouwapparatuur;
1e verdieping:
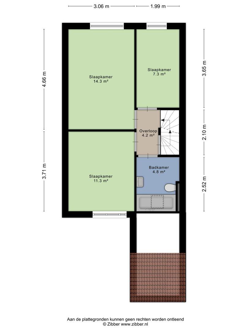
Overloop, drie slaapkamers (ca. 14, 11 en 7 m²) en een compleet ingerichte badkamer met ligbad/douche, wastafel en toiletruimte.
2e verdieping:
Een vaste trap leidt naar de zolderverdieping, waar ruimte voor een vierde slaapkamer is.
Bijzonderheden:
- de woning is voorzien van energielabel A;
- zonnige achtertuin met fraaie overkapping;
- gelegen in een kindvriendelijke buurt nabij verschillende scholen;
- de woning is voorzien van 7 zonnepanelen;
- verwarming middels centrale verwarming;
- woonoppervlakte ca. 115 m²;
- perceeloppervlakte 119 m²;
Aanvaarding: in overleg
Tip: bekijk ook de video van deze woning!
Interesse in deze woning? Neem geheel vrijblijvend contact op met Bruining en De Reus Makelaars om deze woning te bezichtigen!
Op een prachtige locatie, achterzijde aan het water, staat deze goed onderhouden tussenwoning met berging. Deze woning is voorzien van een nette keuken en een complete badkamer. De buurt is kindvriendelijk, met scholen, speelveldjes en diverse voorzieningen op korte afstand. De diepe achtertuin ligt op het zonnige zuiden wat zorgt voor een heerlijke buitenbeleving.
Indeling: entree/hal en toegang tot de berging. De tuingerichte woonkamer heeft een vaste kast en een deur naar de tuin. De keuken, aan de voorzijde van de woning, is voorzien van diverse inbouwapparatuur;
1e verdieping:
Overloop, drie slaapkamers (ca. 14, 11 en 7 m²) en een compleet ingerichte badkamer met ligbad/douche, wastafel en toiletruimte.
2e verdieping:
Een vaste trap leidt naar de zolderverdieping, waar ruimte voor een vierde slaapkamer is.
Bijzonderheden:
- de woning is voorzien van energielabel A;
- zonnige achtertuin met fraaie overkapping;
- gelegen in een kindvriendelijke buurt nabij verschillende scholen;
- de woning is voorzien van 7 zonnepanelen;
- verwarming middels centrale verwarming;
- woonoppervlakte ca. 115 m²;
- perceeloppervlakte 119 m²;
Aanvaarding: in overleg
Tip: bekijk ook de video van deze woning!
Interesse in deze woning? Neem geheel vrijblijvend contact op met Bruining en De Reus Makelaars om deze woning te bezichtigen!
Over dit object
Overdracht
| Status | verkocht |
|---|---|
| Prijs | € 285.000 k.k. |
Bouw
| Bouwjaar | 1983 |
|---|---|
| Bouwvorm | bestaande bouw |
| Type Object | Woonhuis |
| Hoofdfunctie | Woonruimte |
Indeling
| Woonoppervlakte | 115 m² |
|---|---|
| Perceeloppervlakte | 119 m² |
| Woning Inhoud | 423 m³ |
| Kamers | 5 (4 slaapkamers) |
Energie
| Energielabel | A |
|---|

































































