
Den 4 a
Leek
Fraai gelegen en moderne 2/1-kapwoning | uitstekende afwerking | woonoppervlakte 138 m² | gasloos | A+++
Aan royale houtsingel in de groene en waterrijke wijk Oostindie gelegen helft van een dubbel woonhuis met handige bijkeuken en vrijstaande houten berging. De woning beschikt onder andere over 3 ruime slaapkamers en een riante zolder, waar eenvoudig een 4e slaapkamer te realiseren is. In de diepe achtertuin is het heerlijk vertoeven.
Een prachtige woning met alle voordelen van nieuwbouw!
De ligging van de woning is uitstekend. De woning biedt zicht op een brede groenstrook. De basisschool en kinderopvang zijn op loopafstand gelegen. Daarnaast is er een natuurpark, diverse speeltuintjes, kinderspeelweide en sportaccommodatie aanwezig in de wijk. De wijk kenmerkt zich door een ruime opzet met veel groen. Het centrum van Leek en landgoed "Nienoord" zijn op fietsafstand gelegen.
De woning is gelegen nabij de uitvalswegen en zowel de stad Groningen als Drachten zijn binnen 15 autominuten bereikbaar. Ook het openbaar vervoer is uitstekend te noemen. Op loopafstand ligt de bushalte, waar circa iedere 15 minuten een rechtstreekse bus vertrekt naar het Centraal Station Groningen.
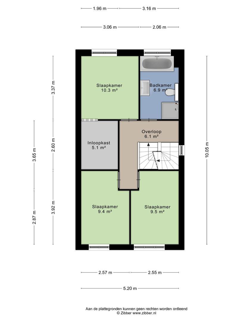
Indeling
Begane grond: Zijentree/hal met toiletruimte en meterkast; sfeervolle living met straatgerichte woonkamer met fijne lichtinval en zicht over groen; eethoek met openslaande deuren naar de tuin en toegang tot de moderne, open keuken voorzien van diverse inbouwapparatuur; bijkeuken/achterom met toegang tot de tuin.
Eerste verdieping: Overloop; 3 ruime slaapkamers (9, 10 en 15 m²) waarvan één met walk-in-closet; compleet ingerichte badkamer voorzien van ligbad, toilet, separate douche en wastafelmeubel;
Tweede verdieping: via vaste trap te bereiken zolderruimte (24 m²) met warmtepomp-opstelling en witgoedaansluitingen. Hier is eenvoudig ook nog een 4e slaapkamer te realiseren.
Buitenruimte en voorzieningen
De besloten achtertuin op het noordoosten is een heerlijke plek om te genieten van rust en privacy. De tuin biedt ruimte voor verschillende zitplekken in zon en schaduw en heeft diverse borders om van te genieten. Naast de tuin beschikt de woning over een houten berging, ideaal voor het opbergen van fietsen, tuingereedschap of andere spullen.
Met parkeergelegenheid voor meerdere auto's op eigen terrein hoeft u zich nooit zorgen te maken over parkeren. Bovendien is de woning recentelijk voorzien van een warmtepomp installatie wat niet alleen goed is voor het milieu, maar ook zorgt voor lagere energiekosten en een comfortabele verwarming van het huis.
Bijzonderheden:
- woonoppervlakte ca. 138 m²;
- bouwjaar woning 2017;
- verwarming middels warmtepomp, 2024;
- optimaal geïsoleerd, energielabel A+++;
- voorzien van 5 zonnepanelen, 2019, 450 WP/paneel;
- perceeloppervlakte 240 m²;
- oprit met ruimte voor 2 auto's;
- ideaal gelegen in kindvriendelijke buurt, basisschool en kinderopvang zijn op loopafstand in de wijk gelegen.
Aanvaarding: in overleg.
Tip: bekijk ook de video van deze woning!
Interesse in deze woning? Neem geheel vrijblijvend contact op met Bruining en De Reus Makelaars om deze woning te bezichtigen!
Aan royale houtsingel in de groene en waterrijke wijk Oostindie gelegen helft van een dubbel woonhuis met handige bijkeuken en vrijstaande houten berging. De woning beschikt onder andere over 3 ruime slaapkamers en een riante zolder, waar eenvoudig een 4e slaapkamer te realiseren is. In de diepe achtertuin is het heerlijk vertoeven.
Een prachtige woning met alle voordelen van nieuwbouw!
De ligging van de woning is uitstekend. De woning biedt zicht op een brede groenstrook. De basisschool en kinderopvang zijn op loopafstand gelegen. Daarnaast is er een natuurpark, diverse speeltuintjes, kinderspeelweide en sportaccommodatie aanwezig in de wijk. De wijk kenmerkt zich door een ruime opzet met veel groen. Het centrum van Leek en landgoed "Nienoord" zijn op fietsafstand gelegen.
De woning is gelegen nabij de uitvalswegen en zowel de stad Groningen als Drachten zijn binnen 15 autominuten bereikbaar. Ook het openbaar vervoer is uitstekend te noemen. Op loopafstand ligt de bushalte, waar circa iedere 15 minuten een rechtstreekse bus vertrekt naar het Centraal Station Groningen.
Indeling
Begane grond: Zijentree/hal met toiletruimte en meterkast; sfeervolle living met straatgerichte woonkamer met fijne lichtinval en zicht over groen; eethoek met openslaande deuren naar de tuin en toegang tot de moderne, open keuken voorzien van diverse inbouwapparatuur; bijkeuken/achterom met toegang tot de tuin.
Eerste verdieping: Overloop; 3 ruime slaapkamers (9, 10 en 15 m²) waarvan één met walk-in-closet; compleet ingerichte badkamer voorzien van ligbad, toilet, separate douche en wastafelmeubel;
Tweede verdieping: via vaste trap te bereiken zolderruimte (24 m²) met warmtepomp-opstelling en witgoedaansluitingen. Hier is eenvoudig ook nog een 4e slaapkamer te realiseren.
Buitenruimte en voorzieningen
De besloten achtertuin op het noordoosten is een heerlijke plek om te genieten van rust en privacy. De tuin biedt ruimte voor verschillende zitplekken in zon en schaduw en heeft diverse borders om van te genieten. Naast de tuin beschikt de woning over een houten berging, ideaal voor het opbergen van fietsen, tuingereedschap of andere spullen.
Met parkeergelegenheid voor meerdere auto's op eigen terrein hoeft u zich nooit zorgen te maken over parkeren. Bovendien is de woning recentelijk voorzien van een warmtepomp installatie wat niet alleen goed is voor het milieu, maar ook zorgt voor lagere energiekosten en een comfortabele verwarming van het huis.
Bijzonderheden:
- woonoppervlakte ca. 138 m²;
- bouwjaar woning 2017;
- verwarming middels warmtepomp, 2024;
- optimaal geïsoleerd, energielabel A+++;
- voorzien van 5 zonnepanelen, 2019, 450 WP/paneel;
- perceeloppervlakte 240 m²;
- oprit met ruimte voor 2 auto's;
- ideaal gelegen in kindvriendelijke buurt, basisschool en kinderopvang zijn op loopafstand in de wijk gelegen.
Aanvaarding: in overleg.
Tip: bekijk ook de video van deze woning!
Interesse in deze woning? Neem geheel vrijblijvend contact op met Bruining en De Reus Makelaars om deze woning te bezichtigen!
Over dit object
Overdracht
| Status | verkocht |
|---|---|
| Prijs | € 450.000 k.k. |
Bouw
| Bouwjaar | 2017 |
|---|---|
| Bouwvorm | bestaande bouw |
| Type Object | Woonhuis |
| Hoofdfunctie | Woonruimte |
Indeling
| Woonoppervlakte | 138 m² |
|---|---|
| Perceeloppervlakte | 240 m² |
| Woning Inhoud | 508 m³ |
| Kamers | 5 (3 slaapkamers) |
Energie
| Energielabel | A+++ |
|---|
































































