
Diligencelaan 8
Leek
Fraai gelegen woonhuis
Vrijstaand woonhuis met garage in villawijk | ca. 129 m² woonoppervlakte | Gelegen op een perceel van 650 m² | Zonnige tuin op het Westen.
Dit fraai vrijstaande woonhuis beschikt over 4 slaapkamers (waarvan één op de begane grond) en is gelegen op een fraaie locatie in de villawijk "Nienoordsrand". Het ruime perceel van 650 m² biedt volop privacy.
De ligging is uitstekend, nabij het landgoed "Nienoord" en op fietsafstand van het centrum van Leek en scholen. De wijk staat bekend om zijn ruime opzet en groene omgeving. Zowel Groningen als Drachten zijn binnen 15 autominuten bereikbaar, terwijl Leek zelf diverse voorzieningen biedt.
Indeling
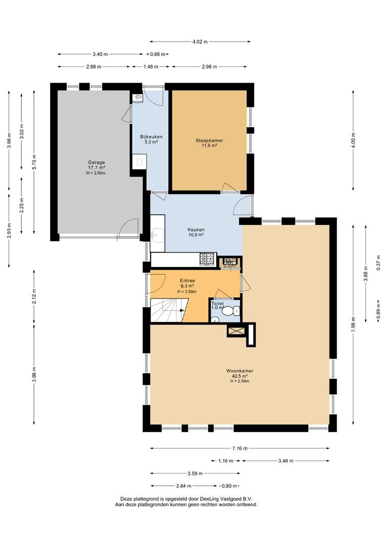
Begane grond: entree/hal, ruime woonkamer met half open keuken (totaal ca. 54 m²), slaapkamer (ca. 12 m² mogelijkheid om uit te bouwen met een badkamer), bijkeuken met toegang tot de garage;
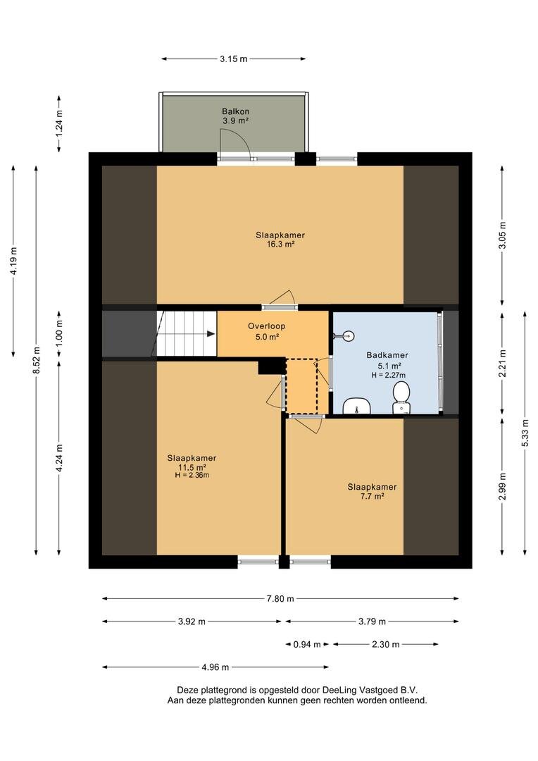
Eerste verdieping: overloop, drie slaapkamers (ca. 16, 12 en 8 m²), balkon, badkamer voorzien van douche, toilet en vaste wastafel;
Tweede verdieping: zolderberging
Bijgebouwen:
- Aangebouwde garage;
Bijzonderheden:
- Woonoppervlakte ca. 129 m²;
- Perceel van 650 m²;
- Zonnige tuin op het Westen;
- Fraaie ligging met veel privacy;
- Verwarming middels centrale verwarming;
- de keuken en badkamers zijn eenvoudig en de woning behoeft modernisering;
- de woning wordt verkocht met een nimmer-bewoond en ouderdomsclausule; in dat kader is de vragenlijst naar beste eer en geweten ingevuld.
Aanvaarding: In overleg
Tip: Bekijk ook de video van deze woning!
Interesse in deze woning? Neem geheel vrijblijvend contact op met Bruining en De Reus Makelaars om een bezichtiging in te plannen!
Vrijstaand woonhuis met garage in villawijk | ca. 129 m² woonoppervlakte | Gelegen op een perceel van 650 m² | Zonnige tuin op het Westen.
Dit fraai vrijstaande woonhuis beschikt over 4 slaapkamers (waarvan één op de begane grond) en is gelegen op een fraaie locatie in de villawijk "Nienoordsrand". Het ruime perceel van 650 m² biedt volop privacy.
De ligging is uitstekend, nabij het landgoed "Nienoord" en op fietsafstand van het centrum van Leek en scholen. De wijk staat bekend om zijn ruime opzet en groene omgeving. Zowel Groningen als Drachten zijn binnen 15 autominuten bereikbaar, terwijl Leek zelf diverse voorzieningen biedt.
Indeling
Begane grond: entree/hal, ruime woonkamer met half open keuken (totaal ca. 54 m²), slaapkamer (ca. 12 m² mogelijkheid om uit te bouwen met een badkamer), bijkeuken met toegang tot de garage;
Eerste verdieping: overloop, drie slaapkamers (ca. 16, 12 en 8 m²), balkon, badkamer voorzien van douche, toilet en vaste wastafel;
Tweede verdieping: zolderberging
Bijgebouwen:
- Aangebouwde garage;
Bijzonderheden:
- Woonoppervlakte ca. 129 m²;
- Perceel van 650 m²;
- Zonnige tuin op het Westen;
- Fraaie ligging met veel privacy;
- Verwarming middels centrale verwarming;
- de keuken en badkamers zijn eenvoudig en de woning behoeft modernisering;
- de woning wordt verkocht met een nimmer-bewoond en ouderdomsclausule; in dat kader is de vragenlijst naar beste eer en geweten ingevuld.
Aanvaarding: In overleg
Tip: Bekijk ook de video van deze woning!
Interesse in deze woning? Neem geheel vrijblijvend contact op met Bruining en De Reus Makelaars om een bezichtiging in te plannen!
Over dit object
Overdracht
| Status | verkocht |
|---|---|
| Prijs | € 525.000 k.k. |
Bouw
| Bouwjaar | 1985 |
|---|---|
| Bouwvorm | bestaande bouw |
| Type Object | Woonhuis |
| Hoofdfunctie | Woonruimte |
Indeling
| Woonoppervlakte | 129 m² |
|---|---|
| Perceeloppervlakte | 650 m² |
| Woning Inhoud | 557 m³ |
| Kamers | 6 (4 slaapkamers) |
Energie
| Energielabel | C |
|---|
















































































