
George Wilhelmlaan 51
Leek
Riant Herenhuis | 8 Slaapkamers | 2 Badkamers | ca. 250 m² Woonoppervlakte | Perceel 728 m²
Op een schitterende locatie staat dit royale, vrijstaande herenhuis, volledig gerenoveerd en klaar om direct in te trekken. Gelegen op een ruim en zonnig perceel van maar liefst 728 m², biedt deze woning alles wat u zoekt in een gezinshuis. Met acht slaapkamers, twee badkamers en een praktische indeling is het een ideale woning voor een breed publiek.
Perfecte Locatie
Deze woning bevindt zich op een strategische plek: alle dagelijkse voorzieningen zijn eenvoudig per fiets bereikbaar. Meerdere basisscholen liggen op loop- of fietsafstand en binnen enkele minuten zit u op de uitvalswegen richting Groningen of Drachten.
Indeling
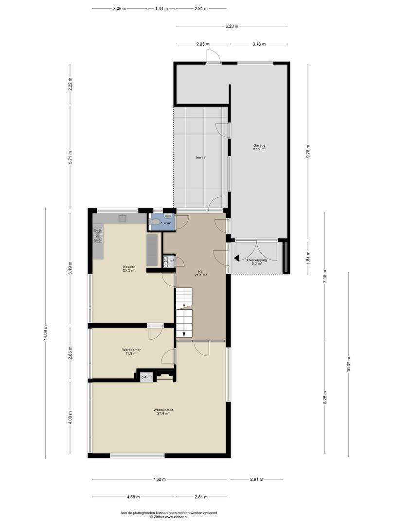
Begane grond: entree met ruime hal, toiletruimte, woonkamer, riante woonkeuken met luxe keuken voorzien van inbouwapparatuur, werkkamer/slaapkamer, vanuit de hal toegang tot de garage;
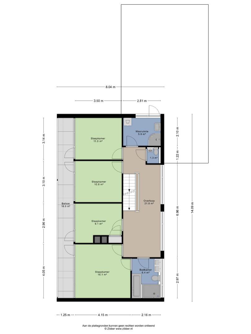
1e verdieping: overloop, toiletruimte, vier ruime slaapkamers met allen toegang tot een balkon, badkamer voorzien van toilet, douche, ligbad en dubbele vaste wastafel, wasruimte (voorheen tweede badkamer);
2e verdieping: overloop, vier slaapkamers, badkamer voorzien van douche, toilet en vaste wastafel;
Bijgebouwen:
- aangebouwde garage;
- veranda
Een bijzonder ruim woonhuis waar u zo in kunt!
Bijzonderheden:
- uitstekend onderhouden;
- acht slaapkamers, twee badkamers!;
- riant perceel 728 m²;
- de woning wordt verwarmd door middel centrale verwarming.
Aanvaarding: in overleg
Tip: bekijk ook de video van deze woning!
Interesse in deze woning? Neem geheel vrijblijvend contact op met Bruining en De Reus Makelaars om deze woning te bezichtigen!
Op een schitterende locatie staat dit royale, vrijstaande herenhuis, volledig gerenoveerd en klaar om direct in te trekken. Gelegen op een ruim en zonnig perceel van maar liefst 728 m², biedt deze woning alles wat u zoekt in een gezinshuis. Met acht slaapkamers, twee badkamers en een praktische indeling is het een ideale woning voor een breed publiek.
Perfecte Locatie
Deze woning bevindt zich op een strategische plek: alle dagelijkse voorzieningen zijn eenvoudig per fiets bereikbaar. Meerdere basisscholen liggen op loop- of fietsafstand en binnen enkele minuten zit u op de uitvalswegen richting Groningen of Drachten.
Indeling
Begane grond: entree met ruime hal, toiletruimte, woonkamer, riante woonkeuken met luxe keuken voorzien van inbouwapparatuur, werkkamer/slaapkamer, vanuit de hal toegang tot de garage;
1e verdieping: overloop, toiletruimte, vier ruime slaapkamers met allen toegang tot een balkon, badkamer voorzien van toilet, douche, ligbad en dubbele vaste wastafel, wasruimte (voorheen tweede badkamer);
2e verdieping: overloop, vier slaapkamers, badkamer voorzien van douche, toilet en vaste wastafel;
Bijgebouwen:
- aangebouwde garage;
- veranda
Een bijzonder ruim woonhuis waar u zo in kunt!
Bijzonderheden:
- uitstekend onderhouden;
- acht slaapkamers, twee badkamers!;
- riant perceel 728 m²;
- de woning wordt verwarmd door middel centrale verwarming.
Aanvaarding: in overleg
Tip: bekijk ook de video van deze woning!
Interesse in deze woning? Neem geheel vrijblijvend contact op met Bruining en De Reus Makelaars om deze woning te bezichtigen!
Over dit object
Overdracht
| Status | verkocht |
|---|---|
| Prijs | € 650.000 k.k. |
Bouw
| Bouwjaar | 1971 |
|---|---|
| Bouwvorm | bestaande bouw |
| Type Object | Woonhuis |
| Hoofdfunctie | Woonruimte |
Indeling
| Woonoppervlakte | 248 m² |
|---|---|
| Perceeloppervlakte | 728 m² |
| Woning Inhoud | 1059 m³ |
| Kamers | 11 (9 slaapkamers) |
Energie
| Energielabel | D |
|---|





























































































































