
Goldbergsingel 78
Leek
Welkom aan de Goldbergsingel 78 in Leek — een knusse gezinswoning met een aangebouwde garage én een zonnige tuin. Deze woning (bouwjaar 1961) is eind jaren ’90 aan de achterzijde uitgebouwd, waardoor je geniet van extra leefruimte in zowel de woonkamer als de keuken. De royale, 9,3 meter lange garage biedt volop ruimte voor auto, fietsen en opslag, terwijl de aparte tuinberging ideaal is als hobbyruimte of extra bergruimte.
Binnen vind je een lichte doorzonwoonkamer met zithoek aan de voorzijde en een eethoek aan de tuinzijde, een dichte keuken, drie slaapkamers en een nette badkamer. Dankzij diverse duurzame voorzieningen, zoals 10 zonnepanelen (2023), gevel- en bodemisolatie (2019 en 2023) woon je hier comfortabel én energiezuiniger — precies wat je zoekt in deze tijd.
Indeling
Begane grond
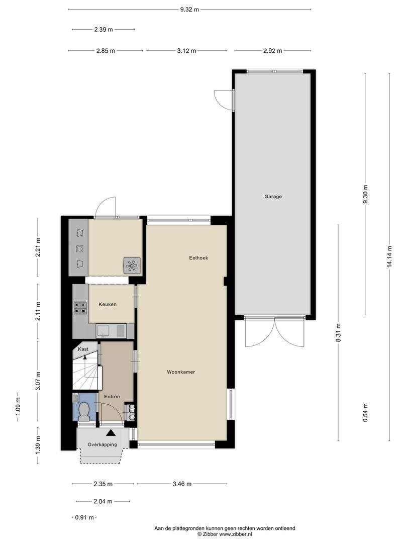
Via de overdekte entree kom je binnen in de hal met meterkast, toilet en trapopgang. De doorzonwoonkamer voelt heerlijk licht en ruim, met een prettige indeling voor een zit- en eethoek. Vanuit de eethoek loop je door naar de keuken met nette hoekopstelling, witgoedaansluitingen en toegang tot de achtertuin.
Eerste verdieping
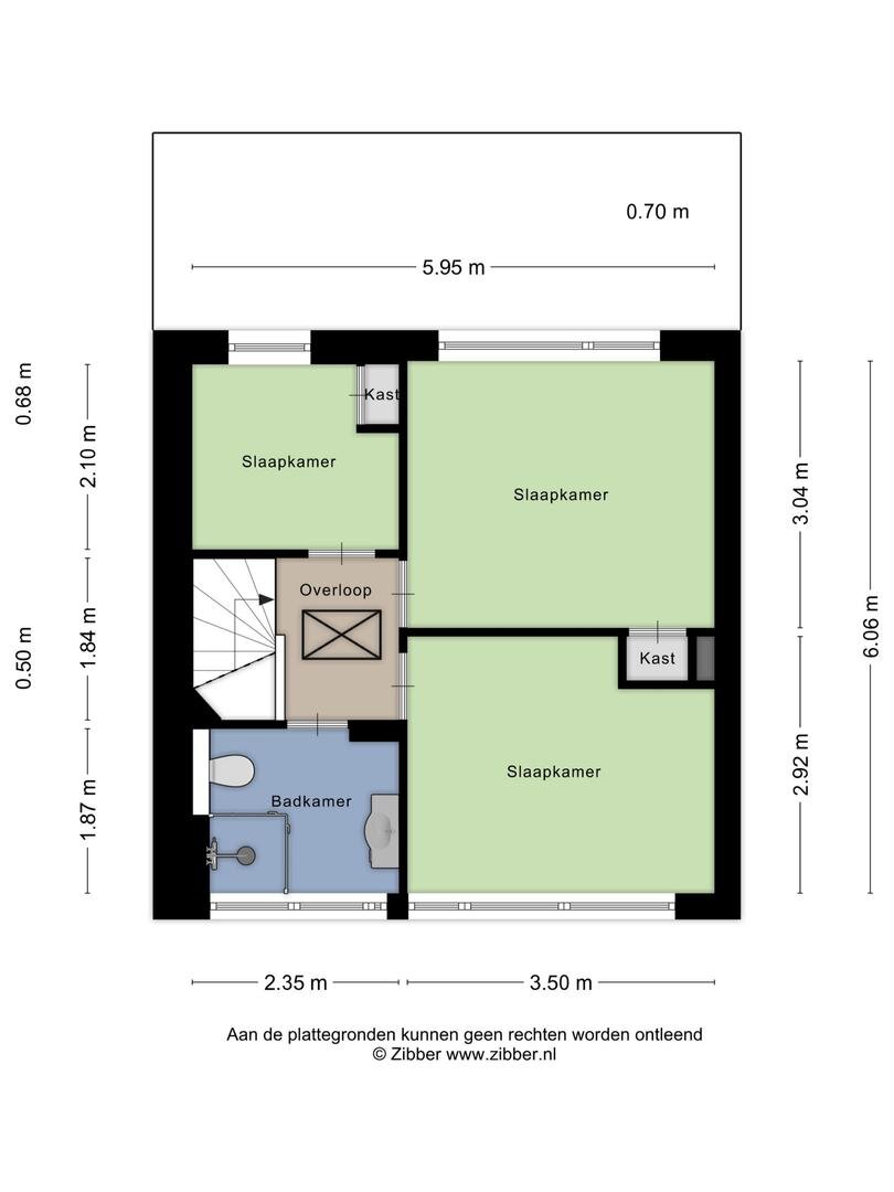
De overloop geeft toegang tot drie slaapkamers (ca. 11, 10 en 5 m²) en de badkamer met douche, toilet, wastafel en vloerverwarming.
Zolder
Via de vlizotrap bereik je de praktische bergzolder — ideaal voor spullen die je niet dagelijks nodig hebt.
Buiten
De tuin is verzorgd, biedt voldoende privacy en heeft altijd wel een plekje in de zon. De aangebouwde garage (dakbedekking vernieuwd in 2018) en aparte hobbyschuur bieden volop opslag- en hobbyruimte.
Locatie
De Goldbergsingel is een rustige, groene straat in Leek. Winkels, scholen en sportvoorzieningen liggen dichtbij en via de A7 ben je zo in Groningen of Drachten. Ook de natuur, zoals het Leekstermeergebied, ligt om de hoek — perfect voor wandelen, fietsen en recreatie.
Goed om te weten:
• Woonoppervlak ca. 86 m², overige inpandige ruimte 27 m²;
• Perceeloppervlak 276 m²;
• Aangebouwde grote garage (afm 9.3 x 2.9 m) met vernieuwde dakbedekking 2018;
• parkeergelegenheid op eigen terrein;
• Voorzien van gevelisolatie (2019) en bodemisolatie (2023);
• In 2023 voorzien van 10 zonnepanelen;
• Verwarming en warm water via Intergas cv-ketel (HR, bj. 2011);
• Alarminstallatie aanwezig;
• Rustige ligging nabij voorzieningen.
Interesse?
Zie je jezelf hier al wonen? Neem contact op met Bruining & De Reus Makelaars om een bezichtiging te plannen — we laten de woning graag aan je zien!
Binnen vind je een lichte doorzonwoonkamer met zithoek aan de voorzijde en een eethoek aan de tuinzijde, een dichte keuken, drie slaapkamers en een nette badkamer. Dankzij diverse duurzame voorzieningen, zoals 10 zonnepanelen (2023), gevel- en bodemisolatie (2019 en 2023) woon je hier comfortabel én energiezuiniger — precies wat je zoekt in deze tijd.
Indeling
Begane grond
Via de overdekte entree kom je binnen in de hal met meterkast, toilet en trapopgang. De doorzonwoonkamer voelt heerlijk licht en ruim, met een prettige indeling voor een zit- en eethoek. Vanuit de eethoek loop je door naar de keuken met nette hoekopstelling, witgoedaansluitingen en toegang tot de achtertuin.
Eerste verdieping
De overloop geeft toegang tot drie slaapkamers (ca. 11, 10 en 5 m²) en de badkamer met douche, toilet, wastafel en vloerverwarming.
Zolder
Via de vlizotrap bereik je de praktische bergzolder — ideaal voor spullen die je niet dagelijks nodig hebt.
Buiten
De tuin is verzorgd, biedt voldoende privacy en heeft altijd wel een plekje in de zon. De aangebouwde garage (dakbedekking vernieuwd in 2018) en aparte hobbyschuur bieden volop opslag- en hobbyruimte.
Locatie
De Goldbergsingel is een rustige, groene straat in Leek. Winkels, scholen en sportvoorzieningen liggen dichtbij en via de A7 ben je zo in Groningen of Drachten. Ook de natuur, zoals het Leekstermeergebied, ligt om de hoek — perfect voor wandelen, fietsen en recreatie.
Goed om te weten:
• Woonoppervlak ca. 86 m², overige inpandige ruimte 27 m²;
• Perceeloppervlak 276 m²;
• Aangebouwde grote garage (afm 9.3 x 2.9 m) met vernieuwde dakbedekking 2018;
• parkeergelegenheid op eigen terrein;
• Voorzien van gevelisolatie (2019) en bodemisolatie (2023);
• In 2023 voorzien van 10 zonnepanelen;
• Verwarming en warm water via Intergas cv-ketel (HR, bj. 2011);
• Alarminstallatie aanwezig;
• Rustige ligging nabij voorzieningen.
Interesse?
Zie je jezelf hier al wonen? Neem contact op met Bruining & De Reus Makelaars om een bezichtiging te plannen — we laten de woning graag aan je zien!
Over dit object
Overdracht
| Status | verkocht |
|---|---|
| Prijs | € 295.000 k.k. |
Bouw
| Bouwjaar | 1961 |
|---|---|
| Bouwvorm | bestaande bouw |
| Type Object | Woonhuis |
| Hoofdfunctie | Woonruimte |
Indeling
| Woonoppervlakte | 86 m² |
|---|---|
| Perceeloppervlakte | 276 m² |
| Woning Inhoud | 399 m³ |
| Kamers | 4 (3 slaapkamers) |
Energie
| Energielabel | B |
|---|
































































