
Grietenij 96
Leek
Welkom bij Grietenij 96, een verrassend ruime en instapklare 2-onder-1-kapwoning met alles wat je nodig hebt voor comfortabel wonen gelegen op een heerlijk rustige locatie. Deze goed onderhouden woning biedt een royale woonkamer-keuken van ca. 51 m², 5 slaapkamers, een bijkeuken en een garage/berging.
Ideale ligging
Deze woning is gelegen in een bijzonder rustige en kindvriendelijke woonomgeving maar met alle voorzieningen die Leek te bieden heeft waaronder scholen, winkelcentra en sportfaciliteiten binnen handbereik. En uiteraard is de ligging van Leek aan de A7 ideaal met snelle verbindingen naar Groningen, Assen en Drachten. Dat het hier prettig wonen is, hebben de huidige eigenaren al bewezen, reeds 27 jaar wonen ze hier met veel plezier. Maar toen er een woning met een slaap- en badkamer op de begane grond op hun pad kwam konden ze die kans niet laten schieten en is de Grietenij 96 beschikbaar voor de volgende generatie.
Indeling
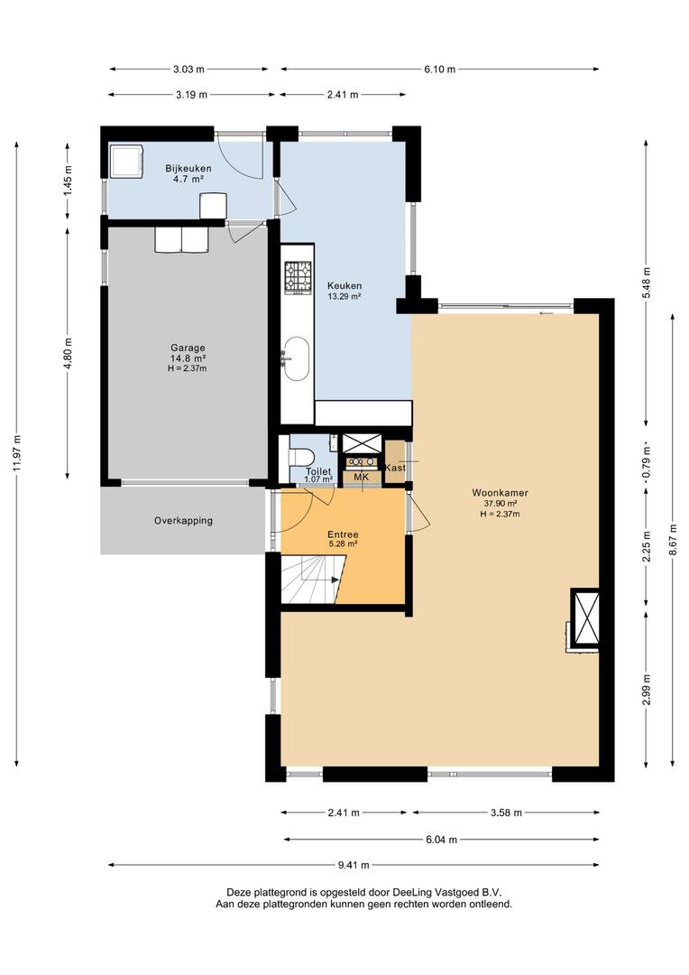
Begane grond: Via de overdekte zij-entree kom je in de hal met garderoberuimte en een net toilet en heb je toegang tot de royale woonkamer van ca. 38 m² met grote ramen aan de voorzijde en een schuifpui aan de achterzijde welke zorgen voor een fijne lichtinval. De ruime keuken (ca. 13 m²) is voorzien van een nette inrichting met veel kastruimte, een groot werkblad en inbouwapparatuur, waaronder een 5-pits gaskookplaat, oven, afzuigkap en vaatwasser. Aansluitend bevindt zich de bijkeuken met witgoedaansluitingen en een deur naar de tuin. Vanuit de bijkeuken heb je tevens toegang tot de garage/berging met een kanteldeur naar de oprit.
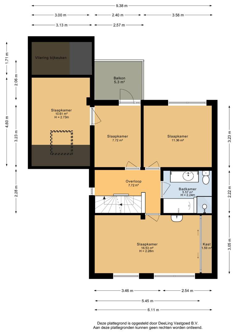
Eerste verdieping: Dankzij de hoge gootlijn biedt deze verdieping veel ruimte. Hier bevinden zich vier royale slaapkamers van ca. 11, 8, 11 en 16 m², waarvan één met toegang tot het balkon. De grootste slaapkamer, met een eigen wastafelmeubel en schuifwandkast, kan desgewenst worden opgesplitst in twee kamers. De nette badkamer is voorzien van een wastafelmeubel, douchecabine, ligbad en tweede toilet.
Tweede verdieping: Ook de tweede verdieping biedt volop ruimte. De overloop met daglicht geeft toegang tot een stook-/bergruimte en de royale zolderkamer ca. 17 m², met dakraam en bergruimte.
Buitenruimte
De woning staat op een perceel van 329 m² eigen grond en heeft een verzorgde achtertuin met meerdere zitplekken, een tuinkas en ruime borders met een grote diversiteit aan bloemen en planten.
Via het pad langs de garage kom je op de oprit welke parkeerruimte biedt aan meerdere auto’s.
Goed om te weten:
- Energielabel B;
- 9 zonnepanelen;
- Verwarming via Remeha cv-ketel (2022, eigendom);
- Gelegen in een rustige, kindvriendelijke buurt met voorzieningen op korte afstand.
Tip: bekijk ook de video van deze woning!
Kortom, deze verrassend ruime 2-onder-1-kapwoning in Leek biedt alle ingrediënten voor jarenlang woonplezier. Kom kijken en laat je verrassen door de ruimte en het comfort!
Ideale ligging
Deze woning is gelegen in een bijzonder rustige en kindvriendelijke woonomgeving maar met alle voorzieningen die Leek te bieden heeft waaronder scholen, winkelcentra en sportfaciliteiten binnen handbereik. En uiteraard is de ligging van Leek aan de A7 ideaal met snelle verbindingen naar Groningen, Assen en Drachten. Dat het hier prettig wonen is, hebben de huidige eigenaren al bewezen, reeds 27 jaar wonen ze hier met veel plezier. Maar toen er een woning met een slaap- en badkamer op de begane grond op hun pad kwam konden ze die kans niet laten schieten en is de Grietenij 96 beschikbaar voor de volgende generatie.
Indeling
Begane grond: Via de overdekte zij-entree kom je in de hal met garderoberuimte en een net toilet en heb je toegang tot de royale woonkamer van ca. 38 m² met grote ramen aan de voorzijde en een schuifpui aan de achterzijde welke zorgen voor een fijne lichtinval. De ruime keuken (ca. 13 m²) is voorzien van een nette inrichting met veel kastruimte, een groot werkblad en inbouwapparatuur, waaronder een 5-pits gaskookplaat, oven, afzuigkap en vaatwasser. Aansluitend bevindt zich de bijkeuken met witgoedaansluitingen en een deur naar de tuin. Vanuit de bijkeuken heb je tevens toegang tot de garage/berging met een kanteldeur naar de oprit.
Eerste verdieping: Dankzij de hoge gootlijn biedt deze verdieping veel ruimte. Hier bevinden zich vier royale slaapkamers van ca. 11, 8, 11 en 16 m², waarvan één met toegang tot het balkon. De grootste slaapkamer, met een eigen wastafelmeubel en schuifwandkast, kan desgewenst worden opgesplitst in twee kamers. De nette badkamer is voorzien van een wastafelmeubel, douchecabine, ligbad en tweede toilet.
Tweede verdieping: Ook de tweede verdieping biedt volop ruimte. De overloop met daglicht geeft toegang tot een stook-/bergruimte en de royale zolderkamer ca. 17 m², met dakraam en bergruimte.
Buitenruimte
De woning staat op een perceel van 329 m² eigen grond en heeft een verzorgde achtertuin met meerdere zitplekken, een tuinkas en ruime borders met een grote diversiteit aan bloemen en planten.
Via het pad langs de garage kom je op de oprit welke parkeerruimte biedt aan meerdere auto’s.
Goed om te weten:
- Energielabel B;
- 9 zonnepanelen;
- Verwarming via Remeha cv-ketel (2022, eigendom);
- Gelegen in een rustige, kindvriendelijke buurt met voorzieningen op korte afstand.
Tip: bekijk ook de video van deze woning!
Kortom, deze verrassend ruime 2-onder-1-kapwoning in Leek biedt alle ingrediënten voor jarenlang woonplezier. Kom kijken en laat je verrassen door de ruimte en het comfort!
Over dit object
Overdracht
| Status | verkocht |
|---|---|
| Prijs | € 395.000 k.k. |
Bouw
| Bouwjaar | 1976 |
|---|---|
| Bouwvorm | bestaande bouw |
| Type Object | Woonhuis |
| Hoofdfunctie | Woonruimte |
Indeling
| Woonoppervlakte | 161 m² |
|---|---|
| Perceeloppervlakte | 329 m² |
| Woning Inhoud | 605 m³ |
| Kamers | 6 (5 slaapkamers) |
Energie
| Energielabel | B |
|---|








































































































