
Heihorst 2
Tolbert
Prachtig gelegen gezinshuis
Vrijstaand woonhuis | 132 m² woonoppervlakte | aangebouwde garage | 599 m² perceeloppervlakte
In fraaie woonwijk van Tolbert gelegen, vrijstaand woonhuis met een aangebouwde garage. De woning beschikt onder andere over 3 slaapkamers op de verdieping en een kantoor/slaapkamer op de begane grond (met mogelijkheid om hier een tweede badkamer te realiseren). De woning is op fraaie locatie gelegen in een kindvriendelijke woonwijk, nabij scholen en op steenworp afstand van groenvoorziening met speeltuin. Een ideaal gezinshuis!
De ligging van de woning is uitstekend, op fietsafstand van het centrum van Leek, Tolbert en nabij landgoed "Nienoord". Op een paar minuten loopafstand ligt de Tolbertervaart, waar u heerlijk kunt wandelen en genieten van de natuur. Daarnaast bieden Tolbert en Leek vele voorzieningen. Zowel de stad Groningen als Drachten zijn binnen 15 autominuten bereikbaar, omdat de oprit naar de A7 binnen een paar autominuten te bereiken is. Ook het openbaar vervoer is uitstekend te noemen. Op 4 minuten loopafstand ligt de bushalte, waar ieder kwartier een bus vertrekt naar de Grote Markt in Groningen (via het Centraal Station).
Indeling begane grond: entree/hal, werk-/slaapkamer (ca. 11 m²) met toegang tot multifunctionele ruimte (geschikt als badkamer), toiletruimte, meterkast, ruime en lichte L-vormige woonkamer (ca. 39 m²), keuken (8 m²) met nette keukenopstelling voorzien van diverse inbouwapparatuur, bijkeuken met toegang tot de garage waarin een werkruimte is gemaakte (ook geschikt als dubbele garage);
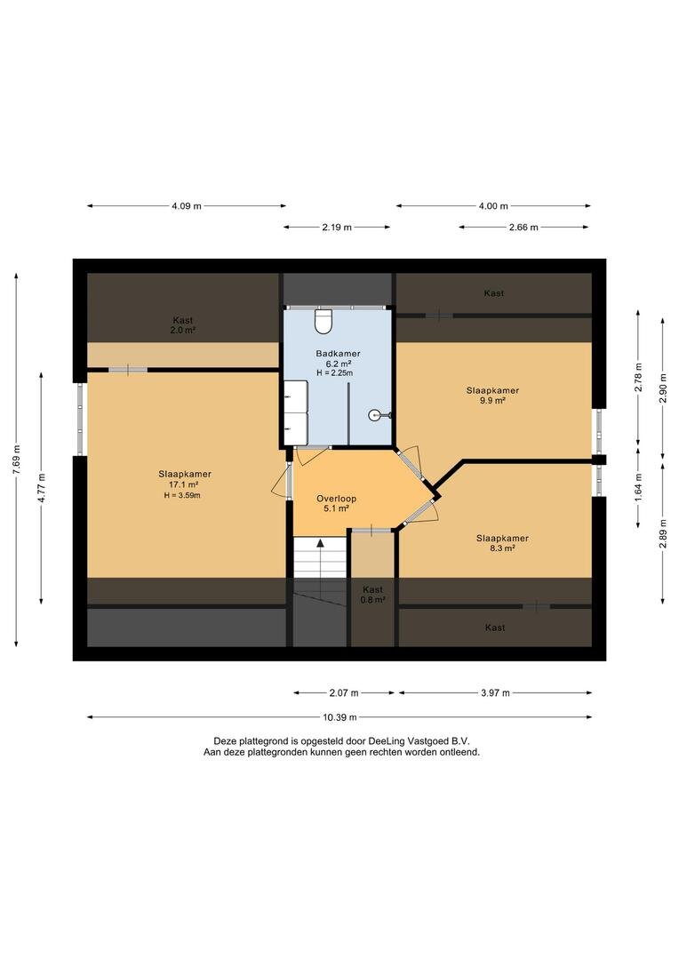
1e verdieping: overloop, drie slaapkamers (17 m², 10 m² en 8 m²) met diverse vaste kasten, fraaie badkamer (bouwjaar 2019) voorzien van douche, tweede toilet en dubbele vaste wastafel;
Bijgebouwen:
- Aangebouwde ruime stenen garage met werkruimte;
- Vrijstaande houten berging/schuur.
Bijzonderheden:
- gelegen aan groenvoorziening;
- gelegen in een kindvriendelijke buurt nabij verschillende scholen;
- woonoppervlakte 132 m²;
- perceeloppervlakte 599 m² met een zonnige tuin;
- verwarming middels heteluchtverwarming;
- De gehele woning is voorzien van nieuwe beglazing (hr ++);
- energielabel B;
- slaapkamer en mogelijk tot badkamer op de begane grond waardoor de woning relatief eenvoudige levensloopbestendig te maken is;
- volop privacy rondom de woning
- parkeerruimte voor meerdere auto's.
Aanvaarding: in overleg
Bekijk ook de video van deze woning en neem geheel vrijblijvend contact op met Bruining en De Reus Makelaars voor een bezichtiging!
Vrijstaand woonhuis | 132 m² woonoppervlakte | aangebouwde garage | 599 m² perceeloppervlakte
In fraaie woonwijk van Tolbert gelegen, vrijstaand woonhuis met een aangebouwde garage. De woning beschikt onder andere over 3 slaapkamers op de verdieping en een kantoor/slaapkamer op de begane grond (met mogelijkheid om hier een tweede badkamer te realiseren). De woning is op fraaie locatie gelegen in een kindvriendelijke woonwijk, nabij scholen en op steenworp afstand van groenvoorziening met speeltuin. Een ideaal gezinshuis!
De ligging van de woning is uitstekend, op fietsafstand van het centrum van Leek, Tolbert en nabij landgoed "Nienoord". Op een paar minuten loopafstand ligt de Tolbertervaart, waar u heerlijk kunt wandelen en genieten van de natuur. Daarnaast bieden Tolbert en Leek vele voorzieningen. Zowel de stad Groningen als Drachten zijn binnen 15 autominuten bereikbaar, omdat de oprit naar de A7 binnen een paar autominuten te bereiken is. Ook het openbaar vervoer is uitstekend te noemen. Op 4 minuten loopafstand ligt de bushalte, waar ieder kwartier een bus vertrekt naar de Grote Markt in Groningen (via het Centraal Station).
Indeling begane grond: entree/hal, werk-/slaapkamer (ca. 11 m²) met toegang tot multifunctionele ruimte (geschikt als badkamer), toiletruimte, meterkast, ruime en lichte L-vormige woonkamer (ca. 39 m²), keuken (8 m²) met nette keukenopstelling voorzien van diverse inbouwapparatuur, bijkeuken met toegang tot de garage waarin een werkruimte is gemaakte (ook geschikt als dubbele garage);
1e verdieping: overloop, drie slaapkamers (17 m², 10 m² en 8 m²) met diverse vaste kasten, fraaie badkamer (bouwjaar 2019) voorzien van douche, tweede toilet en dubbele vaste wastafel;
Bijgebouwen:
- Aangebouwde ruime stenen garage met werkruimte;
- Vrijstaande houten berging/schuur.
Bijzonderheden:
- gelegen aan groenvoorziening;
- gelegen in een kindvriendelijke buurt nabij verschillende scholen;
- woonoppervlakte 132 m²;
- perceeloppervlakte 599 m² met een zonnige tuin;
- verwarming middels heteluchtverwarming;
- De gehele woning is voorzien van nieuwe beglazing (hr ++);
- energielabel B;
- slaapkamer en mogelijk tot badkamer op de begane grond waardoor de woning relatief eenvoudige levensloopbestendig te maken is;
- volop privacy rondom de woning
- parkeerruimte voor meerdere auto's.
Aanvaarding: in overleg
Bekijk ook de video van deze woning en neem geheel vrijblijvend contact op met Bruining en De Reus Makelaars voor een bezichtiging!
Over dit object
Overdracht
| Status | beschikbaar |
|---|---|
| Prijs | € 525.000 k.k. |
Bouw
| Bouwjaar | 1993 |
|---|---|
| Bouwvorm | bestaande bouw |
| Type Object | Woonhuis |
| Hoofdfunctie | Woonruimte |
Indeling
| Woonoppervlakte | 132 m² |
|---|---|
| Perceeloppervlakte | 582 m² |
| Woning Inhoud | 599 m³ |
| Kamers | 5 (4 slaapkamers) |
Energie
| Energielabel | B |
|---|
























































































