
Molenkanaal 9
Leek
Royale en zonnige vrijstaande villa - energielabel A - 6 slaapkamers - ruime tuin op het zuiden met sauna en volop privacy!
Deze royale en zonnige vrijstaande molenvilla aan een doodlopende straat is gelegen in een kindvriendelijke wijk en heeft nog al wat te bieden, waaronder heel veel privacy! De schuine kavels geven de beleving dat je volledig vrij woont in deze zeer groene wijk.
De woning heeft dankzij een verbouwing in 2008 een zeer ruime hal en toilet gekregen plus het gemak van een ruime bijkeuken/berging met zolder. Aan de voorzijde van de woning is parkeergelegenheid voor meerdere auto’s te vinden. Met de mooie tuingerichte slaapkamer beneden is de woning eventueel ook levensloopbestendig te maken. De woning heeft energielabel A, is voorzien van 38 zonnepanelen en heeft een aansluiting voor elektrisch laden. In de riante tuin gelegen op het zuiden is genoeg plek voor zowel zon als schaduwplekken. Hier bevinden zich een tuinhuis met een sauna plus buitendouche en een glazen/aluminium kweekkas. Genieten van het heerlijke ‘buitenleven’ is hier bij de prijs inbegrepen.
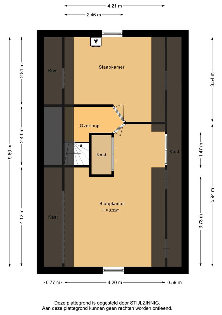
INDELING
Begane grond: entree/hal met toegang tot de ruime living van maar liefst ca. 55 m² die is voorzien van een houtkachel en erker. Hier kun je volop ontspannen waarbij de tuingerichte keuken en de eethoek met grote glaspartijen nog een gevoel van buitenleven geven en dit zorgt voor veel lichtinval. Op de begane grond bevindt zich ook een slaapkamer van ca. 10 m², ideaal voor levensloopbestendig wonen, en een bijkeuken/berging van ca. 18 m² met zolder voor extra opbergruimte. Het toilet op deze verdieping is vernieuwd en biedt extra comfort.
Eerste verdieping: overloop met toegang tot drie slaapkamers van ca. 16, 13 en 11 m², waaronder de hoofdslaapkamer met een ruime inloopkast, gelegen boven de erker. De badkamer van ca. 8 m² is luxe ingericht met een bad, douche, toilet en twee wastafels, zodat er geen gebrek is aan comfort.
Tweede verdieping: overloop met toegang tot twee ruime slaapkamers van ca. 18 en 11 m², ideaal voor logees of een kantoorruimte.
WOONOMGEVING
Met de gunstige ligging in een rustige straat biedt deze woning een prettige woonomgeving. Dankzij de ruime opzet van de wijk ervaar je hier privacy en vrijheid, terwijl het gezellige centrum van Leek en de natuurrijke omgeving toch dichtbij zijn. De buurt is veilig en kindvriendelijk.
VOORZIENINGEN
Naast het sportcentrum op loopafstand is er een uitgebreid winkelaanbod, zijn er diverse scholen (zowel lager- als voortgezet onderwijs) en sfeervolle horecagelegenheden. Uitgebreide medische voorzieningen en sportfaciliteiten zijn op korte afstand aanwezig. Het nabij gelegen Leekstermeer en Landgoed Nienoord vormen unieke recreatieve voorzieningen.
BEREIKBAARHEID
Leek heeft snelle verbindingen naar diverse plaatsen, waaronder de bruisende stad Groningen. Op loopafstand ligt een bushalte, waar heel regelmatig een bus vertrekt richting Groningen, reistijd ca. 20/25 minuten. Fiets- en wandelpaden maken het eenvoudig om het dorp en de omgeving te verkennen.
KENMERKEN
- ruime vrijstaande villa (199 m² inclusief de bijkeuken/berging);
- de oorspronkelijke garage is bij het huis getrokken, verlengd, geïsoleerd en verwarmd;
- bijkeuken/berging eenvoudig weer te gebruiken als garage;
- achtertuin gelegen op het zuiden van ca. 265 m² met sauna, buitendouche en tuinkas;
- energielabel A met 38 zonnepanelen;
- voorzien van waterontharder;
- buitenschilderwerk uitgevoerd in 2023;
- Remeha cv-ketel, bouwjaar 2023;
- levensloopbestendig met slaapkamer op de begane grond;
- parkeerplaatsen op eigen terrein met plaats voor 3 auto's;
- kindvriendelijke wijk, dichtbij natuur en voorzieningen;
- goede bereikbaarheid, 20 autominuten van Groningen;
- aanvaarding in overleg (beschikbaar per 1 april 2025).
Geïnteresseerd in deze unieke woning?
Deze villa biedt alles voor comfortabel wonen en genieten van privacy. Neem gerust contact met ons op voor meer informatie of om een bezichtiging in te plannen. We vertellen je graag meer over deze prachtige woning en de mogelijkheden. Wij kijken ernaar uit je te verwelkomen!
Deze royale en zonnige vrijstaande molenvilla aan een doodlopende straat is gelegen in een kindvriendelijke wijk en heeft nog al wat te bieden, waaronder heel veel privacy! De schuine kavels geven de beleving dat je volledig vrij woont in deze zeer groene wijk.
De woning heeft dankzij een verbouwing in 2008 een zeer ruime hal en toilet gekregen plus het gemak van een ruime bijkeuken/berging met zolder. Aan de voorzijde van de woning is parkeergelegenheid voor meerdere auto’s te vinden. Met de mooie tuingerichte slaapkamer beneden is de woning eventueel ook levensloopbestendig te maken. De woning heeft energielabel A, is voorzien van 38 zonnepanelen en heeft een aansluiting voor elektrisch laden. In de riante tuin gelegen op het zuiden is genoeg plek voor zowel zon als schaduwplekken. Hier bevinden zich een tuinhuis met een sauna plus buitendouche en een glazen/aluminium kweekkas. Genieten van het heerlijke ‘buitenleven’ is hier bij de prijs inbegrepen.
INDELING
Begane grond: entree/hal met toegang tot de ruime living van maar liefst ca. 55 m² die is voorzien van een houtkachel en erker. Hier kun je volop ontspannen waarbij de tuingerichte keuken en de eethoek met grote glaspartijen nog een gevoel van buitenleven geven en dit zorgt voor veel lichtinval. Op de begane grond bevindt zich ook een slaapkamer van ca. 10 m², ideaal voor levensloopbestendig wonen, en een bijkeuken/berging van ca. 18 m² met zolder voor extra opbergruimte. Het toilet op deze verdieping is vernieuwd en biedt extra comfort.
Eerste verdieping: overloop met toegang tot drie slaapkamers van ca. 16, 13 en 11 m², waaronder de hoofdslaapkamer met een ruime inloopkast, gelegen boven de erker. De badkamer van ca. 8 m² is luxe ingericht met een bad, douche, toilet en twee wastafels, zodat er geen gebrek is aan comfort.
Tweede verdieping: overloop met toegang tot twee ruime slaapkamers van ca. 18 en 11 m², ideaal voor logees of een kantoorruimte.
WOONOMGEVING
Met de gunstige ligging in een rustige straat biedt deze woning een prettige woonomgeving. Dankzij de ruime opzet van de wijk ervaar je hier privacy en vrijheid, terwijl het gezellige centrum van Leek en de natuurrijke omgeving toch dichtbij zijn. De buurt is veilig en kindvriendelijk.
VOORZIENINGEN
Naast het sportcentrum op loopafstand is er een uitgebreid winkelaanbod, zijn er diverse scholen (zowel lager- als voortgezet onderwijs) en sfeervolle horecagelegenheden. Uitgebreide medische voorzieningen en sportfaciliteiten zijn op korte afstand aanwezig. Het nabij gelegen Leekstermeer en Landgoed Nienoord vormen unieke recreatieve voorzieningen.
BEREIKBAARHEID
Leek heeft snelle verbindingen naar diverse plaatsen, waaronder de bruisende stad Groningen. Op loopafstand ligt een bushalte, waar heel regelmatig een bus vertrekt richting Groningen, reistijd ca. 20/25 minuten. Fiets- en wandelpaden maken het eenvoudig om het dorp en de omgeving te verkennen.
KENMERKEN
- ruime vrijstaande villa (199 m² inclusief de bijkeuken/berging);
- de oorspronkelijke garage is bij het huis getrokken, verlengd, geïsoleerd en verwarmd;
- bijkeuken/berging eenvoudig weer te gebruiken als garage;
- achtertuin gelegen op het zuiden van ca. 265 m² met sauna, buitendouche en tuinkas;
- energielabel A met 38 zonnepanelen;
- voorzien van waterontharder;
- buitenschilderwerk uitgevoerd in 2023;
- Remeha cv-ketel, bouwjaar 2023;
- levensloopbestendig met slaapkamer op de begane grond;
- parkeerplaatsen op eigen terrein met plaats voor 3 auto's;
- kindvriendelijke wijk, dichtbij natuur en voorzieningen;
- goede bereikbaarheid, 20 autominuten van Groningen;
- aanvaarding in overleg (beschikbaar per 1 april 2025).
Geïnteresseerd in deze unieke woning?
Deze villa biedt alles voor comfortabel wonen en genieten van privacy. Neem gerust contact met ons op voor meer informatie of om een bezichtiging in te plannen. We vertellen je graag meer over deze prachtige woning en de mogelijkheden. Wij kijken ernaar uit je te verwelkomen!
Over dit object
Overdracht
| Status | verkocht |
|---|---|
| Prijs | € 669.000 k.k. |
Bouw
| Bouwjaar | 1998 |
|---|---|
| Bouwvorm | bestaande bouw |
| Type Object | Woonhuis |
| Hoofdfunctie | Woonruimte |
Indeling
| Woonoppervlakte | 199 m² |
|---|---|
| Perceeloppervlakte | 590 m² |
| Woning Inhoud | 739 m³ |
| Kamers | 7 (6 slaapkamers) |
Energie
| Energielabel | A |
|---|












































































































