
Oranjerie 35
Leek
Ideale starterswoning
Tussenwoning | perceel ca. 184 m² | 4 slaapkamers | ca. 111 m² woonoppervlakte | 3 eigen parkeerplaatsen
Op een goede locatie, op loop- en fietsafstand van het centrum van Leek en Tolbert, scholen, winkels en overige voorzieningen, ligt deze eenvoudige maar degelijk gebouwde tussenwoning met een ruim erf en maar liefst drie eigen parkeerplaatsen.
Zowel de stad Groningen als Drachten zijn binnen 15 autominuten bereikbaar, waardoor de ligging ideaal is voor forenzen.
De woning is netjes onderhouden maar behoeft modernisering, wat het tot een uitstekende starterswoning maakt met volop mogelijkheden om naar eigen smaak te moderniseren en in te richten.
INDELING
Begane grond:
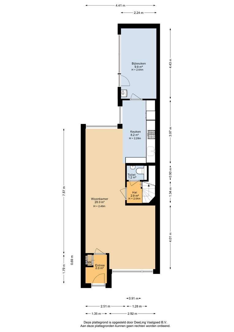
Entree/hal, meterkast, toiletruimte, woonkamer (ca. 28 m²), open keuken met toegang tot de bijkeuken/achter-entree en berging.
Eerste verdieping:
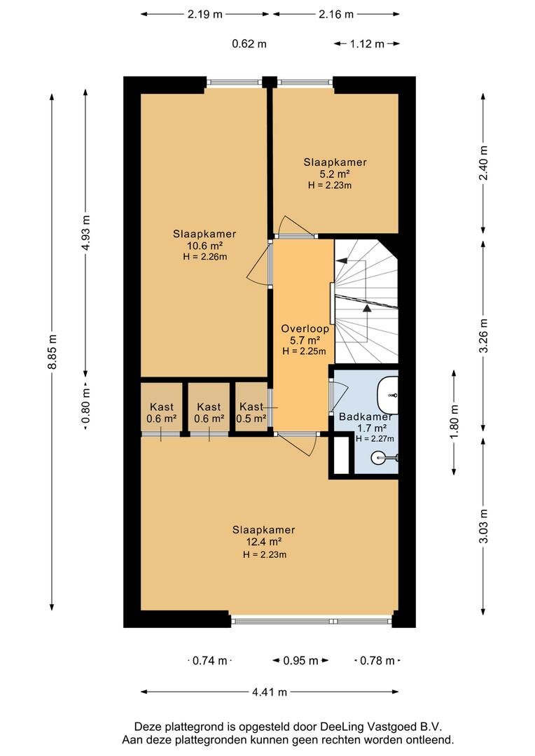
Overloop, 3 slaapkamers (ca. 13 m², 11 m² en 5 m²), eenvoudige badkamer met douche en vaste wastafel.
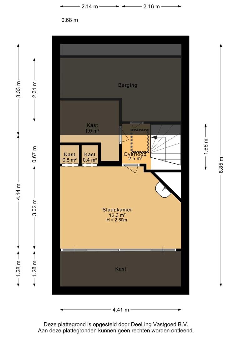
Twee verdieping: overloop, kastruimte, slaapkamer (ca. 12 m²) inclusief wastafel en kastruimte.
Buitenruimte:
Ruim perceel met meerdere bergingen en 3 eigen parkeerplaatsen op eigen terrein.
Bijzonderheden
- Woonoppervlakte ca. 111 m²
- Perceeloppervlakte ca. 184 m²
- Verwarming via cv-combiketel (bouwjaar 2012)
- De woning is voorzien van 6 eigen zonnepanelen
- Grotendeels voorzien van isolerende beglazing
- 3 eigen parkeerplaatsen!
De woning verkeert in eenvoudige staat, intern en extern modernisering gewenst
Verkoop ‘as is, where is’
Aanvaarding: in overleg (kan snel)
Tip: bekijk ook de video van deze woning!
Interesse in deze woning? Neem geheel vrijblijvend contact op met Bruining en De Reus Makelaars om een bezichtiging in te plannen.
Tussenwoning | perceel ca. 184 m² | 4 slaapkamers | ca. 111 m² woonoppervlakte | 3 eigen parkeerplaatsen
Op een goede locatie, op loop- en fietsafstand van het centrum van Leek en Tolbert, scholen, winkels en overige voorzieningen, ligt deze eenvoudige maar degelijk gebouwde tussenwoning met een ruim erf en maar liefst drie eigen parkeerplaatsen.
Zowel de stad Groningen als Drachten zijn binnen 15 autominuten bereikbaar, waardoor de ligging ideaal is voor forenzen.
De woning is netjes onderhouden maar behoeft modernisering, wat het tot een uitstekende starterswoning maakt met volop mogelijkheden om naar eigen smaak te moderniseren en in te richten.
INDELING
Begane grond:
Entree/hal, meterkast, toiletruimte, woonkamer (ca. 28 m²), open keuken met toegang tot de bijkeuken/achter-entree en berging.
Eerste verdieping:
Overloop, 3 slaapkamers (ca. 13 m², 11 m² en 5 m²), eenvoudige badkamer met douche en vaste wastafel.
Twee verdieping: overloop, kastruimte, slaapkamer (ca. 12 m²) inclusief wastafel en kastruimte.
Buitenruimte:
Ruim perceel met meerdere bergingen en 3 eigen parkeerplaatsen op eigen terrein.
Bijzonderheden
- Woonoppervlakte ca. 111 m²
- Perceeloppervlakte ca. 184 m²
- Verwarming via cv-combiketel (bouwjaar 2012)
- De woning is voorzien van 6 eigen zonnepanelen
- Grotendeels voorzien van isolerende beglazing
- 3 eigen parkeerplaatsen!
De woning verkeert in eenvoudige staat, intern en extern modernisering gewenst
Verkoop ‘as is, where is’
Aanvaarding: in overleg (kan snel)
Tip: bekijk ook de video van deze woning!
Interesse in deze woning? Neem geheel vrijblijvend contact op met Bruining en De Reus Makelaars om een bezichtiging in te plannen.
Over dit object
Overdracht
| Status | verkocht onder voorbehoud |
|---|---|
| Prijs | € 260.000 k.k. |
Bouw
| Bouwjaar | 1972 |
|---|---|
| Bouwvorm | bestaande bouw |
| Type Object | Woonhuis |
| Hoofdfunctie | Woonruimte |
Indeling
| Woonoppervlakte | 111 m² |
|---|---|
| Perceeloppervlakte | 184 m² |
| Woning Inhoud | 379 m³ |
| Kamers | 5 (4 slaapkamers) |
Energie
| Energielabel | B |
|---|






























































































