
Tureluur 10
Zevenhuizen
Ben je op zoek naar een moderne, instapklare en uitgebouwde woning met het wooncomfort van nieuwbouw én de duurzaamheid van de toekomst? Welkom aan de Tureluur 10 in Zevenhuizen!
Deze stijlvolle tussenwoning uit 2020 is volledig gasloos, beschikt over energielabel A+++, 14 zonnepanelen, vloerverwarming op twee verdiepingen en een aardwarmtepomp voor zowel verwarmen als koelen. Gunstig voor de portemonnee natuurlijk; het voorschot voor elektra is hier ca. €25,- (!) per maand. De woning ligt in een rustige, groene woonwijk met volop parkeergelegenheid en dagelijkse voorzieningen op korte afstand.
Begane grond
Je komt binnen in een ruime hal met meterkast en toilet. Vervolgens stap je de lichte, tuingerichte woonkamer binnen. Dankzij de uitbouw aan de achterzijde voelt deze ruimte direct royaal aan, met volop plek voor een eettafel en een comfortabele zithoek. De praktische trapkast biedt extra bergruimte en via de openslaande deuren loop je zo de achtertuin in.
Aan de straatzijde bevindt zich de moderne open keuken, uitgerust met alle gebruikelijke inbouwapparatuur en veel werk- en kastruimte.
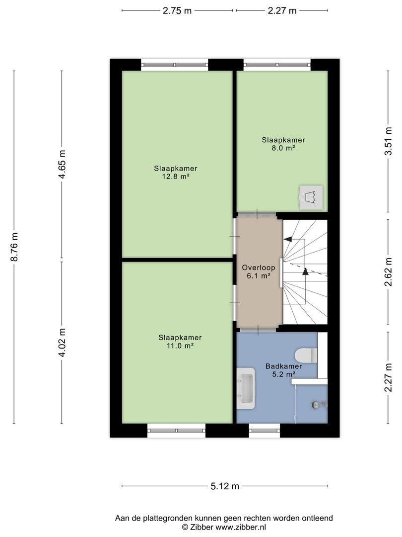
Eerste verdieping
Op de eerste verdieping bevinden zich 3 comfortabele slaapkamers (resp. 8, 11 en 13 m²) en een moderne badkamer met daglicht, inloopdouche, wastafelmeubel en toilet.
Tweede verdieping
De ruime zolder (ca. 30 m²!) met dakraam is momenteel één grote open ruimte en biedt dan ook de mogelijkheid om hier een werkruimte of hobbykamer te realiseren.
Buiten
De achtertuin is keurig aangelegd en er is alle ruimte om heerlijk te ontspannen en geniet je van veel privacy. Een extra pluspunt is de houten overkapping: een sfeervolle plek waar je het hele jaar door heerlijk kunt zitten. Dankzij de verlichting kun je hier ook ’s avonds nog heerlijk genieten van je tuin. Een tuinberging biedt plek voor fietsen en gereedschap en via de achterom bereik je eenvoudig de straatzijde.
Locatie
Tureluur 10 ligt in een rustige en groene straat in Zevenhuizen in de nieuwe woonwijk Zevenhuizen-Oost, centraal tussen Groningen, Friesland en Drenthe. Ook zijn er in de wijk diverse speeltuintjes. Basisvoorzieningen zijn dichtbij en grotere plaatsen zoals Leek en Roden bereikt u binnen enkele minuten rijden.
Hou je van natuur en recreatie? De omgeving biedt volop mogelijkheden: van wandelen in de Bakkeveense Duinen tot zwemmen bij het Ronostrand en mooie fietstochten door het coulisselandschap.
Samenvatting
• Bouwjaar 2020;
• Woonoppervlakte ca. 118 m²;
• Perceel ca. 188 m²;
• Gasloos, aardwarmtepomp, energielabel A+++;
• 14 zonnepanelen;
• Vloerverwarming op twee verdiepingen;
• Heerlijke tuin met terrasoverkapping, borders, berging en achterom.
Met modern wooncomfort, uitstekende isolatie en lage maandlasten is dit een duurzame en toekomstbestendige woning waar je jarenlang zorgeloos woont!
Neem contact op met Bruining & De Reus Makelaars en plan een bezichtiging — we laten je deze energiezuinige woning graag zien!
Deze stijlvolle tussenwoning uit 2020 is volledig gasloos, beschikt over energielabel A+++, 14 zonnepanelen, vloerverwarming op twee verdiepingen en een aardwarmtepomp voor zowel verwarmen als koelen. Gunstig voor de portemonnee natuurlijk; het voorschot voor elektra is hier ca. €25,- (!) per maand. De woning ligt in een rustige, groene woonwijk met volop parkeergelegenheid en dagelijkse voorzieningen op korte afstand.
Begane grond
Je komt binnen in een ruime hal met meterkast en toilet. Vervolgens stap je de lichte, tuingerichte woonkamer binnen. Dankzij de uitbouw aan de achterzijde voelt deze ruimte direct royaal aan, met volop plek voor een eettafel en een comfortabele zithoek. De praktische trapkast biedt extra bergruimte en via de openslaande deuren loop je zo de achtertuin in.
Aan de straatzijde bevindt zich de moderne open keuken, uitgerust met alle gebruikelijke inbouwapparatuur en veel werk- en kastruimte.
Eerste verdieping
Op de eerste verdieping bevinden zich 3 comfortabele slaapkamers (resp. 8, 11 en 13 m²) en een moderne badkamer met daglicht, inloopdouche, wastafelmeubel en toilet.
Tweede verdieping
De ruime zolder (ca. 30 m²!) met dakraam is momenteel één grote open ruimte en biedt dan ook de mogelijkheid om hier een werkruimte of hobbykamer te realiseren.
Buiten
De achtertuin is keurig aangelegd en er is alle ruimte om heerlijk te ontspannen en geniet je van veel privacy. Een extra pluspunt is de houten overkapping: een sfeervolle plek waar je het hele jaar door heerlijk kunt zitten. Dankzij de verlichting kun je hier ook ’s avonds nog heerlijk genieten van je tuin. Een tuinberging biedt plek voor fietsen en gereedschap en via de achterom bereik je eenvoudig de straatzijde.
Locatie
Tureluur 10 ligt in een rustige en groene straat in Zevenhuizen in de nieuwe woonwijk Zevenhuizen-Oost, centraal tussen Groningen, Friesland en Drenthe. Ook zijn er in de wijk diverse speeltuintjes. Basisvoorzieningen zijn dichtbij en grotere plaatsen zoals Leek en Roden bereikt u binnen enkele minuten rijden.
Hou je van natuur en recreatie? De omgeving biedt volop mogelijkheden: van wandelen in de Bakkeveense Duinen tot zwemmen bij het Ronostrand en mooie fietstochten door het coulisselandschap.
Samenvatting
• Bouwjaar 2020;
• Woonoppervlakte ca. 118 m²;
• Perceel ca. 188 m²;
• Gasloos, aardwarmtepomp, energielabel A+++;
• 14 zonnepanelen;
• Vloerverwarming op twee verdiepingen;
• Heerlijke tuin met terrasoverkapping, borders, berging en achterom.
Met modern wooncomfort, uitstekende isolatie en lage maandlasten is dit een duurzame en toekomstbestendige woning waar je jarenlang zorgeloos woont!
Neem contact op met Bruining & De Reus Makelaars en plan een bezichtiging — we laten je deze energiezuinige woning graag zien!
Over dit object
Overdracht
| Status | beschikbaar |
|---|---|
| Prijs | € 385.000 k.k. |
Bouw
| Bouwjaar | 2020 |
|---|---|
| Bouwvorm | bestaande bouw |
| Type Object | Woonhuis |
| Hoofdfunctie | Woonruimte |
Indeling
| Woonoppervlakte | 118 m² |
|---|---|
| Perceeloppervlakte | 188 m² |
| Woning Inhoud | 418 m³ |
| Kamers | 5 (3 slaapkamers) |
Energie
| Energielabel | A+++ |
|---|


























































































