
Veenweg 47
De wilp
Fraai gelegen gezinshuis
Riant helft van dubbel woonhuis met een slaapkamer en badkamer op de begane grond | woonoppervlakte ca. 143 m² | perceeloppervlakte ca. 402 m²
Aan rustige, kindvriendelijke straat gelegen, goed onderhouden, helft van dubbel woonhuis met een slaapkamer (of werkkamer) en badkamer op de begane grond. De ligging van de woning is uitstekend, aan de rand van de wijk met aan de achterzijde vrij uitzicht over de ijsbaan/landerijen.
De woning is gelegen nabij de uitvalswegen en zowel de stad Groningen als Drachten zijn binnen 20 autominuten bereikbaar.
Indeling
Begane grond: entree/hal, toiletruimte, meterkast, ruime, sfeervolle woonkamer met half open woonkeuken met keuken voorzien van diverse inbouwapparatuur, bijkeuken met toegang tot de voormalige garage welke thans is ingericht als tweede bijkeuken, (slaap) kamer met eigen badkamer voorzien van douche, toilet en vaste wastafel;
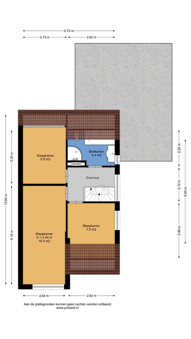
1e verdieping: overloop, 3 slaapkamers (ca. 16 m², 10 m² en 8 m²), keurige badkamer voorzien van ligbad, toilet, separate douche en wastafelmeubel, vaste trap naar...
2e verdieping: overloop, slaapkamer;
Bijgebouwen:
- vrijstaande berging/schuur.
Bijzonderheden:
- woonoppervlakte ca. 143 m²;
- bouwjaar woning 2003;
- perceeloppervlakte 402 m²;
- volledig geïsoleerd, energielabel A;
- achterzijde vrij uitzicht over de ijsbaan/landerijen
Aanvaarding: in overleg.
Interesse in deze woning? Neem geheel vrijblijvend contact op met Bruining en De Reus Makelaars om deze woning te bezichtigen!
Riant helft van dubbel woonhuis met een slaapkamer en badkamer op de begane grond | woonoppervlakte ca. 143 m² | perceeloppervlakte ca. 402 m²
Aan rustige, kindvriendelijke straat gelegen, goed onderhouden, helft van dubbel woonhuis met een slaapkamer (of werkkamer) en badkamer op de begane grond. De ligging van de woning is uitstekend, aan de rand van de wijk met aan de achterzijde vrij uitzicht over de ijsbaan/landerijen.
De woning is gelegen nabij de uitvalswegen en zowel de stad Groningen als Drachten zijn binnen 20 autominuten bereikbaar.
Indeling
Begane grond: entree/hal, toiletruimte, meterkast, ruime, sfeervolle woonkamer met half open woonkeuken met keuken voorzien van diverse inbouwapparatuur, bijkeuken met toegang tot de voormalige garage welke thans is ingericht als tweede bijkeuken, (slaap) kamer met eigen badkamer voorzien van douche, toilet en vaste wastafel;
1e verdieping: overloop, 3 slaapkamers (ca. 16 m², 10 m² en 8 m²), keurige badkamer voorzien van ligbad, toilet, separate douche en wastafelmeubel, vaste trap naar...
2e verdieping: overloop, slaapkamer;
Bijgebouwen:
- vrijstaande berging/schuur.
Bijzonderheden:
- woonoppervlakte ca. 143 m²;
- bouwjaar woning 2003;
- perceeloppervlakte 402 m²;
- volledig geïsoleerd, energielabel A;
- achterzijde vrij uitzicht over de ijsbaan/landerijen
Aanvaarding: in overleg.
Interesse in deze woning? Neem geheel vrijblijvend contact op met Bruining en De Reus Makelaars om deze woning te bezichtigen!
Over dit object
Overdracht
| Status | verkocht |
|---|---|
| Prijs | € 389.500 k.k. |
Bouw
| Bouwjaar | 2003 |
|---|---|
| Bouwvorm | bestaande bouw |
| Type Object | Woonhuis |
| Hoofdfunctie | Woonruimte |
Indeling
| Woonoppervlakte | 143 m² |
|---|---|
| Perceeloppervlakte | 402 m² |
| Woning Inhoud | 518 m³ |
| Kamers | 6 (5 slaapkamers) |
Energie
| Energielabel | A |
|---|


















































































































