
Enemastraat 24
Leek
Op een bijzonder rustige locatie gelegen, verrassend ruime en uitgebouwde 2-onder-1-kapwoning met garage op een royaal perceel van maar liefst 710 m²!
Met een woonoppervlakte van circa 160 m² en vijf slaapkamers is dit een ideale gezinswoning. In 2000 is de woning aan de achterzijde uitgebouwd, waardoor op de begane grond een royale leefruimte van in totaal 60 m² is ontstaan. De woonkamer en halfopen keuken vormen samen één ruim geheel met een prettige indeling. Dankzij de schuifpui en de lichtstraat valt er volop daglicht binnen en ontstaat er een open sfeer met een mooie, directe verbinding naar de tuin.
Zowel binnen als buiten ervaar je hier vrijheid. De uitzonderlijk diepe tuin biedt volop privacy en ruimte om te genieten van het buitenleven. Of het nu gaat om spelen, tuinieren of ontspannen: het royale perceel maakt veel mogelijk.
De woning is qua afwerking gedateerd, maar vormt daarmee juist een uitstekende basis voor wie het geheel naar eigen smaak wil moderniseren. Hier woon je in een zeer rustige en kindvriendelijke omgeving met veel groen, op een plek waar je stap voor stap jouw eigen thuis kunt creëren.
Indeling
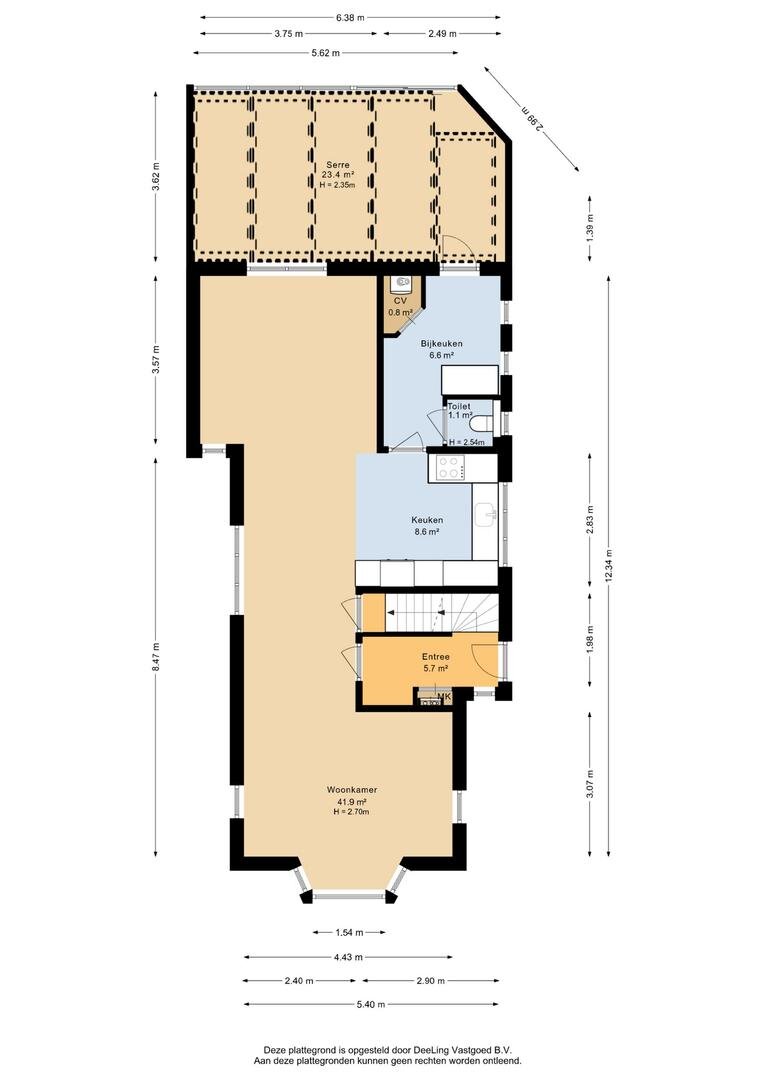
Begane grond: Entree/hal met toilet en trapopgang; royale Z-vormige living, die als gevolg van de uitbouw, zowel tuingericht als straatgericht kan worden ingedeeld en biedt dan ook volop ruimte voor een comfortabele zithoek en een grote eettafel. De half open keuken sluit hier logisch op aan en is op speelse wijze verbonden met zowel de woonkamer als de de tuin. De keuken staat in directe verbinding met de bijkeuken met witgoedaansluitingen. Vanuit de bijkeuken is zowel de tuin (achterom) bereikbaar als de garage met kanteldeur.
Eerste verdieping: Overloop met toegang tot vier slaapkamers. Aan de achterzijde bevinden zich twee slaapkamers van circa 9.3 en 11,7 m² en aan de voorzijde zijn twee slaapkamers gesitueerd van circa 6.6 en 11,3 m². De badkamer met daglicht is voorzien van een douche, wastafelmeubel en toilet.
Tweede verdieping: Ruime overloop met daglicht en toegang tot de vijfde kamer (ca 11,3 m²) ideaal als slaap-, werk- of hobbykamer. Tevens is er een bergruimte van ca. 3 m² met daglicht aanwezig.
Buitenruimte:
De woning staat op een uitzonderlijk ruim perceel van 710 m² met een tuin gelegen op het noorden. Door de grootte en diepte van de tuin zijn er altijd plekken in de zon en schaduw te vinden. De tuin is groen, beschikt over een waterpartij en biedt veel privacy – een absolute meerwaarde van deze woning.
Nadere info:
- Dakbedekking garage en bijkeuken vernieuwd in 2024 incl. garantie;
- Verwarming middels CV-ketel (Remeha, 2007);
- Warm water via geiser (Vaillant, 2011);
- 6 zonnepanelen, 2019;
- Vloerisolatie (Tonzon);
- Muurisolatie;
- Energielabel B;
Wonen in Leek
Leek is een levendig dorp met een compleet voorzieningenniveau. Winkels, scholen, sportverenigingen en horeca zijn allemaal binnen handbereik. Daarnaast woon je hier in een groene omgeving met volop mogelijkheden om te wandelen en fietsen.
De ligging is bovendien zeer gunstig ten opzichte van uitvalswegen. Via de A7 ben je snel onderweg richting Groningen en Drachten, wat Leek tot een aantrekkelijke woonplaats maakt voor forenzen.
Kortom: Zoek je een ruime woning met veel leefruimte, een uitzonderlijk grote tuin en een zeer rustige ligging? Dan is Enemastraat 24 in Leek absoluut een bezichtiging waard.
Wil je komen kijken? Neem gerust contact met ons op, we laten je deze woning graag persoonlijk ervaren.
Met een woonoppervlakte van circa 160 m² en vijf slaapkamers is dit een ideale gezinswoning. In 2000 is de woning aan de achterzijde uitgebouwd, waardoor op de begane grond een royale leefruimte van in totaal 60 m² is ontstaan. De woonkamer en halfopen keuken vormen samen één ruim geheel met een prettige indeling. Dankzij de schuifpui en de lichtstraat valt er volop daglicht binnen en ontstaat er een open sfeer met een mooie, directe verbinding naar de tuin.
Zowel binnen als buiten ervaar je hier vrijheid. De uitzonderlijk diepe tuin biedt volop privacy en ruimte om te genieten van het buitenleven. Of het nu gaat om spelen, tuinieren of ontspannen: het royale perceel maakt veel mogelijk.
De woning is qua afwerking gedateerd, maar vormt daarmee juist een uitstekende basis voor wie het geheel naar eigen smaak wil moderniseren. Hier woon je in een zeer rustige en kindvriendelijke omgeving met veel groen, op een plek waar je stap voor stap jouw eigen thuis kunt creëren.
Indeling
Begane grond: Entree/hal met toilet en trapopgang; royale Z-vormige living, die als gevolg van de uitbouw, zowel tuingericht als straatgericht kan worden ingedeeld en biedt dan ook volop ruimte voor een comfortabele zithoek en een grote eettafel. De half open keuken sluit hier logisch op aan en is op speelse wijze verbonden met zowel de woonkamer als de de tuin. De keuken staat in directe verbinding met de bijkeuken met witgoedaansluitingen. Vanuit de bijkeuken is zowel de tuin (achterom) bereikbaar als de garage met kanteldeur.
Eerste verdieping: Overloop met toegang tot vier slaapkamers. Aan de achterzijde bevinden zich twee slaapkamers van circa 9.3 en 11,7 m² en aan de voorzijde zijn twee slaapkamers gesitueerd van circa 6.6 en 11,3 m². De badkamer met daglicht is voorzien van een douche, wastafelmeubel en toilet.
Tweede verdieping: Ruime overloop met daglicht en toegang tot de vijfde kamer (ca 11,3 m²) ideaal als slaap-, werk- of hobbykamer. Tevens is er een bergruimte van ca. 3 m² met daglicht aanwezig.
Buitenruimte:
De woning staat op een uitzonderlijk ruim perceel van 710 m² met een tuin gelegen op het noorden. Door de grootte en diepte van de tuin zijn er altijd plekken in de zon en schaduw te vinden. De tuin is groen, beschikt over een waterpartij en biedt veel privacy – een absolute meerwaarde van deze woning.
Nadere info:
- Dakbedekking garage en bijkeuken vernieuwd in 2024 incl. garantie;
- Verwarming middels CV-ketel (Remeha, 2007);
- Warm water via geiser (Vaillant, 2011);
- 6 zonnepanelen, 2019;
- Vloerisolatie (Tonzon);
- Muurisolatie;
- Energielabel B;
Wonen in Leek
Leek is een levendig dorp met een compleet voorzieningenniveau. Winkels, scholen, sportverenigingen en horeca zijn allemaal binnen handbereik. Daarnaast woon je hier in een groene omgeving met volop mogelijkheden om te wandelen en fietsen.
De ligging is bovendien zeer gunstig ten opzichte van uitvalswegen. Via de A7 ben je snel onderweg richting Groningen en Drachten, wat Leek tot een aantrekkelijke woonplaats maakt voor forenzen.
Kortom: Zoek je een ruime woning met veel leefruimte, een uitzonderlijk grote tuin en een zeer rustige ligging? Dan is Enemastraat 24 in Leek absoluut een bezichtiging waard.
Wil je komen kijken? Neem gerust contact met ons op, we laten je deze woning graag persoonlijk ervaren.
Over dit object
Overdracht
| Status | beschikbaar |
|---|---|
| Prijs | € 400.000 k.k. |
Bouw
| Bouwjaar | 1973 |
|---|---|
| Bouwvorm | bestaande bouw |
| Type Object | Woonhuis |
| Hoofdfunctie | Woonruimte |
Indeling
| Woonoppervlakte | 160 m² |
|---|---|
| Perceeloppervlakte | 710 m² |
| Woning Inhoud | 602 m³ |
| Kamers | 8 (5 slaapkamers) |
Energie
| Energielabel | B |
|---|































































































