
Zagerij 1
Nietap
Nietap gaat uitbreiden met 7 woningen locatie Zagerij Thedemaborg!
De vier 2-onder-1 kapwoningen worden in de basis levensloopbestendig gebouwd maar er zijn ook andere indelingsmogelijkheden!
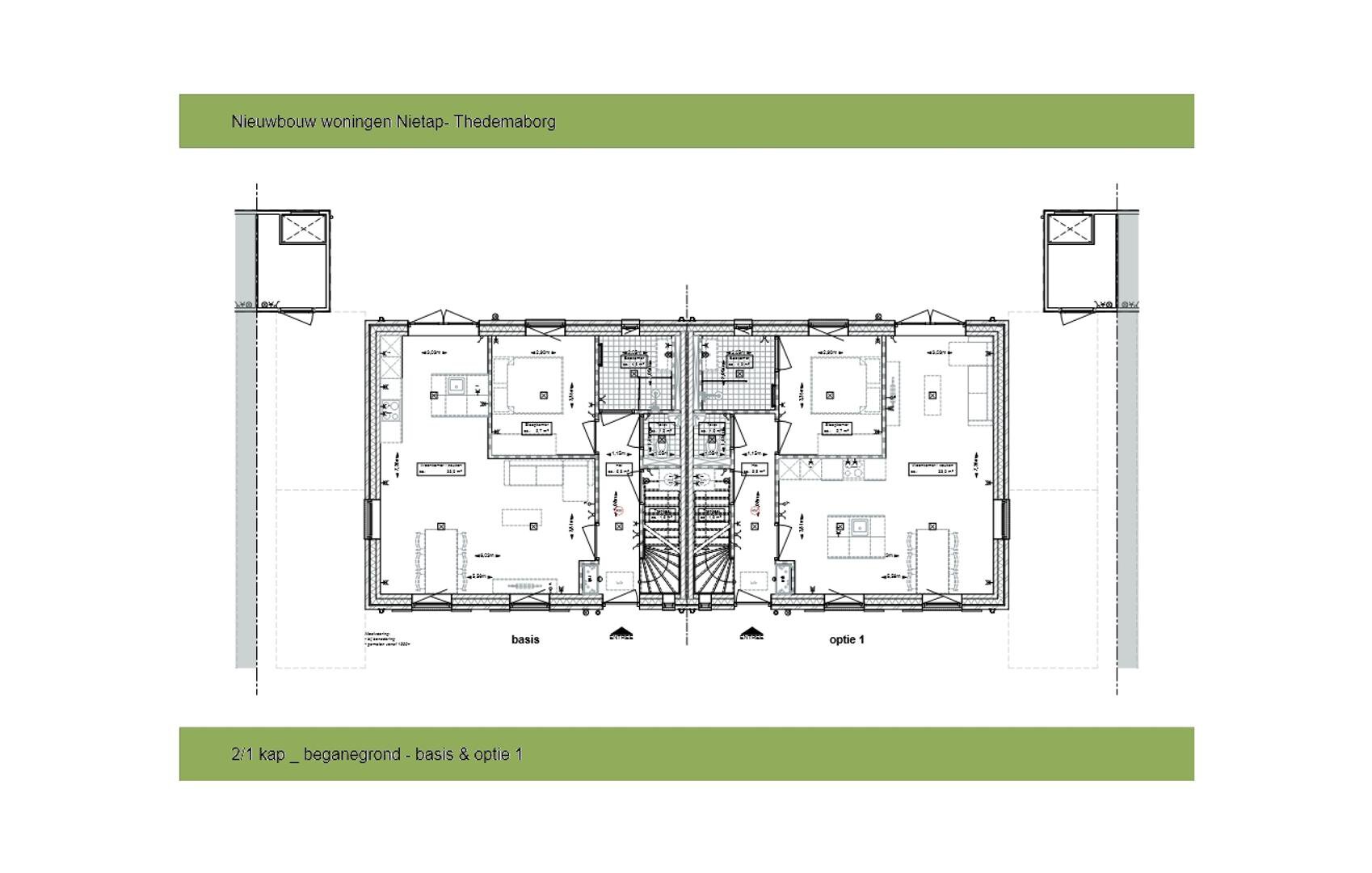
Comfort op de begane grond.
Kom binnen! Op de begane grond heb je een volledig woonprogramma met een heerlijke woonkamer met open keuken en een ruime slaapkamer met complete badkamer.
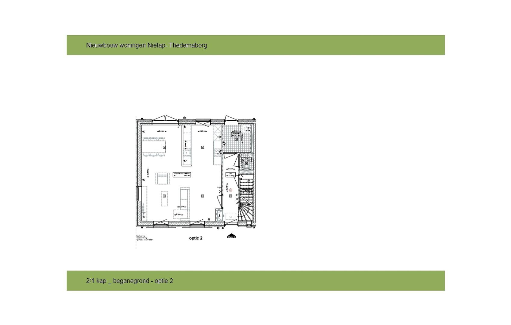
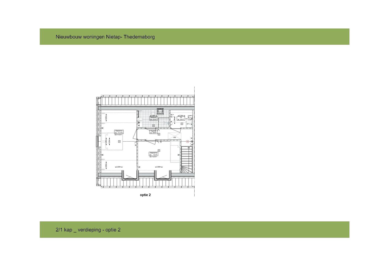
Op de verdieping tref je standaard twee slaapkamers, maar ook mogelijkheden op de verdieping
Ondanks dat je op de begane grond uiterst comfortabel woont, heb je in dit woningtype nog een 1e verdieping waarin met een optie variant indien gewenst nog 1 of 2 slaapkamers en een (tweede) badkamer gerealiseerd kan worden.
Op bijzonder fraaie locatie op steenworpafstand van het centrum van Leek gelegen.
Aan de voorzijde vrij uitzicht over het voormalige borgterrein van de Thedemaborg, op loop-/fietsafstand van winkels, het Nietapsterbos, landgoed Nienoord en het Leekstermeer.
Zowel de stad Groningen als Drachten zijn binnen 15 autominuten bereikbaar. Daarnaast bieden de naastgelegen plaatsen Leek en Roden vrijwel alle voorzieningen. Ook het openbaar vervoer is uitstekend geregeld met bushaltes in de nabijheid.
Ontwikkelaar Provestion uit Norg realiseert op deze locatie 4 (levensloopbestendige) 2-onder-1-kapwoningen, 2 hoekwoningen en 1 tussenwoning. De levensloopbestendige woningen worden opgeleverd met een slaapkamer en badkamer op de begane grond en twee slaapkamers op de verdieping (andere indeling is ook mogelijk). De woningen worden natuurlijk gasloos gebouwd en krijgen standaard een warmtepomp en zonnepanelen.
PERCEEL
Het perceel van bouwnummer vier is groot 291 m² en alle tuinen zijn gelegen op het zuiden of zuid/westen! In de tuin is een houten berging en zijn er mogelijkheden om op eigen terrein twee parkeervoorziening te realiseren.
Goed om te weten:
- Uitgangspunt voor de realisatie van deze woningen is een uitstekende combinatie tussen prijs, vormgeving, functionaliteit en kwaliteit.
- kleinschaligheid van het project op loopafstand van voorzieningen;
- frisse en eigentijdse uitstraling met ruime maatvoering;
• gebruiksoppervlakte 110 m²;
• comfortabele vloerverwarming op de begane grond en de 1e verdieping;
• extra energiezuinig door aanwezigheid van twaalf zonnepanelen;
• de bijgevoegde artist impressions zijn slechts bedoeld ter illustratie.
GOEDE FINANCIERINGSMOGELIJKHEDEN
Vanwege de goede prijs-/kwaliteitverhouding is de financiering van deze woning onder gunstige voorwaarden verkrijgbaar. Graag informeren wij u nader over de financieringsmogelijkheden.
VERKOOPPROCEDURE
Meer weten over dit project of de verkoopprocedure? Neem dan per mail contact op met Bruining en De Reus Makelaars te Leek zodat wij alle verkoopdocumenten kunnen mailen.
De vier 2-onder-1 kapwoningen worden in de basis levensloopbestendig gebouwd maar er zijn ook andere indelingsmogelijkheden!
Comfort op de begane grond.
Kom binnen! Op de begane grond heb je een volledig woonprogramma met een heerlijke woonkamer met open keuken en een ruime slaapkamer met complete badkamer.
Op de verdieping tref je standaard twee slaapkamers, maar ook mogelijkheden op de verdieping
Ondanks dat je op de begane grond uiterst comfortabel woont, heb je in dit woningtype nog een 1e verdieping waarin met een optie variant indien gewenst nog 1 of 2 slaapkamers en een (tweede) badkamer gerealiseerd kan worden.
Op bijzonder fraaie locatie op steenworpafstand van het centrum van Leek gelegen.
Aan de voorzijde vrij uitzicht over het voormalige borgterrein van de Thedemaborg, op loop-/fietsafstand van winkels, het Nietapsterbos, landgoed Nienoord en het Leekstermeer.
Zowel de stad Groningen als Drachten zijn binnen 15 autominuten bereikbaar. Daarnaast bieden de naastgelegen plaatsen Leek en Roden vrijwel alle voorzieningen. Ook het openbaar vervoer is uitstekend geregeld met bushaltes in de nabijheid.
Ontwikkelaar Provestion uit Norg realiseert op deze locatie 4 (levensloopbestendige) 2-onder-1-kapwoningen, 2 hoekwoningen en 1 tussenwoning. De levensloopbestendige woningen worden opgeleverd met een slaapkamer en badkamer op de begane grond en twee slaapkamers op de verdieping (andere indeling is ook mogelijk). De woningen worden natuurlijk gasloos gebouwd en krijgen standaard een warmtepomp en zonnepanelen.
PERCEEL
Het perceel van bouwnummer vier is groot 291 m² en alle tuinen zijn gelegen op het zuiden of zuid/westen! In de tuin is een houten berging en zijn er mogelijkheden om op eigen terrein twee parkeervoorziening te realiseren.
Goed om te weten:
- Uitgangspunt voor de realisatie van deze woningen is een uitstekende combinatie tussen prijs, vormgeving, functionaliteit en kwaliteit.
- kleinschaligheid van het project op loopafstand van voorzieningen;
- frisse en eigentijdse uitstraling met ruime maatvoering;
• gebruiksoppervlakte 110 m²;
• comfortabele vloerverwarming op de begane grond en de 1e verdieping;
• extra energiezuinig door aanwezigheid van twaalf zonnepanelen;
• de bijgevoegde artist impressions zijn slechts bedoeld ter illustratie.
GOEDE FINANCIERINGSMOGELIJKHEDEN
Vanwege de goede prijs-/kwaliteitverhouding is de financiering van deze woning onder gunstige voorwaarden verkrijgbaar. Graag informeren wij u nader over de financieringsmogelijkheden.
VERKOOPPROCEDURE
Meer weten over dit project of de verkoopprocedure? Neem dan per mail contact op met Bruining en De Reus Makelaars te Leek zodat wij alle verkoopdocumenten kunnen mailen.
Over dit object
Overdracht
| Status | verkocht |
|---|---|
| Prijs | € 510.000 v.o.n. |
Bouw
| Bouwvorm | nieuwbouw |
|---|---|
| Type Object | Woonhuis |
| Hoofdfunctie | Woonruimte |
Indeling
| Woonoppervlakte | 110 m² |
|---|---|
| Perceeloppervlakte | 291 m² |
| Woning Inhoud | 450 m³ |
| Kamers | 4 (3 slaapkamers) |














