
Anna van Ewsumstraat 11
Leek
Levensloopbestendig in centrum van Leek!
Fraai gelegen twee-onder-één-kapwoning met slaap- en badkamer op de begane grond in centrum van Leek.
Op een mooie en unieke locatie in Leek, nabij het gezellige centrum en op loopafstand van winkels, staat deze goed onderhouden twee-onder-één-kapwoning met aangebouwde garage (thans in gebruik als bijkeuken). De woning heeft een fraai vrij uitzicht over het groene Vredewoldplantsoen en beschikt over een besloten achtertuin met achterom. De woning is uitgebouwd met een slaap- en badkamer op de begane grond.
De woning is gebouwd in 1957 en staat op een perceel van 240 m². Een heerlijk huis op een fijne plek, ideaal voor wie rustig wil wonen met alle voorzieningen dichtbij!
Indeling
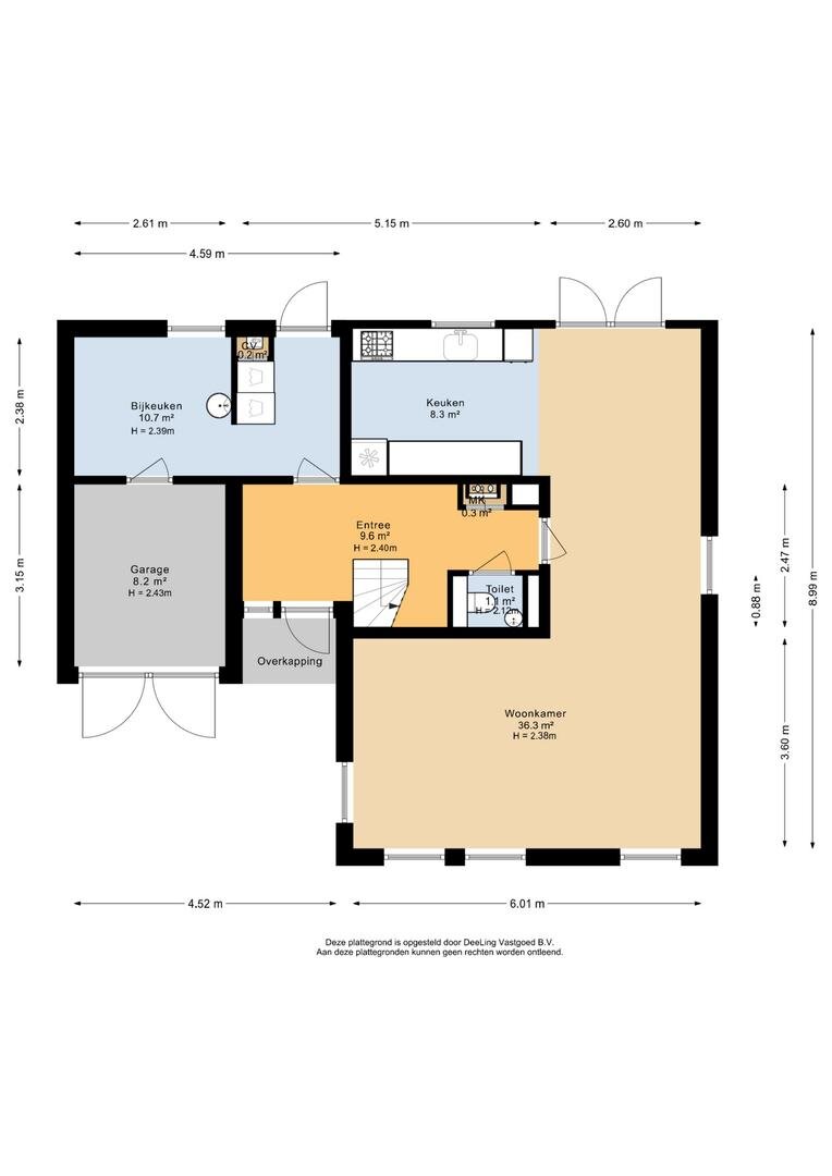
Wanneer u de woning binnenstapt, komt u in de hal met toegang tot het toilet en de kelder. Vanuit de hal loopt u de lichte woonkamer in, waar de grote ramen zorgen voor een prettige hoeveelheid daglicht en een mooi uitzicht over het plantsoen aan de voorzijde. Aansluitend bevindt zich de eenvoudige keuken, welke is voorzien van inbouwapparatuur. Vanuit hier is er doorgang naar de praktische bijkeuken (voorheen garage). Vanuit de woonkamer is tevens de slaapkamer bereikbaar welke toegang geeft tot een badkamer met een douche en vaste wastafel;
Op de verdieping leidt de overloop naar drie slaapkamers, elk voorzien van vaste kasten en variërend in grootte van ca. 7 tot 13 m². De badkamer is compact en ingericht met een douche en een wastafel.
Pluspunten op een rij
- Fraai vrij uitzicht over het plantsoen;
- Grotendeels bestrate, besloten achtertuin met achterom;
- Praktische bijkeuken (indien gewenst weer te verbouwen tot garage);
- Verwarming middels cv-installatie;
- De woning is voorzien van 8 zonnepanelen;
- Deels voorzien van isolerende beglazing;
- Perceeloppervlakte 240 m²
- aan de rand van het centrum en landgoed "Nienoord" en het openbaar vervoer zijn tevens op loopafstand
Wonen in Leek
Leek is een aantrekkelijke woonplaats met een uitgebreid winkelcentrum, diverse scholen, sportvoorzieningen en gezellige horeca. Daarnaast ligt het prachtige landgoed Nienoord om de hoek, waar u kunt wandelen, fietsen of genieten van cultuur en historie. Dankzij de gunstige ligging aan de A7 bent u binnen korte tijd in zowel Groningen als Drachten.
Kortom: een fijne gezinswoning op een geliefde plek in Leek, met alles wat u nodig heeft binnen handbereik.
Wilt u deze woning zelf ervaren? Neem gerust contact op met Bruining en De Reus Makelaars voor een bezichtiging – wij laten u dit huis met plezier zien!
Fraai gelegen twee-onder-één-kapwoning met slaap- en badkamer op de begane grond in centrum van Leek.
Op een mooie en unieke locatie in Leek, nabij het gezellige centrum en op loopafstand van winkels, staat deze goed onderhouden twee-onder-één-kapwoning met aangebouwde garage (thans in gebruik als bijkeuken). De woning heeft een fraai vrij uitzicht over het groene Vredewoldplantsoen en beschikt over een besloten achtertuin met achterom. De woning is uitgebouwd met een slaap- en badkamer op de begane grond.
De woning is gebouwd in 1957 en staat op een perceel van 240 m². Een heerlijk huis op een fijne plek, ideaal voor wie rustig wil wonen met alle voorzieningen dichtbij!
Indeling
Wanneer u de woning binnenstapt, komt u in de hal met toegang tot het toilet en de kelder. Vanuit de hal loopt u de lichte woonkamer in, waar de grote ramen zorgen voor een prettige hoeveelheid daglicht en een mooi uitzicht over het plantsoen aan de voorzijde. Aansluitend bevindt zich de eenvoudige keuken, welke is voorzien van inbouwapparatuur. Vanuit hier is er doorgang naar de praktische bijkeuken (voorheen garage). Vanuit de woonkamer is tevens de slaapkamer bereikbaar welke toegang geeft tot een badkamer met een douche en vaste wastafel;
Op de verdieping leidt de overloop naar drie slaapkamers, elk voorzien van vaste kasten en variërend in grootte van ca. 7 tot 13 m². De badkamer is compact en ingericht met een douche en een wastafel.
Pluspunten op een rij
- Fraai vrij uitzicht over het plantsoen;
- Grotendeels bestrate, besloten achtertuin met achterom;
- Praktische bijkeuken (indien gewenst weer te verbouwen tot garage);
- Verwarming middels cv-installatie;
- De woning is voorzien van 8 zonnepanelen;
- Deels voorzien van isolerende beglazing;
- Perceeloppervlakte 240 m²
- aan de rand van het centrum en landgoed "Nienoord" en het openbaar vervoer zijn tevens op loopafstand
Wonen in Leek
Leek is een aantrekkelijke woonplaats met een uitgebreid winkelcentrum, diverse scholen, sportvoorzieningen en gezellige horeca. Daarnaast ligt het prachtige landgoed Nienoord om de hoek, waar u kunt wandelen, fietsen of genieten van cultuur en historie. Dankzij de gunstige ligging aan de A7 bent u binnen korte tijd in zowel Groningen als Drachten.
Kortom: een fijne gezinswoning op een geliefde plek in Leek, met alles wat u nodig heeft binnen handbereik.
Wilt u deze woning zelf ervaren? Neem gerust contact op met Bruining en De Reus Makelaars voor een bezichtiging – wij laten u dit huis met plezier zien!
Over dit object
Overdracht
| Status | beschikbaar | 
|---|---|
| Prijs | € 335.000 k.k. | 
Bouw
| Bouwjaar | 1957 | 
|---|---|
| Bouwvorm | bestaande bouw | 
| Type Object | Woonhuis | 
| Hoofdfunctie | Woonruimte | 
Indeling
| Woonoppervlakte | 118 m² | 
|---|---|
| Perceeloppervlakte | 240 m² | 
| Woning Inhoud | 461 m³ | 
| Kamers | 5 (4 slaapkamers) | 
Energie
| Energielabel | C | 
|---|




























































































