
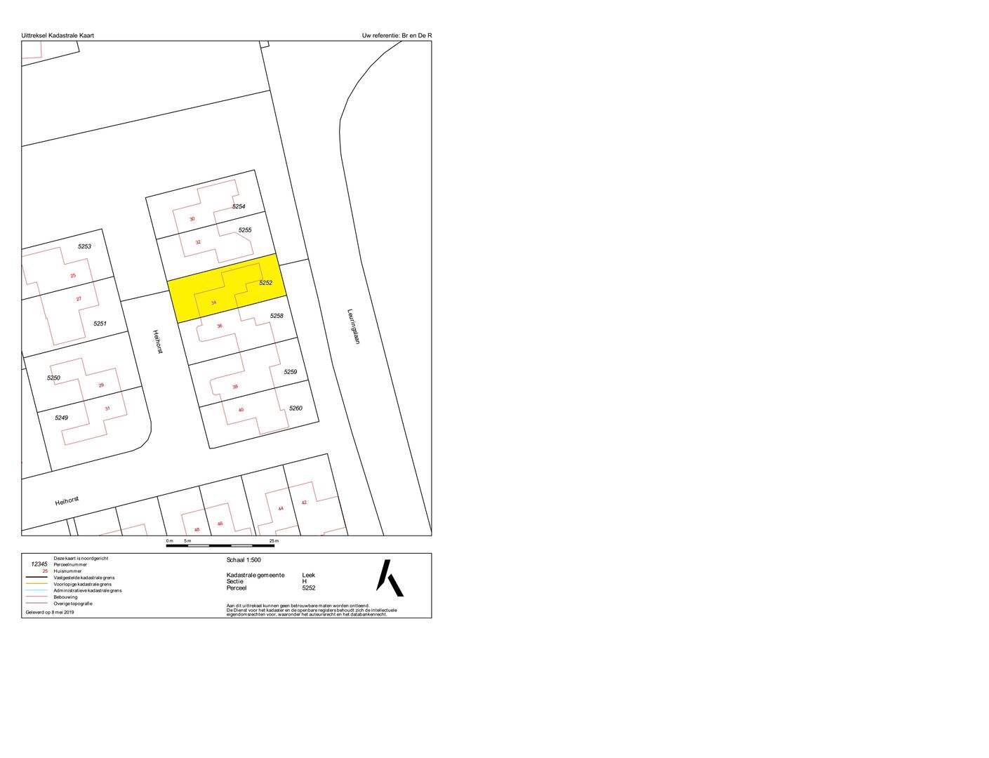
Heihorst 34
Tolbert
Fraai gelegen twee-onder-een-kapwoning (bj. 1992) met aangebouwde garage, aangebouwde berging en besloten tuin;
woonoppervlakte ca. 105 m² | perceeloppervlakte 261 m²
Deze comfortabele eengezinswoning is goed onderhouden, verduurzaamd (energielabel A), en heeft eigen "laadbox” in de garage en een extra buitenaansluiting bij de oprit.
De Heihorst is een rustige straat in een kindvriendelijke woonwijk met veel groen en op steenworp afstand van de woning is ook een speelveld aanwezig.
De ligging van de woning is uitstekend, op fietsafstand van het centrum van Tolbert, Leek, landgoed "Nienoord”, het Leekstermeer en Roden.
Het fietspad is gesitueerd achter de woning, waardoor u bovendien vanuit de tuin geen zicht hebt op andere huizen maar op het loof van de gemeente.
Vanuit de woning loopt u zo naar het wandelgebied Tolbertervaart.
Tolbert en Leek hebben veel voorzieningen op het gebied van scholen, sport, winkels, gezondheidscentra etc.
Zowel de stad Groningen als Drachten zijn binnen 15 autominuten bereikbaar en een bushalte ligt op loopafstand.
Indeling
Begane grond: Overdekte entree; hal met toiletruimte en meterkast; L-vormige woonkamer met heerlijke lichtinval en open keuken (totaal groot ca. 35 m²). De keurige keukenopstelling is voorzien van diverse inbouwapparatuur (grotendeels vernieuwd) zoals o.a. een inductiekookplaat (2024), combimagnetron (2023) en Quooker (2019). Aangrenzend de bijkeuken met witgoedaansluitingen en toegang tot de tuin.
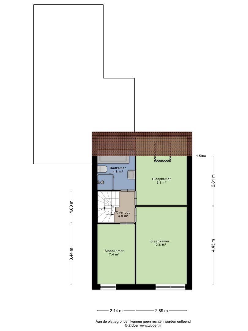
Eerste verdieping: Overloop; 3 slaapkamers (ca. 7 m², 11 m² en 13 m²); keurige badkamer voorzien van ligbad/whirlpool, douchecabine, toilet en wastafelmeubel.
Tweede verdieping: Vaste trap naar ruime zolderkamer met daglicht, bergruimte achter de knieschotten en opstelplaats cv-ketel.
De aangebouwde garage is in spouw gebouwd, voorzien van daglicht en een afgewerkte betonvloer waardoor het een fijne ruimte is, ook voor de hobbyist. De kanteldeur is elektrisch bedienbaar en er is een ‘wall-box’ aanwezig. Handig voor de elektrische rijder!
Ook is er een stenen tuinberging aanwezig die eveneens in spouw is gebouwd en over daglicht en elektra beschikt. Deze berging doet dienst als stallingsruimte voor de fietsen en is in de winter ook ideaal als opslagplaats voor de tuinmeubelen.
De dakbedekking van de garage en de berging zijn in 2020 volledig vervangen, dus kunnen nog jaren mee!
De achtertuin, bereikbaar via een (afsluitbare) achterom, is thans volledig bestraat en grenst aan een groenstrook van de gemeente met daarin diverse bomen en struiken wat zorgt voor een ‘groen’ uitzicht.
Goed om te weten:
- Volledig geïsoleerd, energielabel A;
- 15 zonnepanelen, geplaatst in 2019;
- Verwarming en warm water via CV-combiketel, Remeha bj. 2022;
- Ramen begane grond vervangen door HR++ glas, 2023;
- Buitenschilderwerk professioneel uitgevoerd, 2023;
- Woonkamer voorzien van elektrisch bedienbare zonwering;
- Meterkast vernieuwd en verzwaard t.b.v. laadpaal, 2024;
- Aanvaarding: in overleg (maar kan relatief snel).
Tip: Bekijk ook de video van deze woning!
Maak snel een afspraak voor een bezichtiging en ontdek zelf wat deze fraaie woning je te bieden heeft.
woonoppervlakte ca. 105 m² | perceeloppervlakte 261 m²
Deze comfortabele eengezinswoning is goed onderhouden, verduurzaamd (energielabel A), en heeft eigen "laadbox” in de garage en een extra buitenaansluiting bij de oprit.
De Heihorst is een rustige straat in een kindvriendelijke woonwijk met veel groen en op steenworp afstand van de woning is ook een speelveld aanwezig.
De ligging van de woning is uitstekend, op fietsafstand van het centrum van Tolbert, Leek, landgoed "Nienoord”, het Leekstermeer en Roden.
Het fietspad is gesitueerd achter de woning, waardoor u bovendien vanuit de tuin geen zicht hebt op andere huizen maar op het loof van de gemeente.
Vanuit de woning loopt u zo naar het wandelgebied Tolbertervaart.
Tolbert en Leek hebben veel voorzieningen op het gebied van scholen, sport, winkels, gezondheidscentra etc.
Zowel de stad Groningen als Drachten zijn binnen 15 autominuten bereikbaar en een bushalte ligt op loopafstand.
Indeling
Begane grond: Overdekte entree; hal met toiletruimte en meterkast; L-vormige woonkamer met heerlijke lichtinval en open keuken (totaal groot ca. 35 m²). De keurige keukenopstelling is voorzien van diverse inbouwapparatuur (grotendeels vernieuwd) zoals o.a. een inductiekookplaat (2024), combimagnetron (2023) en Quooker (2019). Aangrenzend de bijkeuken met witgoedaansluitingen en toegang tot de tuin.
Eerste verdieping: Overloop; 3 slaapkamers (ca. 7 m², 11 m² en 13 m²); keurige badkamer voorzien van ligbad/whirlpool, douchecabine, toilet en wastafelmeubel.
Tweede verdieping: Vaste trap naar ruime zolderkamer met daglicht, bergruimte achter de knieschotten en opstelplaats cv-ketel.
De aangebouwde garage is in spouw gebouwd, voorzien van daglicht en een afgewerkte betonvloer waardoor het een fijne ruimte is, ook voor de hobbyist. De kanteldeur is elektrisch bedienbaar en er is een ‘wall-box’ aanwezig. Handig voor de elektrische rijder!
Ook is er een stenen tuinberging aanwezig die eveneens in spouw is gebouwd en over daglicht en elektra beschikt. Deze berging doet dienst als stallingsruimte voor de fietsen en is in de winter ook ideaal als opslagplaats voor de tuinmeubelen.
De dakbedekking van de garage en de berging zijn in 2020 volledig vervangen, dus kunnen nog jaren mee!
De achtertuin, bereikbaar via een (afsluitbare) achterom, is thans volledig bestraat en grenst aan een groenstrook van de gemeente met daarin diverse bomen en struiken wat zorgt voor een ‘groen’ uitzicht.
Goed om te weten:
- Volledig geïsoleerd, energielabel A;
- 15 zonnepanelen, geplaatst in 2019;
- Verwarming en warm water via CV-combiketel, Remeha bj. 2022;
- Ramen begane grond vervangen door HR++ glas, 2023;
- Buitenschilderwerk professioneel uitgevoerd, 2023;
- Woonkamer voorzien van elektrisch bedienbare zonwering;
- Meterkast vernieuwd en verzwaard t.b.v. laadpaal, 2024;
- Aanvaarding: in overleg (maar kan relatief snel).
Tip: Bekijk ook de video van deze woning!
Maak snel een afspraak voor een bezichtiging en ontdek zelf wat deze fraaie woning je te bieden heeft.
Over dit object
Overdracht
| Status | verkocht |
|---|---|
| Prijs | € 385.000 k.k. |
Bouw
| Bouwjaar | 1992 |
|---|---|
| Bouwvorm | bestaande bouw |
| Type Object | Woonhuis |
| Hoofdfunctie | Woonruimte |
Indeling
| Woonoppervlakte | 105 m² |
|---|---|
| Perceeloppervlakte | 261 m² |
| Woning Inhoud | 400 m³ |
| Kamers | 5 (4 slaapkamers) |
Energie
| Energielabel | A |
|---|



















































































