
Jozef Israelsstraat 6
Nietap
Comfortabele gezinswoning met werk-/hobbykamer op de begane grond in groene woonomgeving!
Aan de Jozef Israëlsstraat 6 in Nietap staat deze verzorgde en comfortabele tussenwoning. Een ideale woonplek voor gezinnen en thuiswerkers, met een lichte woonkamer, moderne keuken, 3 slaapkamers, een extra werk-/hobbykamer en een praktische bijkeuken op de begane grond. De rustige ligging dichtbij voorzieningen in Nietap en Leek, én op ca. 20 minuten rijden van Groningen, maakt het wonen hier extra prettig.
Indeling
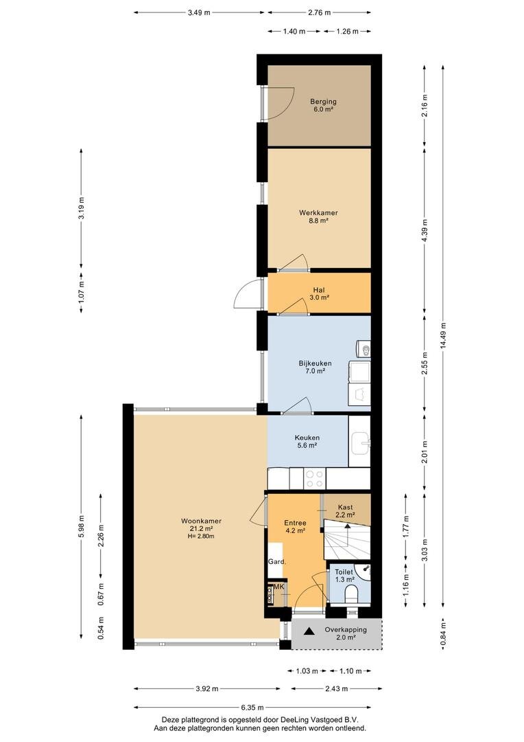
Begane grond
Entree/hal met trapkast, meterkast en toilet; heerlijk lichte woonkamer van ca. 27 m² (type doorzon) met een verrassend ruim en vrij uitzicht en een open keuken met nette hoekopstelling voorzien van inbouwapparatuur; handige bijkeuken (ca. 7 m²) met witgoedaansluitingen; tussenhal met toegang naar buiten en doorgang naar de werk-/hobbykamer (ca. 8,8 m²) ideaal voor thuiswerken, een praktijk aan huis, hobby’s of een speelkamer.
Eerste verdieping
Overloop met vaste kast; 3 slaapkamers (ca. 5, 9½ en 10½ m²); compacte badkamer met daglicht en uitgevoerd met douche en wastafelmeubel.
Zolder
Via vlizotrap bereikbare praktische bergzolder.
Buitenruimte
Onderhoudsvriendelijke achtertuin met een lente van ca. 10 meter, gelegen op het oosten. Via de achterom is de woning gemakkelijk bereikbaar met fiets of tuinmateriaal. Vanuit de tuin is bovendien toegang tot de berging (ca. 6 m²), voorzien van wateraansluiting en elektra – ideaal voor opslag, kluswerk of het stallen van fietsen.
Pluspunten
• Woonoppervlakte ca. 100 m²;
• Perceel ca. 148 m²;
• Extra werk-/hobbykamer op begane grond;
• De huidige buitenberging is vroeger een badkamer geweest en de huidige werk-/hobbykamer was een slaapkamer met een binnendoor naar de toenmalige badkamer;
• Bijkeuken met witgoedaansluitingen;
• Lichte woonkamer met veel privacy;
• Rustige, groene woonomgeving;
• Op ca. 20 minuten rijden van Groningen.
Locatie
Nietap is een vriendelijk dorp met uitstekende voorzieningen in het nabijgelegen Leek. Natuur, winkels, scholen, sportvoorzieningen en uitvalswegen zijn snel en gemakkelijk bereikbaar.
Bel Bruining en De Reus Makelaars voor een bezichtiging en ervaar zelf de prettige sfeer van deze woning en de rustige ligging in Nietap!
Aan de Jozef Israëlsstraat 6 in Nietap staat deze verzorgde en comfortabele tussenwoning. Een ideale woonplek voor gezinnen en thuiswerkers, met een lichte woonkamer, moderne keuken, 3 slaapkamers, een extra werk-/hobbykamer en een praktische bijkeuken op de begane grond. De rustige ligging dichtbij voorzieningen in Nietap en Leek, én op ca. 20 minuten rijden van Groningen, maakt het wonen hier extra prettig.
Indeling
Begane grond
Entree/hal met trapkast, meterkast en toilet; heerlijk lichte woonkamer van ca. 27 m² (type doorzon) met een verrassend ruim en vrij uitzicht en een open keuken met nette hoekopstelling voorzien van inbouwapparatuur; handige bijkeuken (ca. 7 m²) met witgoedaansluitingen; tussenhal met toegang naar buiten en doorgang naar de werk-/hobbykamer (ca. 8,8 m²) ideaal voor thuiswerken, een praktijk aan huis, hobby’s of een speelkamer.
Eerste verdieping
Overloop met vaste kast; 3 slaapkamers (ca. 5, 9½ en 10½ m²); compacte badkamer met daglicht en uitgevoerd met douche en wastafelmeubel.
Zolder
Via vlizotrap bereikbare praktische bergzolder.
Buitenruimte
Onderhoudsvriendelijke achtertuin met een lente van ca. 10 meter, gelegen op het oosten. Via de achterom is de woning gemakkelijk bereikbaar met fiets of tuinmateriaal. Vanuit de tuin is bovendien toegang tot de berging (ca. 6 m²), voorzien van wateraansluiting en elektra – ideaal voor opslag, kluswerk of het stallen van fietsen.
Pluspunten
• Woonoppervlakte ca. 100 m²;
• Perceel ca. 148 m²;
• Extra werk-/hobbykamer op begane grond;
• De huidige buitenberging is vroeger een badkamer geweest en de huidige werk-/hobbykamer was een slaapkamer met een binnendoor naar de toenmalige badkamer;
• Bijkeuken met witgoedaansluitingen;
• Lichte woonkamer met veel privacy;
• Rustige, groene woonomgeving;
• Op ca. 20 minuten rijden van Groningen.
Locatie
Nietap is een vriendelijk dorp met uitstekende voorzieningen in het nabijgelegen Leek. Natuur, winkels, scholen, sportvoorzieningen en uitvalswegen zijn snel en gemakkelijk bereikbaar.
Bel Bruining en De Reus Makelaars voor een bezichtiging en ervaar zelf de prettige sfeer van deze woning en de rustige ligging in Nietap!
Over dit object
Overdracht
| Status | verkocht onder voorbehoud |
|---|---|
| Prijs | € 285.000 k.k. |
Bouw
| Bouwjaar | 1962 |
|---|---|
| Bouwvorm | bestaande bouw |
| Type Object | Woonhuis |
| Hoofdfunctie | Woonruimte |
Indeling
| Woonoppervlakte | 100 m² |
|---|---|
| Perceeloppervlakte | 148 m² |
| Woning Inhoud | 412 m³ |
| Kamers | 5 (4 slaapkamers) |
Energie
| Energielabel | C |
|---|
















































































