
Kokswijk 45
Zevenhuizen
Een unieke plek
Op een rustige, landelijke, aan de rand van Zevenhuizen gelegen, sfeervol uitgebouwd woonhuis met onder andere een slaap- en badkamer op de begane grond en een vrijstaande dubbele garage. Het geheel staat op een prachtig, bosrijk perceel van ca. 1.974 m² en biedt zowel aan de voor- als achterzijde vrij uitzicht over de landerijen.
Idyllisch gelegen in het prachtige coulisselandschap van het Westerkwartier, maar toch dichtbij de stad Groningen en het centrum van Leek en Zevenhuizen.
Begane grond: ruime hal/entree met toiletruimte, werkkamer, ruime slaapkamer, badkamer met douche, ligbad en wastafel. Een riante uitgebouwde woonkamer, keuken voorzien van diverse inbouwapparatuur, bijkeuken;
1e verdieping: Een overloop met diverse vaste kastruimte. Daarnaast 2 slaapkamers en een berging (mogelijkheden tot tweede badkamer);
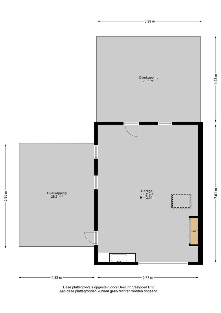
Bijgebouwen:
- Vrijstaande ruime garage met betonnen vloer. Deze biedt parkeergelegenheid voor 2 auto's. Achter de garage nog een ruime carport/overkapping.
Goed om te weten:
- Energielabel B, voorzien van 12 zonnepanelen en deels voorzien van dak-, muur- en vloerisolatie;
- levensloopbestendig;
- verwarming deels middels vloerverwarming, deels middels centrale verwarming;
- het geheel is goed onderhouden en wordt zorgvuldig bewoond;
- vorig jaar zijn beneden de kozijnen geverfd en het glas is beneden vervangen;
- nieuwe zink goten;
- woonoppervlak ca. 152 m²;
- riant perceeloppervlak 1.974 m²;
- landelijk gelegen woning met voorzieningen in nabijgelegen Leek en Roden en nabij uitvalswegen naar Drachten en Groningen.
Laat u verrassen door dit uniek gelegen woonhuis!
Aanvaarding: in overleg.
Interesse in deze woning? Neem dan contact op met Bruining en De Reus Makelaars om deze woning te bezichtigen!
Op een rustige, landelijke, aan de rand van Zevenhuizen gelegen, sfeervol uitgebouwd woonhuis met onder andere een slaap- en badkamer op de begane grond en een vrijstaande dubbele garage. Het geheel staat op een prachtig, bosrijk perceel van ca. 1.974 m² en biedt zowel aan de voor- als achterzijde vrij uitzicht over de landerijen.
Idyllisch gelegen in het prachtige coulisselandschap van het Westerkwartier, maar toch dichtbij de stad Groningen en het centrum van Leek en Zevenhuizen.
Begane grond: ruime hal/entree met toiletruimte, werkkamer, ruime slaapkamer, badkamer met douche, ligbad en wastafel. Een riante uitgebouwde woonkamer, keuken voorzien van diverse inbouwapparatuur, bijkeuken;
1e verdieping: Een overloop met diverse vaste kastruimte. Daarnaast 2 slaapkamers en een berging (mogelijkheden tot tweede badkamer);
Bijgebouwen:
- Vrijstaande ruime garage met betonnen vloer. Deze biedt parkeergelegenheid voor 2 auto's. Achter de garage nog een ruime carport/overkapping.
Goed om te weten:
- Energielabel B, voorzien van 12 zonnepanelen en deels voorzien van dak-, muur- en vloerisolatie;
- levensloopbestendig;
- verwarming deels middels vloerverwarming, deels middels centrale verwarming;
- het geheel is goed onderhouden en wordt zorgvuldig bewoond;
- vorig jaar zijn beneden de kozijnen geverfd en het glas is beneden vervangen;
- nieuwe zink goten;
- woonoppervlak ca. 152 m²;
- riant perceeloppervlak 1.974 m²;
- landelijk gelegen woning met voorzieningen in nabijgelegen Leek en Roden en nabij uitvalswegen naar Drachten en Groningen.
Laat u verrassen door dit uniek gelegen woonhuis!
Aanvaarding: in overleg.
Interesse in deze woning? Neem dan contact op met Bruining en De Reus Makelaars om deze woning te bezichtigen!
Over dit object
Overdracht
| Status | verkocht |
|---|---|
| Prijs | € 675.000 k.k. |
Bouw
| Bouwjaar | 1986 |
|---|---|
| Bouwvorm | bestaande bouw |
| Type Object | Woonhuis |
| Hoofdfunctie | Woonruimte |
Indeling
| Woonoppervlakte | 152 m² |
|---|---|
| Perceeloppervlakte | 1974 m² |
| Woning Inhoud | 557 m³ |
| Kamers | 5 (4 slaapkamers) |
Energie
| Energielabel | B |
|---|








































































































