
Wethouder Iwe Hutstraat 140
Leek
Op een prachtige locatie met volop privacy staat deze uitgebouwde twee-onder-één-kapwoning met veranda, garage en oprit geschikt voor meerdere auto's op een ruim perceel en zonnig perceel van maar liefst ca. 429 m².
De netjes onderhouden woning uit 1973 is door de jaren heen uitgebouwd en grondig verduurzaamd. Met o.a. grotendeels spouwisolatie, rondom HR++ beglazing, vloer- en bodemisolatie en de woning beschikt over maar liefst 16 zonnepanelen
De ruime tuin is gelegen op het zuidwesten en voorzien van een houten tuinberging en biedt volop privacy! De woning zelf biedt vier royale slaapkamers, een woonkamer met open keuken van bijna 50 m², een ruime zonnige tuin met garage en vrijstaand houten berging met veranda én een eigen oprit geschikt voor meerdere auto's
Begane grond:
Entree/hal met modern toilet en trapopgang, lichte doorzonwoonkamer van circa 33 m² met schoorsteenkanaal en directe verbinding met de moderne open keuken van circa 15 m² met spoeleiland, vaatwasser, grote koelkast en vriezer, inductiekookplaat, oven, magnetron en royale kastruimte, bijkeuken met wasmachine-aansluiting en directe tuindeur.
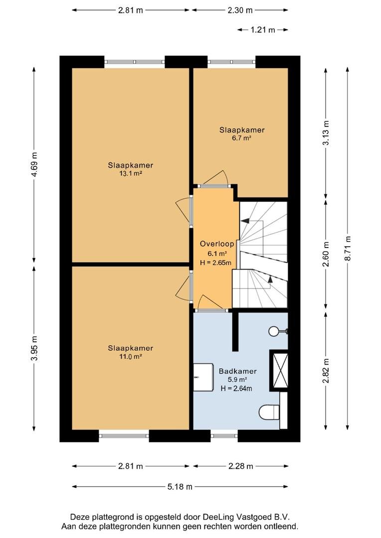
1e verdieping: overloop, drie slaapkamers circa 12 m² / 12 m² / 9, m², ruime badkamer met wastafelmeubel met dubbele kommen, inloopdouche, ligbad en modern toilet.
2e verdieping: overloop met opstelplaats HR-cv-ketel (2020, eigendom) en royale vierde slaapkamer van circa 16 m² voorzien van grote dakkapel.
Bijzonderheden
- 16 eigen zonnepanelen, lage energielasten;
- Zijgevel, dak en bodemisolatie, grotendeels hr++ beglazing, optimaal geïsoleerd Energielabel A;
- Eigen oprit voor meerdere auto’s en een aangebouwde stenen garage
- Riante zonnige achtertuin;
- Scholen, winkels, sportfaciliteiten en bushalte op korte afstand
- Op korte afstand van openbaarvervoer en de stad Groningen.
Deze woning biedt volop ruimte voor een (groot) gezin en is gelegen op een fijne locatie met alle voorzieningen binnen handbereik. Maak snel een afspraak met Bruining en De Reus Makelaars voor een bezichtiging en ontdek zelf het comfort van deze riante gezinswoning.
De netjes onderhouden woning uit 1973 is door de jaren heen uitgebouwd en grondig verduurzaamd. Met o.a. grotendeels spouwisolatie, rondom HR++ beglazing, vloer- en bodemisolatie en de woning beschikt over maar liefst 16 zonnepanelen
De ruime tuin is gelegen op het zuidwesten en voorzien van een houten tuinberging en biedt volop privacy! De woning zelf biedt vier royale slaapkamers, een woonkamer met open keuken van bijna 50 m², een ruime zonnige tuin met garage en vrijstaand houten berging met veranda én een eigen oprit geschikt voor meerdere auto's
Begane grond:
Entree/hal met modern toilet en trapopgang, lichte doorzonwoonkamer van circa 33 m² met schoorsteenkanaal en directe verbinding met de moderne open keuken van circa 15 m² met spoeleiland, vaatwasser, grote koelkast en vriezer, inductiekookplaat, oven, magnetron en royale kastruimte, bijkeuken met wasmachine-aansluiting en directe tuindeur.
1e verdieping: overloop, drie slaapkamers circa 12 m² / 12 m² / 9, m², ruime badkamer met wastafelmeubel met dubbele kommen, inloopdouche, ligbad en modern toilet.
2e verdieping: overloop met opstelplaats HR-cv-ketel (2020, eigendom) en royale vierde slaapkamer van circa 16 m² voorzien van grote dakkapel.
Bijzonderheden
- 16 eigen zonnepanelen, lage energielasten;
- Zijgevel, dak en bodemisolatie, grotendeels hr++ beglazing, optimaal geïsoleerd Energielabel A;
- Eigen oprit voor meerdere auto’s en een aangebouwde stenen garage
- Riante zonnige achtertuin;
- Scholen, winkels, sportfaciliteiten en bushalte op korte afstand
- Op korte afstand van openbaarvervoer en de stad Groningen.
Deze woning biedt volop ruimte voor een (groot) gezin en is gelegen op een fijne locatie met alle voorzieningen binnen handbereik. Maak snel een afspraak met Bruining en De Reus Makelaars voor een bezichtiging en ontdek zelf het comfort van deze riante gezinswoning.
Over dit object
Overdracht
| Status | beschikbaar |
|---|---|
| Prijs | € 410.000 k.k. |
Bouw
| Bouwjaar | 1973 |
|---|---|
| Bouwvorm | bestaande bouw |
| Type Object | Woonhuis |
| Hoofdfunctie | Woonruimte |
Indeling
| Woonoppervlakte | 152 m² |
|---|---|
| Perceeloppervlakte | 429 m² |
| Woning Inhoud | 603 m³ |
| Kamers | 5 (4 slaapkamers) |
Energie
| Energielabel | A |
|---|












































































