
Oldebertweg 55
Leek
Eenvoudig vrijstaand woonhuis | ruim perceel ca. 679 m² | ca. 104 m² woonoppervlakte | diverse schuren
Vrijstaand woonhuis op een fraaie locatie nabij centrum gelegen. De woning beschikt over 3 slaapkamers en meerdere ruime garages/schuren. Een woning met volop mogelijkheden!
De ligging van de woning is uitstekend, op loop-/fietsafstand van het centrum van Leek en nabij landgoed "Nienoord" en het Leekstermeer. Zowel de stad Groningen als Drachten zijn binnen 20 autominuten bereikbaar. Daarnaast is de openbaarvervoerverbinding in Leek richting de stad Groningen uitstekend.
Indeling
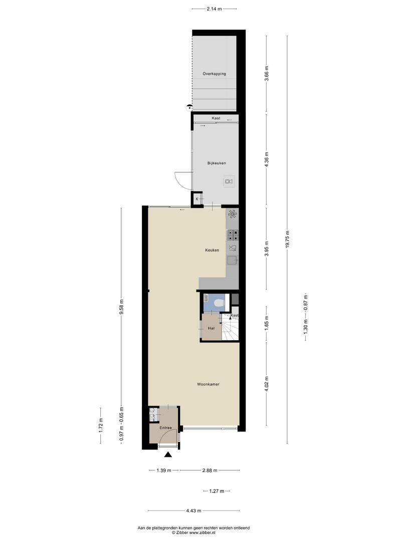
Begane grond: entree/hal, woonkamer (voor- en achterkamer totaal ca. 28 m²), slaapkamer, inloopkast, keuken voorzien van eenvoudige keukenopstelling, bijkeuken/achter-entree, toiletruimte, doucheruimte;
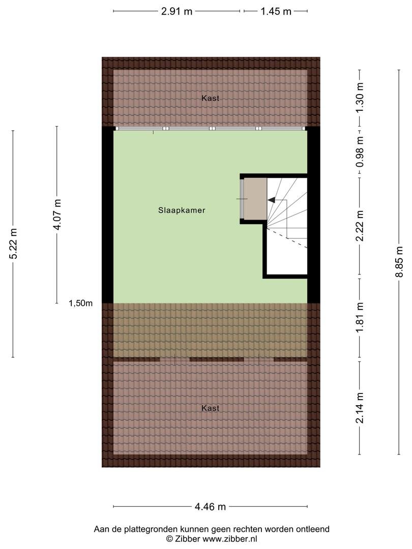
1e verdieping: overloop, twee slaapkamers, bergruimte;
Bijgebouwen:
- vrijstaande stenen garage (ca. 44 m²)
- tweede garage/schuur (voldoende hoogte voor een caravan of klusruimte) ca. 37 m²
- stenen berging/schuur met enkele eenvoudige voorzieningen;
- eenvoudige stenen schuur.
De woning is in eenvoudige staat van onderhoud en koper dient rekening te houden met een grondige renovatie/verbouw.
Goed om te weten:
- fraai gelegen aan rand van centrum en nabij voorzieningen;
- volop (uitbreidings)mogelijkheden;
- authentieke elementen behouden gebleven;
- degelijk gebouwd woonhuis, dient gemoderniseerd te worden;
- woonoppervlakte ca. 104 m²;
- riant perceeloppervlak 678 m²;
- verwarming middels gaskachels
- in de koopakte zal een niet zelfbewoningsclausule een ouderdomsclausule en een asbestclausule worden opgenomen.
Interesse in deze woning? Neem geheel vrijblijvend contact op met Bruining en De Reus Makelaars om deze woning te bezichtigen!
Vrijstaand woonhuis op een fraaie locatie nabij centrum gelegen. De woning beschikt over 3 slaapkamers en meerdere ruime garages/schuren. Een woning met volop mogelijkheden!
De ligging van de woning is uitstekend, op loop-/fietsafstand van het centrum van Leek en nabij landgoed "Nienoord" en het Leekstermeer. Zowel de stad Groningen als Drachten zijn binnen 20 autominuten bereikbaar. Daarnaast is de openbaarvervoerverbinding in Leek richting de stad Groningen uitstekend.
Indeling
Begane grond: entree/hal, woonkamer (voor- en achterkamer totaal ca. 28 m²), slaapkamer, inloopkast, keuken voorzien van eenvoudige keukenopstelling, bijkeuken/achter-entree, toiletruimte, doucheruimte;
1e verdieping: overloop, twee slaapkamers, bergruimte;
Bijgebouwen:
- vrijstaande stenen garage (ca. 44 m²)
- tweede garage/schuur (voldoende hoogte voor een caravan of klusruimte) ca. 37 m²
- stenen berging/schuur met enkele eenvoudige voorzieningen;
- eenvoudige stenen schuur.
De woning is in eenvoudige staat van onderhoud en koper dient rekening te houden met een grondige renovatie/verbouw.
Goed om te weten:
- fraai gelegen aan rand van centrum en nabij voorzieningen;
- volop (uitbreidings)mogelijkheden;
- authentieke elementen behouden gebleven;
- degelijk gebouwd woonhuis, dient gemoderniseerd te worden;
- woonoppervlakte ca. 104 m²;
- riant perceeloppervlak 678 m²;
- verwarming middels gaskachels
- in de koopakte zal een niet zelfbewoningsclausule een ouderdomsclausule en een asbestclausule worden opgenomen.
Interesse in deze woning? Neem geheel vrijblijvend contact op met Bruining en De Reus Makelaars om deze woning te bezichtigen!
Over dit object
Overdracht
| Status | beschikbaar |
|---|---|
| Prijs | € 325.000 k.k. |
Bouw
| Bouwjaar | 1920 |
|---|---|
| Bouwvorm | bestaande bouw |
| Type Object | Woonhuis |
| Hoofdfunctie | Woonruimte |
Indeling
| Woonoppervlakte | 104 m² |
|---|---|
| Perceeloppervlakte | 679 m² |
| Woning Inhoud | 366 m³ |
| Kamers | 5 (3 slaapkamers) |
Energie
| Energielabel | G |
|---|
































































































