
Olde Borchweg 26
Munnekezijl
2-onder-1-kapwoning | vrijstaande garage | 3 slaapkamers | 9 zonnepanelen | energielabel B | perceel 285 m²
Ben je op zoek naar een nette twee-onder-één-kapwoning met garage en een ruime tuin in een rustige, groene woonomgeving? Dan is deze woning aan de Olde Borchweg 26 in Munnekezijl zeker het bekijken waard.
Deze woning is gebouwd in 1980 en staat op een perceel van 285 m². De woning combineert de degelijke bouwkwaliteit van de jaren ’80 met hedendaagse duurzaamheid. Zo beschikt de woning over 9 zonnepanelen en een energielabel B. Verwarming en warm water worden verzorgd door een Nefit combiketel uit 2015.
Binnen tref je een praktische indeling met een lichte woonkamer en een open keuken. Op de eerste verdieping bevinden zich drie slaapkamers en een badkamer. Daarnaast is er nog een handige bergzolder bereikbaar via een vlizotrap.
De woning beschikt tevens over een vrijstaande houten garage en een fijne achtertuin op het noordoosten met achterom.
De indeling is als volgt:
Begane grond: entree via de voordeur; hal met meterkast en trapopgang; toiletruimte met toilet en fontein; lichte woon-/eetkamer met open keuken (totaal ca. 36 m²); trapkast; bijkeuken met opstelling van de cv-ketel en witgoedaansluitingen.
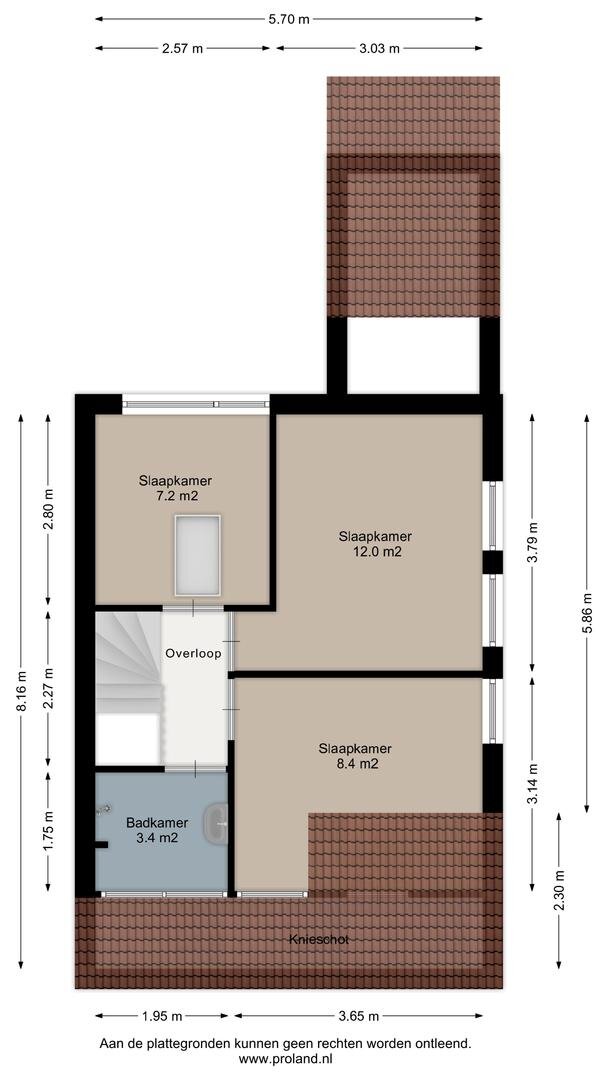
Eerste verdieping: overloop; 3 slaapkamers; badkamer voorzien van douche en wastafel.
Tweede verdieping: via een vlizotrap bereikbare bergzolder.
Buiten:
Aan de voorzijde bevindt zich de oprit met toegang tot de vrijstaande houten garage. De achtertuin is gelegen op het noordoosten en biedt voldoende ruimte om te genieten van het buitenleven. Via een achterom aan de Kerkstraat is de tuin tevens goed bereikbaar.
Omgeving:
Munnekezijl is een rustig en landelijk gelegen dorp met een prettige woonomgeving. In de directe omgeving vind je veel natuur en ruimte om te wandelen en te fietsen. Voor dagelijkse voorzieningen zijn omliggende dorpen en steden goed bereikbaar.
Bijzonderheden:
- 2-onder-1-kapwoning;
- Bouwjaar 1980;
- Perceel 285 m²;
- Woonkamer met open keuken ca. 36 m²;
- 3 slaapkamers;
- Vrijstaande houten garage;
- 9 zonnepanelen;
- Energielabel B;
- Nefit combiketel (2015).
Nieuwsgierig geworden? Neem contact op met ons kantoor voor een bezichtiging en ontdek zelf de mogelijkheden van deze woning aan de Olde Borchweg 26 in Munnekezijl.
Ben je op zoek naar een nette twee-onder-één-kapwoning met garage en een ruime tuin in een rustige, groene woonomgeving? Dan is deze woning aan de Olde Borchweg 26 in Munnekezijl zeker het bekijken waard.
Deze woning is gebouwd in 1980 en staat op een perceel van 285 m². De woning combineert de degelijke bouwkwaliteit van de jaren ’80 met hedendaagse duurzaamheid. Zo beschikt de woning over 9 zonnepanelen en een energielabel B. Verwarming en warm water worden verzorgd door een Nefit combiketel uit 2015.
Binnen tref je een praktische indeling met een lichte woonkamer en een open keuken. Op de eerste verdieping bevinden zich drie slaapkamers en een badkamer. Daarnaast is er nog een handige bergzolder bereikbaar via een vlizotrap.
De woning beschikt tevens over een vrijstaande houten garage en een fijne achtertuin op het noordoosten met achterom.
De indeling is als volgt:
Begane grond: entree via de voordeur; hal met meterkast en trapopgang; toiletruimte met toilet en fontein; lichte woon-/eetkamer met open keuken (totaal ca. 36 m²); trapkast; bijkeuken met opstelling van de cv-ketel en witgoedaansluitingen.
Eerste verdieping: overloop; 3 slaapkamers; badkamer voorzien van douche en wastafel.
Tweede verdieping: via een vlizotrap bereikbare bergzolder.
Buiten:
Aan de voorzijde bevindt zich de oprit met toegang tot de vrijstaande houten garage. De achtertuin is gelegen op het noordoosten en biedt voldoende ruimte om te genieten van het buitenleven. Via een achterom aan de Kerkstraat is de tuin tevens goed bereikbaar.
Omgeving:
Munnekezijl is een rustig en landelijk gelegen dorp met een prettige woonomgeving. In de directe omgeving vind je veel natuur en ruimte om te wandelen en te fietsen. Voor dagelijkse voorzieningen zijn omliggende dorpen en steden goed bereikbaar.
Bijzonderheden:
- 2-onder-1-kapwoning;
- Bouwjaar 1980;
- Perceel 285 m²;
- Woonkamer met open keuken ca. 36 m²;
- 3 slaapkamers;
- Vrijstaande houten garage;
- 9 zonnepanelen;
- Energielabel B;
- Nefit combiketel (2015).
Nieuwsgierig geworden? Neem contact op met ons kantoor voor een bezichtiging en ontdek zelf de mogelijkheden van deze woning aan de Olde Borchweg 26 in Munnekezijl.
Over dit object
Overdracht
| Status | verkocht |
|---|---|
| Prijs | € 225.000 k.k. |
Bouw
| Bouwjaar | 1980 |
|---|---|
| Bouwvorm | bestaande bouw |
| Type Object | Woonhuis |
| Hoofdfunctie | Woonruimte |
Indeling
| Woonoppervlakte | 93 m² |
|---|---|
| Perceeloppervlakte | 285 m² |
| Woning Inhoud | 333 m³ |
| Kamers | 4 (3 slaapkamers) |
Energie
| Energielabel | B |
|---|
























































































