
Oostindischewijk 5
Zevenhuizen
Ruim en landelijk wonen op een unieke plek tussen Leek en Roden!
Grenzend aan de nieuwbouwwijk Oostindie ligt deze deels nieuwgebouwde woonboerderij op een royaal perceel van maar liefst 8.401 m². De liefhebber van rust, ruimte en natuur is dan ook van harte welkom!
Maar ook voor de paardenliefhebber is het een paradijsje aangezien er schuur-/stalruimte, een rijbak (20 x 40 m) met verlichting, een paddock en een gedraineerd weiland aanwezig zijn.
Wil je landelijk wonen nabij vele voorzieningen inclusief de gezelligheid van woonwijk Oostindie? Dan is dit jouw kans!
Een groene oase tussen Leek en Roden
Het landschap tussen Leek en Roden is een prachtig voorbeeld van het Gronings-Drentse coulisselandschap: glooiende weilanden, omzoomd door houtwallen en doorsneden door schilderachtige landweggetjes. Aan de rand van dit gebied ligt deze woonboerderij, met aan de voorzijde vrij uitzicht over de weilanden.
De ligging is ideaal voor de forens: via de omliggende dorpen Leek, Roden en Zevenhuizen ben je snel onderweg, en de A7 brengt je binnen circa 20 minuten naar Groningen of Drachten. Zo combineert deze plek het beste van twee werelden: landelijk wonen met alle dorps- en stadsvoorzieningen binnen handbereik.
De boerderij is in 2016 voor een groot deel opnieuw opgebouwd. Het voorhuis is blijven staan en de voormalige schuur is tot op de fundering verwijderd waarna dit gedeelte volledig opnieuw is opgetrokken, uiteraard conform de hedendaags verplichte bouweisen met o.a. spouwmuren, betonvloer met vloerverwarming, volledig nieuw geïsoleerd dak, etc. . Hierdoor heeft de boerderij het comfort van nu en de uitstraling van toen!
Indeling van de woning
Begane grond: Via een verbinding tussen de voormalige stookhut en de boerderij betreedt u het pand en bereikt u de centrale hal met toilet, een ruime slaapkamer (ca. 18½ m²) en een gemoderniseerde badkamer met douche en wastafel. Vervolgens bereikt u de tuingerichte en royale woonkamer van circa 58 m² met vloerverwarming, openslaande deuren naar de tuin en extra daglicht via de dakramen waardoor dit een prettige leefruimte is. De afsluitbare keuken is voorzien van een inrichting in - hoe kan het ook anders - landelijk stijl en kan vanwege de maatvoering (ca. 16 m²) prima het predicaat 'woonkeuken' dragen. Vanuit de keuken is ook een directe verbinding met de eerdergenoemde hal.
De voormalige stookhut welke thans door een tussenbouw overdekt te bereiken is, is in gebruik als praktische berging/CV-ruimte.
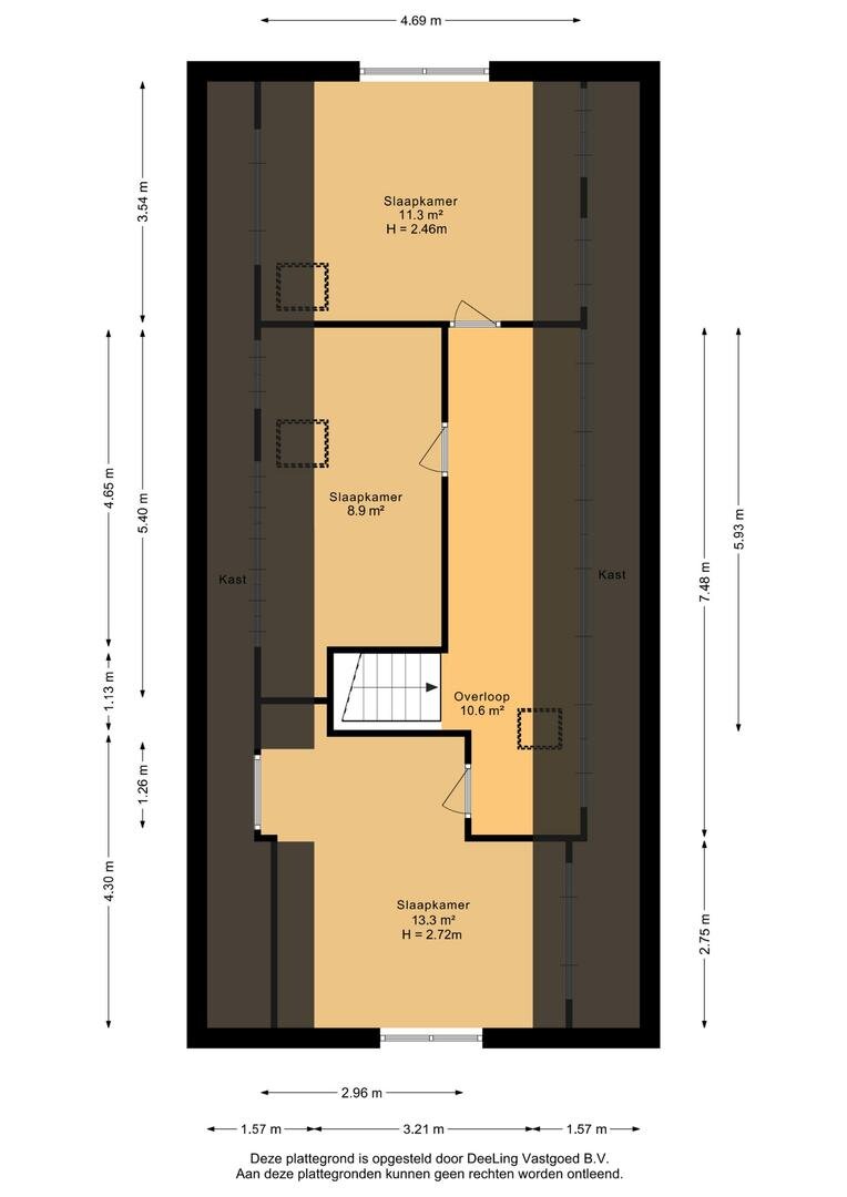
Verdieping: Volledig opnieuw opgebouwde verdieping met een grote overloop, 3 slaapkamers (resp. ca. 9, 11½ en 13½ m²) en is er optimaal gebruik gemaakt van de beschikbare ruimte; de knieschotten aan beide kanten zijn over de gehele lengte van de boerderij bereikbaar gemaakt.
Buitenleven pur sang
Het perceel is veelzijdig ingedeeld: direct achter de woning een terras, naast de woning een ruime vrijstaande schuur/stal waarin garage/schuurruimte wordt gecombineerd met twee paardenboxen. Aan de andere zijde van het terras is een houten tuinberging aanwezig en de paardenbak, de paddock en het weiland completeren het geheel. Een kapschuur grenzend aan het weiland biedt onderdak aan bijbehorend materieel en ook aan de voorzijde is er voldoende parkeerruimte voor meerdere voertuigen.
Goed om te weten:
- Perceel van 8.401 m²;
- Slaap- en badkamer op de begane grond;
- Woonkamer en keuken voorzien van vloerverwarming;
- Verwarming middels cv-combiketel i.c.m. hybride warmtepomp (Bosch bj. 2010 / DeWarmte bj. 2022)
- Voorzien van 10 zonnepanelen;
- Schilderwerk buitenom uitgevoerd in 2025.
Een karaktervolle woonboerderij op een riant perceel, compleet met paardenfaciliteiten en volop wooncomfort. Rust, ruimte en natuur, gecombineerd in de nabijheid van dorpen en stad – dit is landelijk wonen op z’n best!
Wij nodigen u van harte uit om Oostindischewijk 5 te komen bezichtigen. Neem contact op met Bruining en de Reus Makelaars en maak een afspraak voor een persoonlijke rondleiding op deze fraaie locatie.
Grenzend aan de nieuwbouwwijk Oostindie ligt deze deels nieuwgebouwde woonboerderij op een royaal perceel van maar liefst 8.401 m². De liefhebber van rust, ruimte en natuur is dan ook van harte welkom!
Maar ook voor de paardenliefhebber is het een paradijsje aangezien er schuur-/stalruimte, een rijbak (20 x 40 m) met verlichting, een paddock en een gedraineerd weiland aanwezig zijn.
Wil je landelijk wonen nabij vele voorzieningen inclusief de gezelligheid van woonwijk Oostindie? Dan is dit jouw kans!
Een groene oase tussen Leek en Roden
Het landschap tussen Leek en Roden is een prachtig voorbeeld van het Gronings-Drentse coulisselandschap: glooiende weilanden, omzoomd door houtwallen en doorsneden door schilderachtige landweggetjes. Aan de rand van dit gebied ligt deze woonboerderij, met aan de voorzijde vrij uitzicht over de weilanden.
De ligging is ideaal voor de forens: via de omliggende dorpen Leek, Roden en Zevenhuizen ben je snel onderweg, en de A7 brengt je binnen circa 20 minuten naar Groningen of Drachten. Zo combineert deze plek het beste van twee werelden: landelijk wonen met alle dorps- en stadsvoorzieningen binnen handbereik.
De boerderij is in 2016 voor een groot deel opnieuw opgebouwd. Het voorhuis is blijven staan en de voormalige schuur is tot op de fundering verwijderd waarna dit gedeelte volledig opnieuw is opgetrokken, uiteraard conform de hedendaags verplichte bouweisen met o.a. spouwmuren, betonvloer met vloerverwarming, volledig nieuw geïsoleerd dak, etc. . Hierdoor heeft de boerderij het comfort van nu en de uitstraling van toen!
Indeling van de woning
Begane grond: Via een verbinding tussen de voormalige stookhut en de boerderij betreedt u het pand en bereikt u de centrale hal met toilet, een ruime slaapkamer (ca. 18½ m²) en een gemoderniseerde badkamer met douche en wastafel. Vervolgens bereikt u de tuingerichte en royale woonkamer van circa 58 m² met vloerverwarming, openslaande deuren naar de tuin en extra daglicht via de dakramen waardoor dit een prettige leefruimte is. De afsluitbare keuken is voorzien van een inrichting in - hoe kan het ook anders - landelijk stijl en kan vanwege de maatvoering (ca. 16 m²) prima het predicaat 'woonkeuken' dragen. Vanuit de keuken is ook een directe verbinding met de eerdergenoemde hal.
De voormalige stookhut welke thans door een tussenbouw overdekt te bereiken is, is in gebruik als praktische berging/CV-ruimte.
Verdieping: Volledig opnieuw opgebouwde verdieping met een grote overloop, 3 slaapkamers (resp. ca. 9, 11½ en 13½ m²) en is er optimaal gebruik gemaakt van de beschikbare ruimte; de knieschotten aan beide kanten zijn over de gehele lengte van de boerderij bereikbaar gemaakt.
Buitenleven pur sang
Het perceel is veelzijdig ingedeeld: direct achter de woning een terras, naast de woning een ruime vrijstaande schuur/stal waarin garage/schuurruimte wordt gecombineerd met twee paardenboxen. Aan de andere zijde van het terras is een houten tuinberging aanwezig en de paardenbak, de paddock en het weiland completeren het geheel. Een kapschuur grenzend aan het weiland biedt onderdak aan bijbehorend materieel en ook aan de voorzijde is er voldoende parkeerruimte voor meerdere voertuigen.
Goed om te weten:
- Perceel van 8.401 m²;
- Slaap- en badkamer op de begane grond;
- Woonkamer en keuken voorzien van vloerverwarming;
- Verwarming middels cv-combiketel i.c.m. hybride warmtepomp (Bosch bj. 2010 / DeWarmte bj. 2022)
- Voorzien van 10 zonnepanelen;
- Schilderwerk buitenom uitgevoerd in 2025.
Een karaktervolle woonboerderij op een riant perceel, compleet met paardenfaciliteiten en volop wooncomfort. Rust, ruimte en natuur, gecombineerd in de nabijheid van dorpen en stad – dit is landelijk wonen op z’n best!
Wij nodigen u van harte uit om Oostindischewijk 5 te komen bezichtigen. Neem contact op met Bruining en de Reus Makelaars en maak een afspraak voor een persoonlijke rondleiding op deze fraaie locatie.
Over dit object
Overdracht
| Status | verkocht |
|---|---|
| Prijs | € 725.000 k.k. |
Bouw
| Bouwjaar | 1920 |
|---|---|
| Bouwvorm | bestaande bouw |
| Type Object | Woonhuis |
| Hoofdfunctie | Woonruimte |
Indeling
| Woonoppervlakte | 169 m² |
|---|---|
| Perceeloppervlakte | 8401 m² |
| Woning Inhoud | 599 m³ |
| Kamers | 5 (4 slaapkamers) |
Energie
| Energielabel | C |
|---|























































































