
Roomsterweg 23
Zevenhuizen
Rustig en landelijk wonen!
Aan de rand van de nieuwbouwwijk Oostindie gelegen vrijstaande woonboerderij met alle voorzieningen in de directe omgeving.
Deze woonboerderij is gelegen op een bijzonder mooie woonlocatie, met aan de voorzijde vrij uitzicht over het water en de landerijen.
De woning beschikt over diverse (inpandige) schuren en is gelegen op een riant perceel van 5.984 m².
INDELING
Begane grond: entree/hal, woonkamer, keuken, tweede woonkamer/werkkamer met toegang tot slaapkamer, eenvoudige toiletruimte en badkamer en toegang tot de inpandige schuur (voldoende uitbreidingsmogelijkheden);
Verdieping: overloop, twee slaapkamers, bergruimte/zolder;
Bijgebouwen:
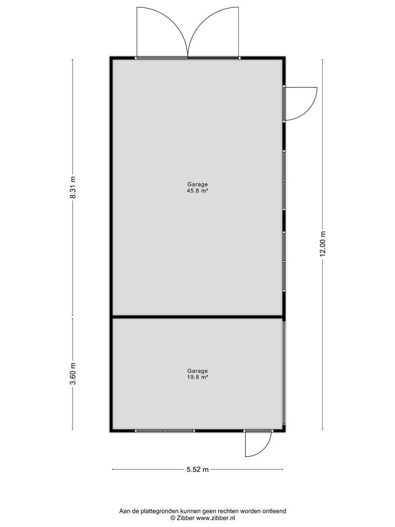
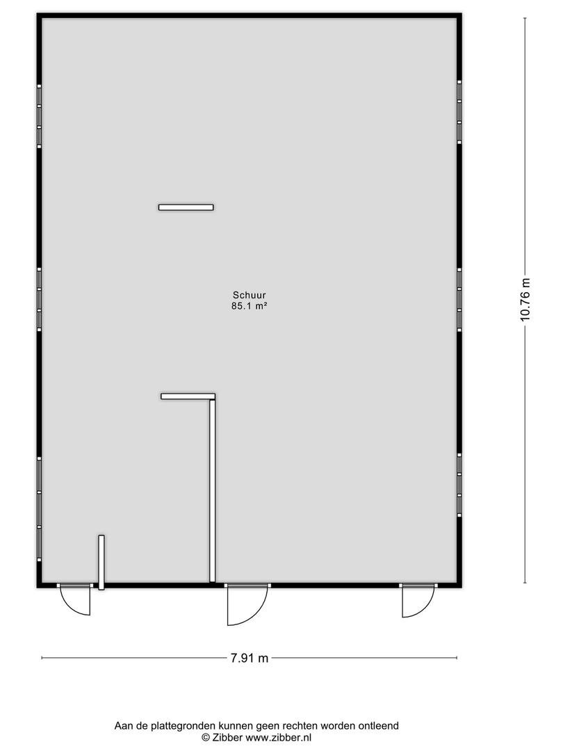
- inpandige schuur/deel (totaal groot ca. 150 m²);
- vrijstaande schuur (ca. 85 m²);
- vrijstaande garage/schuur (ca. 65 m²)
BIJZONDERHEDEN WOONHUIS:
- totaal woonoppervlak ca. 100 m², totaal oppervlakte aan inpandige ruimte 225 m² (derhalve voldoende uitbreidingsmogelijkheden).
- perceeloppervlakte 5.984 m²
- de woning is intern eenvoudig afgewerkt met eenvoudige voorzieningen;
- de schuur is gedekt met asbesthoudende golfplaten.
BIJZONDERHEDEN WOONOMGEVING:
De woonboerderij is landelijk gelegen op een unieke locatie, aan de rand van de wijk Oostindie, op fietsafstand van het centrum van Leek, aan een rustige weg. Zowel de stad Groningen als Drachten en Assen zijn binnen 15 autominuten bereikbaar. Daarnaast biedt Leek vrijwel alle voorzieningen
Tip: Voor een goed visueel beeld verwijzen wij u graag naar de video van deze woning
Aanvaarding in nader overleg (kan snel)
Interesse in deze woning? Neem geheel vrijblijvend contact op met Bruining en De Reus Makelaars om deze woning te bezichtigen!
Aan de rand van de nieuwbouwwijk Oostindie gelegen vrijstaande woonboerderij met alle voorzieningen in de directe omgeving.
Deze woonboerderij is gelegen op een bijzonder mooie woonlocatie, met aan de voorzijde vrij uitzicht over het water en de landerijen.
De woning beschikt over diverse (inpandige) schuren en is gelegen op een riant perceel van 5.984 m².
INDELING
Begane grond: entree/hal, woonkamer, keuken, tweede woonkamer/werkkamer met toegang tot slaapkamer, eenvoudige toiletruimte en badkamer en toegang tot de inpandige schuur (voldoende uitbreidingsmogelijkheden);
Verdieping: overloop, twee slaapkamers, bergruimte/zolder;
Bijgebouwen:
- inpandige schuur/deel (totaal groot ca. 150 m²);
- vrijstaande schuur (ca. 85 m²);
- vrijstaande garage/schuur (ca. 65 m²)
BIJZONDERHEDEN WOONHUIS:
- totaal woonoppervlak ca. 100 m², totaal oppervlakte aan inpandige ruimte 225 m² (derhalve voldoende uitbreidingsmogelijkheden).
- perceeloppervlakte 5.984 m²
- de woning is intern eenvoudig afgewerkt met eenvoudige voorzieningen;
- de schuur is gedekt met asbesthoudende golfplaten.
BIJZONDERHEDEN WOONOMGEVING:
De woonboerderij is landelijk gelegen op een unieke locatie, aan de rand van de wijk Oostindie, op fietsafstand van het centrum van Leek, aan een rustige weg. Zowel de stad Groningen als Drachten en Assen zijn binnen 15 autominuten bereikbaar. Daarnaast biedt Leek vrijwel alle voorzieningen
Tip: Voor een goed visueel beeld verwijzen wij u graag naar de video van deze woning
Aanvaarding in nader overleg (kan snel)
Interesse in deze woning? Neem geheel vrijblijvend contact op met Bruining en De Reus Makelaars om deze woning te bezichtigen!
Over dit object
Overdracht
| Status | verkocht |
|---|---|
| Prijs | € 600.000 k.k. |
Bouw
| Bouwjaar | 1913 |
|---|---|
| Bouwvorm | bestaande bouw |
| Type Object | Woonhuis |
| Hoofdfunctie | Woonruimte |
Indeling
| Woonoppervlakte | 100 m² |
|---|---|
| Perceeloppervlakte | 6010 m² |
| Woning Inhoud | 1165 m³ |
| Kamers | 5 (3 slaapkamers) |
Energie
| Energielabel | F |
|---|







































































