
Samuël Leviestraat 27
Leek
Ruim appartement in centrum van Leek!
Ruime woonkamer | 2 slaapkamers | zonnig balkon op het zuidwesten| woonoppervlakte ca. 88 m² | inpandige berging en eigen parkeerplaats op begane grond
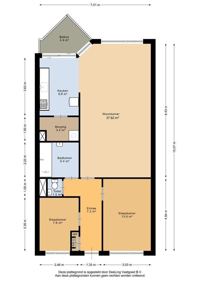
Op toplocatie in het centrum van Leek, op de 1e verdieping van woonwinkelcomplex “De Hulst” gelegen, ruim en licht appartement met 2 slaapkamers en een gezellig balkon met fraai uitzicht. Met het zicht op het centrum van Leek is het hier heerlijk vertoeven! Alle nodige voorzieningen zijn op loop- en fietsafstand gelegen. Er is eveneens een inpandige (fietsen-)berging (6 m²) op de begane grond en een eigen parkeerplaats op het binnenterrein. Het complex beschikt over een lift- en intercominstallatie.
INDELING
Begane grond: gemeenschappelijke entree/hal met trapopgang en lift en toegang tot de inpandige berging.
1e verdieping: entree/hal, meterkast, toiletruimte, toegang tot de ruime badkamer met douche in bad en vaste wastafel, 2 slaapkamers (ca. 14 m² en 8 m²), lichte woonkamer met toegang tot het balkon (ca. 5 m²) en open keuken met eenvoudige keukenopstelling en toegang tot de bijkeuken met witgoedaansluitingen en cv-opstelling.
Bijgebouwen:
Berging/schuur begane grond.
Bijzonderheden:
- woonoppervlakte ca. 88 m²;
- inpandige berging op de begane grond;
- zonnig balkon op het zuidwesten;
- de woning wordt verwarmd middels centrale verwarming;
- energielabel A
- voorzien van eigen parkeerplaats op het binnenterrein;
- bijdrage VvE € 260,00 per maand.
Aanvaarding: in overleg (kan spoedig)
Tip: bekijk ook de video van deze woning!
Interesse in deze woning? Neem geheel vrijblijvend contact op met Bruining en De Reus Makelaars om deze woning te bezichtigen!
Ruime woonkamer | 2 slaapkamers | zonnig balkon op het zuidwesten| woonoppervlakte ca. 88 m² | inpandige berging en eigen parkeerplaats op begane grond
Op toplocatie in het centrum van Leek, op de 1e verdieping van woonwinkelcomplex “De Hulst” gelegen, ruim en licht appartement met 2 slaapkamers en een gezellig balkon met fraai uitzicht. Met het zicht op het centrum van Leek is het hier heerlijk vertoeven! Alle nodige voorzieningen zijn op loop- en fietsafstand gelegen. Er is eveneens een inpandige (fietsen-)berging (6 m²) op de begane grond en een eigen parkeerplaats op het binnenterrein. Het complex beschikt over een lift- en intercominstallatie.
INDELING
Begane grond: gemeenschappelijke entree/hal met trapopgang en lift en toegang tot de inpandige berging.
1e verdieping: entree/hal, meterkast, toiletruimte, toegang tot de ruime badkamer met douche in bad en vaste wastafel, 2 slaapkamers (ca. 14 m² en 8 m²), lichte woonkamer met toegang tot het balkon (ca. 5 m²) en open keuken met eenvoudige keukenopstelling en toegang tot de bijkeuken met witgoedaansluitingen en cv-opstelling.
Bijgebouwen:
Berging/schuur begane grond.
Bijzonderheden:
- woonoppervlakte ca. 88 m²;
- inpandige berging op de begane grond;
- zonnig balkon op het zuidwesten;
- de woning wordt verwarmd middels centrale verwarming;
- energielabel A
- voorzien van eigen parkeerplaats op het binnenterrein;
- bijdrage VvE € 260,00 per maand.
Aanvaarding: in overleg (kan spoedig)
Tip: bekijk ook de video van deze woning!
Interesse in deze woning? Neem geheel vrijblijvend contact op met Bruining en De Reus Makelaars om deze woning te bezichtigen!
Over dit object
Overdracht
| Status | verkocht |
|---|---|
| Prijs | € 385.000 k.k. |
Bouw
| Bouwjaar | 1999 |
|---|---|
| Bouwvorm | bestaande bouw |
| Type Object | Appartement |
| Hoofdfunctie | Woonruimte |
Indeling
| Woonoppervlakte | 88 m² |
|---|---|
| Woning Inhoud | 302 m³ |
| Kamers | 3 (2 slaapkamers) |
Energie
| Energielabel | A |
|---|









































































