
Zwarte Els 22
Leek
Aantrekkelijk gelegen, keurige TWEE-ONDER ÉÉN KAPWONING met garage, carport, berging met veranda en zonnige tuin.
Deze twee-onder-één kapwoning biedt een praktische indeling. Met zijn ruime woonkamer, keuken, bijkeuken, 5 slaapkamers en ruime badkamer is het een gezinswoning bij uitstek. Het woonhuis is v.v. een aangebouwde garage annex berging en een vrijstaande houten schuur met veranda. Het royale hoekperceel is opgedeeld in een voortuin, een royale oprit met carport met de mogelijkheid voor het parkeren van meerdere auto’s en een besloten zij- en besloten zonnige achtertuin met schuur v.v. veranda.
De wijk Oostindie staat bekend om het vele groen, de parken en de speelvoorzieningen, ideaal voor gezinnen met kinderen. Daarnaast is er een brede school met openbaar en christelijk basisonderwijs, een kinderopvang en peuterspeelzaal in de wijk. De woning ligt op slechts 5 minuten fietsafstand van het gezellige centrum van Leek en het Landgoed Nienoord, waar je kunt genieten van het zwemkasteel, het museum of het familiepark Nienoord. Ook uitvalswegen als de A7 zijn goed bereikbaar, waardoor zowel de stad Groningen als Drachten op slechts 20 minuten afstand liggen. Bovendien ligt de bushalte op loopafstand van de woning, waar circa iedere 15 minuten een rechtstreekse bus vertrekt naar het Centraal Station Groningen.
Indeling
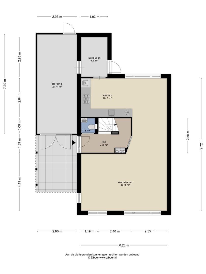
Begane grond: entree/hal met meterkast, trapopgang en moderne w.c.ruimte met hangtoilet en fonteintje. Ruime en zonnige L-vormige woonkamer met half open keuken, totaal ca. 52 m2. De moderne L-vormige witte greeploze keukeninrichting is voorzien van diverse inbouwapparatuur. De bijkeuken geeft toegang tot de garage en tuin en is v.v. een wasmachine en wasdroger aansluiting.
1e Verdieping: overloop, drie ruime en lichte slaapkamers en een moderne badkamer met ligbad, douchecabine, wastafel en hangtoilet.
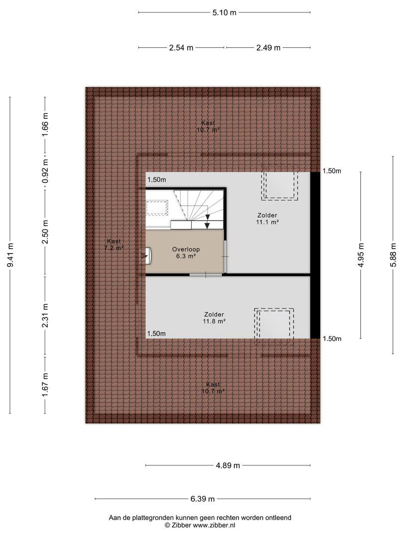
2e Verdieping: overloop met c.v. en WTW installatietechnische ruimte met mechanisch ventilatiesysteem, twee slaapkamers elk v.v. een dakraam en bergruimte.
Bijgebouwen:
- garage;
- berging/veranda.
Bijzonderheden:
- bouwjaar 2006;
- woonoppervlak ca. 155 m2
- verwarming deels middels vloerverwarming, deels middels centrale verwarming;
- optimaal geïsoleerd, energielabel A;
- eigen oprit met ruimte voor 2 auto's;
- massief houten vloer (geschikt voor, en met vloerverwarming) uit 2022;
- Quick step laminaatvloer op 1e én 2e verdieping uit 2022;
- waterontharder (2022);
- aangebouwde garage en houten berging;
- zonnige, besloten tuin met veel privacy.
Ben je op zoek naar een instapklare woning in een rustige, groene buurt? Plan dan nu een bezichtiging en ontdek wat deze woning jou te bieden heeft!
Deze twee-onder-één kapwoning biedt een praktische indeling. Met zijn ruime woonkamer, keuken, bijkeuken, 5 slaapkamers en ruime badkamer is het een gezinswoning bij uitstek. Het woonhuis is v.v. een aangebouwde garage annex berging en een vrijstaande houten schuur met veranda. Het royale hoekperceel is opgedeeld in een voortuin, een royale oprit met carport met de mogelijkheid voor het parkeren van meerdere auto’s en een besloten zij- en besloten zonnige achtertuin met schuur v.v. veranda.
De wijk Oostindie staat bekend om het vele groen, de parken en de speelvoorzieningen, ideaal voor gezinnen met kinderen. Daarnaast is er een brede school met openbaar en christelijk basisonderwijs, een kinderopvang en peuterspeelzaal in de wijk. De woning ligt op slechts 5 minuten fietsafstand van het gezellige centrum van Leek en het Landgoed Nienoord, waar je kunt genieten van het zwemkasteel, het museum of het familiepark Nienoord. Ook uitvalswegen als de A7 zijn goed bereikbaar, waardoor zowel de stad Groningen als Drachten op slechts 20 minuten afstand liggen. Bovendien ligt de bushalte op loopafstand van de woning, waar circa iedere 15 minuten een rechtstreekse bus vertrekt naar het Centraal Station Groningen.
Indeling
Begane grond: entree/hal met meterkast, trapopgang en moderne w.c.ruimte met hangtoilet en fonteintje. Ruime en zonnige L-vormige woonkamer met half open keuken, totaal ca. 52 m2. De moderne L-vormige witte greeploze keukeninrichting is voorzien van diverse inbouwapparatuur. De bijkeuken geeft toegang tot de garage en tuin en is v.v. een wasmachine en wasdroger aansluiting.
1e Verdieping: overloop, drie ruime en lichte slaapkamers en een moderne badkamer met ligbad, douchecabine, wastafel en hangtoilet.
2e Verdieping: overloop met c.v. en WTW installatietechnische ruimte met mechanisch ventilatiesysteem, twee slaapkamers elk v.v. een dakraam en bergruimte.
Bijgebouwen:
- garage;
- berging/veranda.
Bijzonderheden:
- bouwjaar 2006;
- woonoppervlak ca. 155 m2
- verwarming deels middels vloerverwarming, deels middels centrale verwarming;
- optimaal geïsoleerd, energielabel A;
- eigen oprit met ruimte voor 2 auto's;
- massief houten vloer (geschikt voor, en met vloerverwarming) uit 2022;
- Quick step laminaatvloer op 1e én 2e verdieping uit 2022;
- waterontharder (2022);
- aangebouwde garage en houten berging;
- zonnige, besloten tuin met veel privacy.
Ben je op zoek naar een instapklare woning in een rustige, groene buurt? Plan dan nu een bezichtiging en ontdek wat deze woning jou te bieden heeft!
Over dit object
Overdracht
| Status | verkocht |
|---|---|
| Prijs | € 525.000 k.k. |
Bouw
| Bouwjaar | 2006 |
|---|---|
| Bouwvorm | bestaande bouw |
| Type Object | Woonhuis |
| Hoofdfunctie | Woonruimte |
Indeling
| Woonoppervlakte | 155 m² |
|---|---|
| Perceeloppervlakte | 410 m² |
| Woning Inhoud | 624 m³ |
| Kamers | 6 (5 slaapkamers) |
Energie
| Energielabel | A |
|---|






















































































































