
Hofstede 39
Tolbert
Energiezuinige gezinswoning op rustige woonlocatie
Hoekwoning | 122 m² woonoppervlakte | aangebouwde garage | 238 m² perceeloppervlakte.
In het sfeervolle Tolbert, nabij scholen en diverse voorzieningen, bevindt zich deze energiezuinige, onderhoudsvrije, hoekwoning met garage. De woning beschikt over een uitgebouwde woonkeuken en een handige bijkeuken en is ideaal voor starters of een gezin. De woning heeft aan de voorzijde vrij uitzicht over gemeentegroen en een verzorgde, besloten, zonnige achtertuin gelegen op het Zuidwesten.
De ligging van de woning is uitstekend, op fietsafstand van het centrum van Leek, Tolbert en nabij landgoed "Nienoord". Zowel de stad Groningen als Drachten zijn binnen 15 autominuten bereikbaar via de A7. Ook het openbaar vervoer is uitstekend te noemen. Op 4 minuten loopafstand ligt de bushalte, waar ieder kwartier een bus vertrekt naar Groningen.
Binnenkomend via de entree, vind je een gerenoveerde toilet en een handige bijkeuken met toegang tot de garage (18 m²) met elektrisch bedienbare garagedeur. De sfeervolle woonkamer (28 m²), voorzien van een eikenhouten vloer en mooie raampartijen, leidt via en-suite deuren naar de nette, moderne keuken en vervolgens naar de eetkamer met openslaande terrasdeuren en een fijn uitzicht op de achtertuin.
1e verdieping
Op de eerste verdieping bevinden zich 3 slaapkamers (respectievelijk 11, 8 en 7 m²) en een badkamer met ligbad/douche, vaste wastafel en toilet.
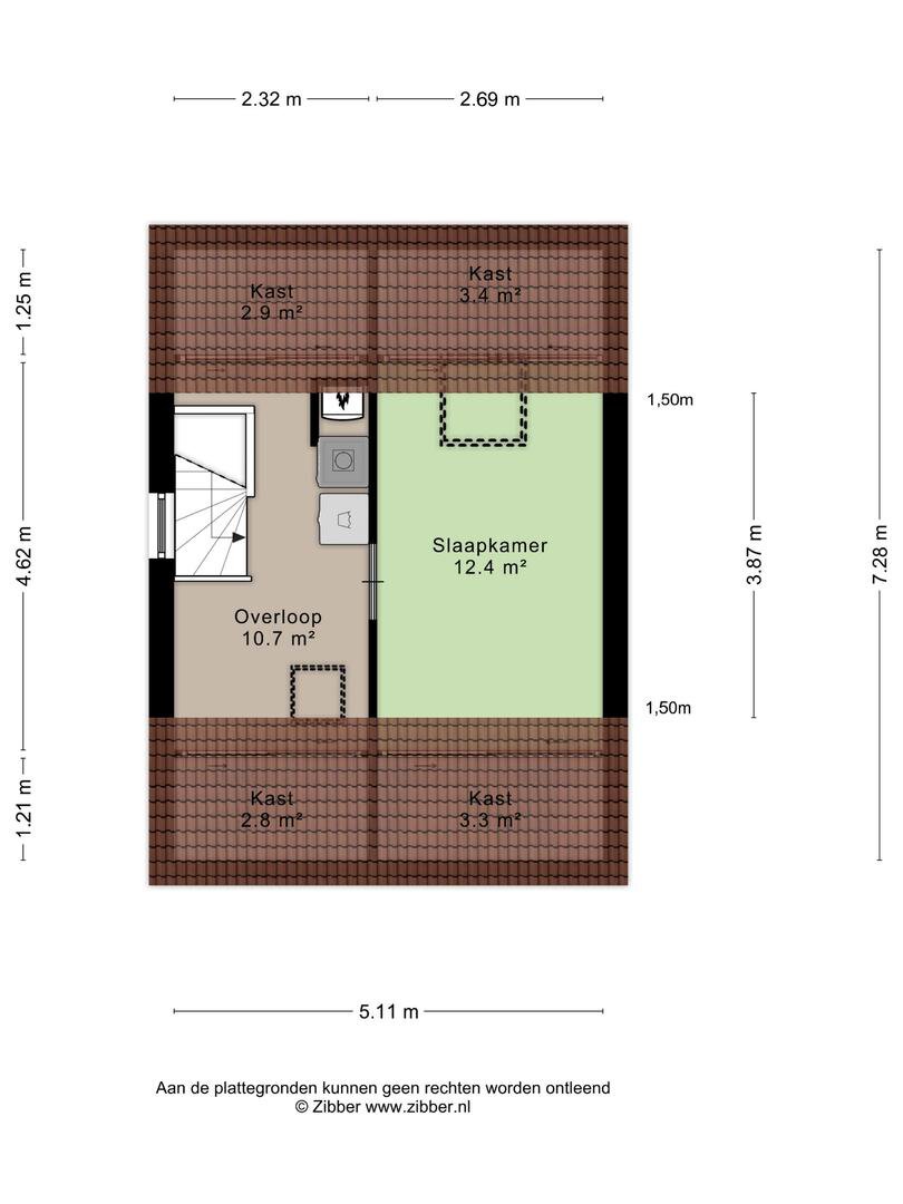
2e verdieping
Via de vaste trap bereik je de tweede verdieping, waar je een overloop aantreft met een CV-/bergruimte en twee extra wasmachine aansluitingen. De ruime overloop geeft toegang tot een extra slaapkamer van 12 m².
Deze instapklare woning ligt op een hoekkavel van 238 m² eigen grond. De achtertuin is verzorgd en onderhoudsvriendelijk aangelegd en heeft veel privacy. De achtertuin ligt op het zuidwesten, ideaal! Er zijn twee overkappingen, waarvan een met druivenranken, hier kunt u heerlijk beschut zitten. U kunt ruim parkeren op eigen terrein.
Kenmerken
- energielabel A;
- woonoppervlakte 122 m²;
- kaveloppervlak 238 m² met een besloten achtertuin op het Zuidwesten;
- 12 eigen zonnepanelen;
- dak-, muur- en vloerisolatie
- volledig voorzien van HR++ glas;
- 4 slaapkamers, uitermate geschikt voor een gezin;
- zeer goed onderhouden;
- grotendeels voorzien van kunststof kozijnen (2023);
- sfeervolle woonkamer met inbouwkasten;
- parkeerruimte voor meerdere auto’s.
- aanvaarding in overleg.
Een fijn en instapklaar woonhuis op een rustige plek.
Interesse gewekt? Neem vrijblijvend contact met ons op om de woning te bezichtigen!
Hoekwoning | 122 m² woonoppervlakte | aangebouwde garage | 238 m² perceeloppervlakte.
In het sfeervolle Tolbert, nabij scholen en diverse voorzieningen, bevindt zich deze energiezuinige, onderhoudsvrije, hoekwoning met garage. De woning beschikt over een uitgebouwde woonkeuken en een handige bijkeuken en is ideaal voor starters of een gezin. De woning heeft aan de voorzijde vrij uitzicht over gemeentegroen en een verzorgde, besloten, zonnige achtertuin gelegen op het Zuidwesten.
De ligging van de woning is uitstekend, op fietsafstand van het centrum van Leek, Tolbert en nabij landgoed "Nienoord". Zowel de stad Groningen als Drachten zijn binnen 15 autominuten bereikbaar via de A7. Ook het openbaar vervoer is uitstekend te noemen. Op 4 minuten loopafstand ligt de bushalte, waar ieder kwartier een bus vertrekt naar Groningen.
Binnenkomend via de entree, vind je een gerenoveerde toilet en een handige bijkeuken met toegang tot de garage (18 m²) met elektrisch bedienbare garagedeur. De sfeervolle woonkamer (28 m²), voorzien van een eikenhouten vloer en mooie raampartijen, leidt via en-suite deuren naar de nette, moderne keuken en vervolgens naar de eetkamer met openslaande terrasdeuren en een fijn uitzicht op de achtertuin.
1e verdieping
Op de eerste verdieping bevinden zich 3 slaapkamers (respectievelijk 11, 8 en 7 m²) en een badkamer met ligbad/douche, vaste wastafel en toilet.
2e verdieping
Via de vaste trap bereik je de tweede verdieping, waar je een overloop aantreft met een CV-/bergruimte en twee extra wasmachine aansluitingen. De ruime overloop geeft toegang tot een extra slaapkamer van 12 m².
Deze instapklare woning ligt op een hoekkavel van 238 m² eigen grond. De achtertuin is verzorgd en onderhoudsvriendelijk aangelegd en heeft veel privacy. De achtertuin ligt op het zuidwesten, ideaal! Er zijn twee overkappingen, waarvan een met druivenranken, hier kunt u heerlijk beschut zitten. U kunt ruim parkeren op eigen terrein.
Kenmerken
- energielabel A;
- woonoppervlakte 122 m²;
- kaveloppervlak 238 m² met een besloten achtertuin op het Zuidwesten;
- 12 eigen zonnepanelen;
- dak-, muur- en vloerisolatie
- volledig voorzien van HR++ glas;
- 4 slaapkamers, uitermate geschikt voor een gezin;
- zeer goed onderhouden;
- grotendeels voorzien van kunststof kozijnen (2023);
- sfeervolle woonkamer met inbouwkasten;
- parkeerruimte voor meerdere auto’s.
- aanvaarding in overleg.
Een fijn en instapklaar woonhuis op een rustige plek.
Interesse gewekt? Neem vrijblijvend contact met ons op om de woning te bezichtigen!
Over dit object
Overdracht
| Status | verkocht |
|---|---|
| Prijs | € 325.000 k.k. |
Bouw
| Bouwjaar | 1991 |
|---|---|
| Bouwvorm | bestaande bouw |
| Type Object | Woonhuis |
| Hoofdfunctie | Woonruimte |
Indeling
| Woonoppervlakte | 122 m² |
|---|---|
| Perceeloppervlakte | 238 m² |
| Woning Inhoud | 489 m³ |
| Kamers | 5 (4 slaapkamers) |
Energie
| Energielabel | A |
|---|






















































































