
Watersingel 49
Leek
Royaal gezinshuis op prachtige locatie!
Fraaie helft van dubbel woonhuis | ca. 161 m² woonoppervlakte | perceeloppervlakte 317 m² | 4 slaapkamers | bijkeuken
In de groene en waterrijke wijk Oostindie, aan brede groen- en waterstrook gelegen, royale twee-onder-één-kapwoning met aangebouwde berging/bijkeuken en garage. De woning beschikt over onder andere 4 ruime slaapkamers, een bijkeuken en is dus uitermate geschikt voor een gezin. De fraai aangelegde zonnige tuin beschikt over meerdere terrassen en optimale privacy.
De wijk Oostindie staat bekend om het vele groen, de parken en de speelvoorzieningen, ideaal voor gezinnen met kinderen. Daarnaast is er een brede school met openbaar en christelijk basisonderwijs, een kinderopvang en peuterspeelzaal in de wijk. De woning ligt op slechts 5 minuten fietsafstand van het gezellige centrum van Leek en het Landgoed Nienoord, waar je kunt genieten van het zwemkasteel, het museum of het familiepark Nienoord. Ook uitvalswegen als de A7 zijn goed bereikbaar, waardoor zowel de stad Groningen als Drachten op slechts 20 minuten afstand liggen. Bovendien ligt de bushalte op loopafstand van de woning, waar circa iedere 15 minuten een rechtstreekse bus vertrekt naar het Centraal Station Groningen.
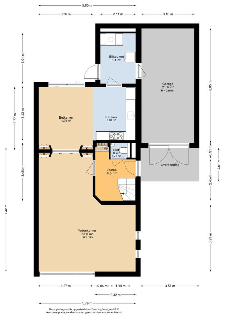
Indeling
begane grond: entree/hal, toilet, meterkast, ruime, straatgerichte woonkamer met veel lichtinval, middels fraaie suite deuren naar woonkeuken met keuken voorzien van diverse inbouwapparatuur, toegang tot de prima afgewerkte bijkeuken met veel kastruimte en toegang tot de garage en tuin.
1e verdieping: overloop, 3 ruime en lichte slaapkamers waarvan 2 met op maat gemaakte inbouwkasten, badkamer voorzien van ligbad, douche, toilet en wastafelmeubel;
2e verdieping: multifunctionele ruimte met veel opbergruimte. Indien gewenst is het mogelijk om hier nog twee slaapkamers te realiseren;
Bijgebouwen:
- aangebouwde garage
Bijzonderheden:
- bouwjaar 2006;
- riant woonoppervlak van ca. 161 m²;
- perceeloppervlak van 317 m²;
- de woonkamer en keuken zijn voorzien van een houten vloer;
- keukenblok met natuursteen aanrechtblad en o.a. 6-pits Smeg fornuis met brede oven;
- verwarming middels hybride warmtepomp (2022) en WTW (vervangen in 2023), daardoor zeer lage energielasten van €60 per maand;
- optimaal geïsoleerd, HR++ glas, 12 zonnepanelen (2019) met hoge opbrengst, energielabel A+;
- buitenschilderwerk uitgevoerd in 2022, kozijnen binnen in 2023;
- eigen oprit met ruimte voor meerdere auto's;
- ligging in groene, kindvriendelijke omgeving, voorzijde aan water.
Aanvaarding: in overleg.
Tip: bekijk ook de video van deze woning!
Ben je op zoek naar een instapklare woning in een rustige, groene buurt? Plan dan nu een bezichtiging via Bruining en De Reus Makelaars en ontdek wat deze woning jou te bieden heeft!
Fraaie helft van dubbel woonhuis | ca. 161 m² woonoppervlakte | perceeloppervlakte 317 m² | 4 slaapkamers | bijkeuken
In de groene en waterrijke wijk Oostindie, aan brede groen- en waterstrook gelegen, royale twee-onder-één-kapwoning met aangebouwde berging/bijkeuken en garage. De woning beschikt over onder andere 4 ruime slaapkamers, een bijkeuken en is dus uitermate geschikt voor een gezin. De fraai aangelegde zonnige tuin beschikt over meerdere terrassen en optimale privacy.
De wijk Oostindie staat bekend om het vele groen, de parken en de speelvoorzieningen, ideaal voor gezinnen met kinderen. Daarnaast is er een brede school met openbaar en christelijk basisonderwijs, een kinderopvang en peuterspeelzaal in de wijk. De woning ligt op slechts 5 minuten fietsafstand van het gezellige centrum van Leek en het Landgoed Nienoord, waar je kunt genieten van het zwemkasteel, het museum of het familiepark Nienoord. Ook uitvalswegen als de A7 zijn goed bereikbaar, waardoor zowel de stad Groningen als Drachten op slechts 20 minuten afstand liggen. Bovendien ligt de bushalte op loopafstand van de woning, waar circa iedere 15 minuten een rechtstreekse bus vertrekt naar het Centraal Station Groningen.
Indeling
begane grond: entree/hal, toilet, meterkast, ruime, straatgerichte woonkamer met veel lichtinval, middels fraaie suite deuren naar woonkeuken met keuken voorzien van diverse inbouwapparatuur, toegang tot de prima afgewerkte bijkeuken met veel kastruimte en toegang tot de garage en tuin.
1e verdieping: overloop, 3 ruime en lichte slaapkamers waarvan 2 met op maat gemaakte inbouwkasten, badkamer voorzien van ligbad, douche, toilet en wastafelmeubel;
2e verdieping: multifunctionele ruimte met veel opbergruimte. Indien gewenst is het mogelijk om hier nog twee slaapkamers te realiseren;
Bijgebouwen:
- aangebouwde garage
Bijzonderheden:
- bouwjaar 2006;
- riant woonoppervlak van ca. 161 m²;
- perceeloppervlak van 317 m²;
- de woonkamer en keuken zijn voorzien van een houten vloer;
- keukenblok met natuursteen aanrechtblad en o.a. 6-pits Smeg fornuis met brede oven;
- verwarming middels hybride warmtepomp (2022) en WTW (vervangen in 2023), daardoor zeer lage energielasten van €60 per maand;
- optimaal geïsoleerd, HR++ glas, 12 zonnepanelen (2019) met hoge opbrengst, energielabel A+;
- buitenschilderwerk uitgevoerd in 2022, kozijnen binnen in 2023;
- eigen oprit met ruimte voor meerdere auto's;
- ligging in groene, kindvriendelijke omgeving, voorzijde aan water.
Aanvaarding: in overleg.
Tip: bekijk ook de video van deze woning!
Ben je op zoek naar een instapklare woning in een rustige, groene buurt? Plan dan nu een bezichtiging via Bruining en De Reus Makelaars en ontdek wat deze woning jou te bieden heeft!
Over dit object
Overdracht
| Status | verkocht |
|---|---|
| Prijs | € 525.000 k.k. |
Bouw
| Bouwjaar | 2006 |
|---|---|
| Bouwvorm | bestaande bouw |
| Type Object | Woonhuis |
| Hoofdfunctie | Woonruimte |
Indeling
| Woonoppervlakte | 161 m² |
|---|---|
| Perceeloppervlakte | 317 m² |
| Woning Inhoud | 678 m³ |
| Kamers | 5 (4 slaapkamers) |
Energie
| Energielabel | A+ |
|---|




















































































































